Vorheriges Objekt Zurück zur Liste Nächstes Objekt
Schloss

Gut Üselitz - Wohnung 1. OG Rechts

Üselitz 2, Poseritz, Rügen - Tolle Lage - Karte anzeigen
0,0
basierend auf 0 Bewertungen
Personen 6
Schlafzimmer 2
Badezimmer 2
Wohnfläche 100 m²
Schloss
Poseritz
Objekt-Nr.:
Merken
Teilen

  • Seeblick
  • Spülmaschine
  • Badewanne
  • Haustier erlaubt
  • Nichtraucher
  • Allergikerfreundlich

Beschreibung

Auf dem Gut befindet sich das denkmalgeschützte Herrenhaus aus dem 16. Jahrhundert. Nachdem das Haus in den 60er Jahren zu einer Ruine verfallen war, ist es nun wieder vollständig aufgebaut worden.





In den drei Obergeschossen des Herrenhauses wurden sieben hochwertige Wohnungen eingerichtet. In Erdgeschoss und Gutspark befinden sich großzügige Räume und Flächen, welche für die Ausrichtung aller denkbaren feierlichen Anlässe und Veranstaltungen geeignet sind.



Das Haus liegt inmitten eines ebenfalls unter Denkmalschutz stehenden Parks. Darin befinden sich die zum Teil über hundert Jahre alten Obstbäume an denen weiterhin Äpfel, Birnen, Pflaumen, Nüsse und weitere Früchte wachsen.



Die Grundmauern der alten Scheunenflächen des ehemaligen landwirtschaftlichen Guts sind wieder sichtbar gemacht worden. Der Ausblick von Haus und Park ist zu allen Seiten geprägt durch die Lage direkt am Wasser.

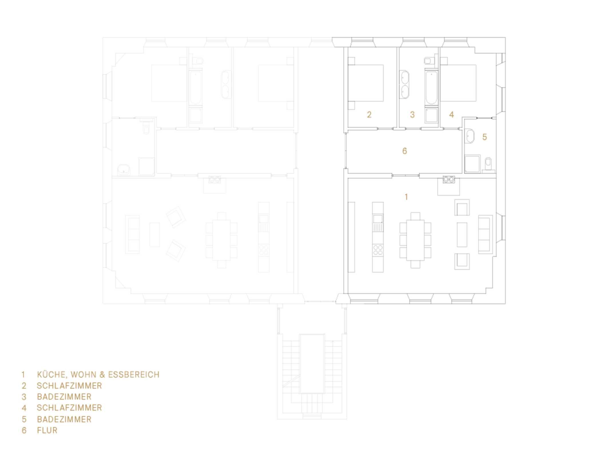
Wohnung 1. OG, rechts





Ausstattung:



• ca. 100 m²

• geeignet für 4-6 Personen mit Kleinkind

• zwei Schlafzimmer (Doppelbett)

• zwei Badezimmer

• großes Wohnzimmer mit Küche und komfortablem Ausziehsofa



Preise inklusive:



- Endreinigung

- Nebenkosten



Das Wäscheset kann für 12,00 EUR pro Person dazu gebucht werden. Es besteht aus der Bettwäsche, großem Handtuch, kleinem Handtuch und Küchentuch.

Gesamte Beschreibungweniger anzeigen

Ausstattung

Outdoor & Ausblick
  • Seeblick
Allgemein
  • Schlafsofa
  • Wohn/Schlafraum kombi.
  • Nichtraucher
  • Allergikerfreundlich
  • Haustier erlaubt
  • Schreibtisch
  • Heizung
Küche
  • Kühlschrank
  • Küche (offen)
  • Spülmaschine
  • Backofen
Bad
  • Haartrockner
  • Badewanne
  • Dusche/WC
  • Handtücher
Betten
  • Doppelbett
  • Bettwäsche

Verfügbarkeit prüfen

Wählen Sie Ihren Reisezeitraum aus, um den Preis zu sehen!
>vorheriges Objekt
Jahresansicht
Feb 2026
Mo Di Mi Do Fr Sa So
            1
2 3 4 5 6 7 8
9 10 11 12 13 14 15
16 17 18 19 20 21 22
23 24 25 26 27 28  
             
Mär 2026
Mo Di Mi Do Fr Sa So
            1
2 3 4 5 6 7 8
9 10 11 12 13 14 15
16 17 18 19 20 21 22
23 24 25 26 27 28 29
30 31          
Apr 2026
Mo Di Mi Do Fr Sa So
    1 2 3 4 5
6 7 8 9 10 11 12
13 14 15 16 17 18 19
20 21 22 23 24 25 26
27 28 29 30      
             

Lage • Gut Üselitz - Wohnung 1. OG Rechts

Üselitz 2, Poseritz, Rügen
In der Umgebung
  • zum Strand 28,0 km
  • zum Bahnhof 18,0 km
  • zur Badestelle/Gewässer 10,0 km
  • zur Autobahn 15,0 km
  • zum Golfplatz 12,0 km
Reisende, die sich die Unterkunft Gut Üselitz - Wohnung 1. OG Rechts angesehen haben, haben diese Unterkünfte gebucht
Merken
125 m²
Ferienhaus
8 Pers.
Garz (Insel Rügen)
Merken
80 m²
Ferienhaus
6 Pers.
Garz (Insel Rügen)
Merken
63 m²
Ferienwohnung
6 Pers.
2 Schlafz.
Samtens
4,7 Ausgezeichnet 6 Bewertungen