Vorheriges Objekt Zurück zur Liste Nächstes Objekt
Bauernhof

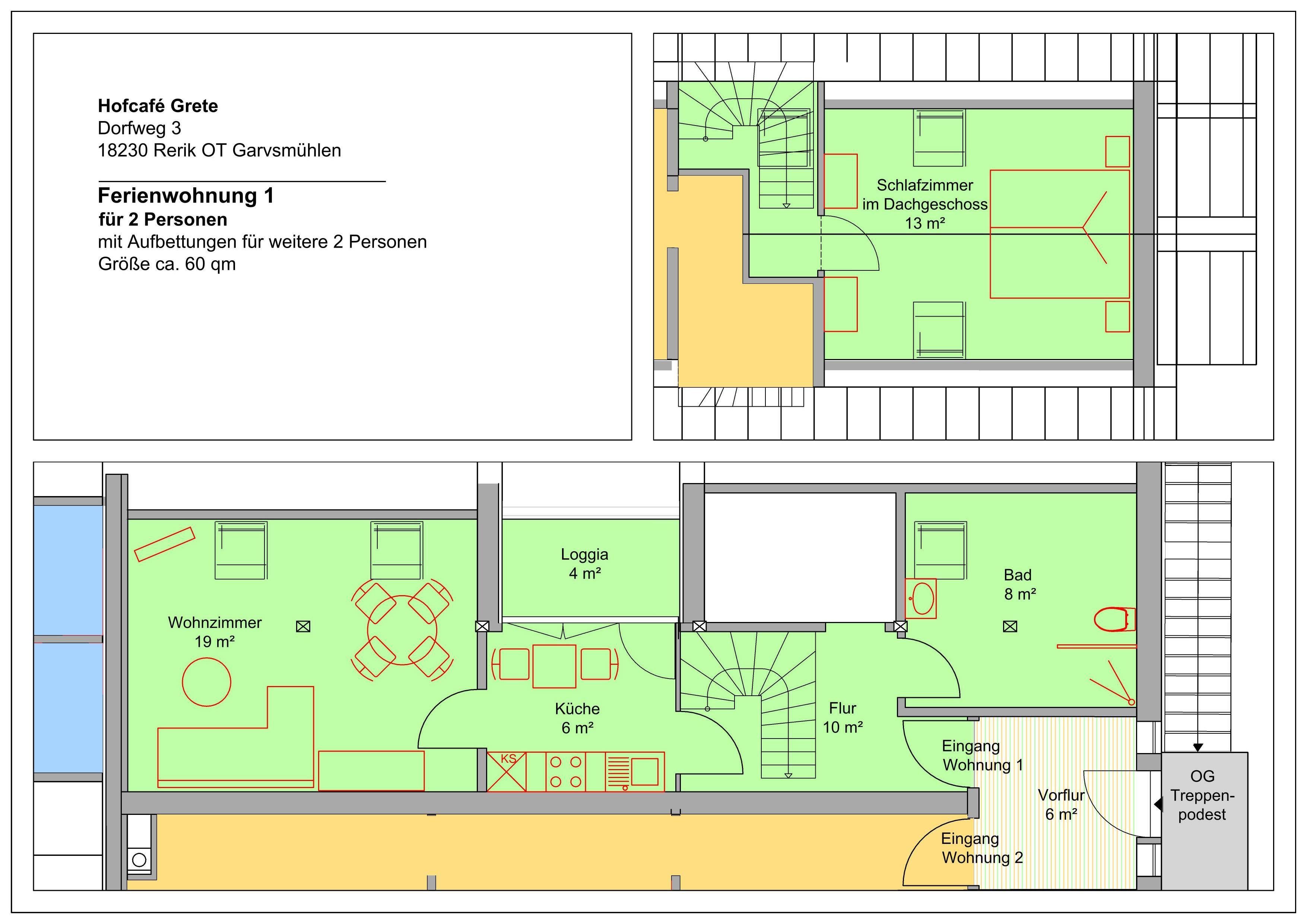
H3 Wohnen am Hofcafé mit Feierscheune Ostseebad Rerik - Nr.1/ 2-Raum-FeWo (rechts, 60m²) 2-4 Pers., Loggia, OG+DG

FeWos, E-Auto-Ladestation, Eventlocation, Biohof, Rerik (ostseebad) Ot Garvsmühlen, -neu - Tolle Lage - Karte anzeigen
4,7
Ausgezeichnet
basierend auf 14 Bewertungen
Personen 5
Schlafzimmer 1
Badezimmer 1
Wohnfläche 60 m²
Bauernhof
Rerik (ostseebad) Ot Garvsmühlen
Objekt-Nr.:
Merken
Teilen

  • Internet
  • TV
  • Seeblick
  • Panoramablick
  • Balkon
  • Grillmöglichkeit
  • Spülmaschine
  • Gefriermöglichkeit
  • Dusche
  • Haustiere nicht erlaubt
  • Nichtraucher
  • Allergikerfreundlich
  • E-Auto Ladestation

Beschreibung

Moderne Ferienwohnungen auf dem Dreiseitenhof mit Hofcafé und Biohof nahe Ostseebad Rerik bieten eine ideale Kombination aus Komfort und Naturnähe. Mit teilweise Weitblick auf das Salzhaff (eine Bucht der Ostsee)  können Gäste die Schönheit des Ostseelandes genießen. 

Die Nähe zu den breiten, weißen Sandstränden in den Ostseebädern Rerik und Kühlungsborn ist ein großer Vorteil, besonders für Liebhaber von Natur und Tradition. Auch die Vielzahl an Freizeitmöglichkeiten wie Wassersport, Minigolf und die Strandpromenaden sorgen für abwechslungsreiche Urlaubstage. 
Das Hofcafé (ab März am Wochenende 14-17 Uhr) ist ein beliebter Treffpunkt für Wanderer und Radfahrer sowie für Familienfeiern. Hoftiere wie Ziegen, Hühner, Mini-Schweine, Gänse und Katzen sind hier zu Hause - ein perfekter Ort, um die Seele baumeln zu lassen oder die Mecklenburger Umgebung zu erkunden! 
Der Hofladen Querbeet am Nachbarhof bietet frisches regionales und saisonales Obst und Gemüse, Honig und Säfte aus Mecklenburg auch in Bio-Qualität. Sehr schöne Blumensträuße werden von der Chefin individuell gebunden. Besondere Wünsche werden schnell und flexibel erfüllt.

Lage
Ostseestrand Seebad Rerik und Kühlungsborn
Breite, weiße Sandstrände in Ostseebad Rerik (3km) und Kühlungsborn (6km), Heiligendamm (12km) und Warnemünde (20km). Badestrände ideal auch für Kleinkinder, auch FKK. Schmaler Strand an der Steilküste 2,5 km. Bootshafen, Seebrücke, Strandpromenade, Restaurants, Cafés, Bummelmeile, Kino, Schwimmbad, Wassersportcenter, Minigolf in den Ostseebädern.

Ferienunterkünfte
Liebevoll eingerichtete 1- und 2-Raum-Ferienwohnungen im Obergeschoss der modernisierten Scheune bieten nicht nur modernen Komfort, sondern auch einen schönen Wiesenblick. Die Möglichkeit, auf der Loggia, dem Balkon oder der Hofterrasse zu entspannen, rundet das Urlaubstag perfekt ab. 
Die zwei 2-Raum-Wohnungen sind kombiniert als XL-4-Raum-Wohnung für bis zu 8 Personen buchbar.
Alle Unterkünfte sind haustierfrei. 

Technische Ausstattung für Tagungen/ Seminare/ Workshops/ Events
Bühne für Ihren DJ oder Musiker
Instrumente: Klavier, Gitarre, Akkordeon und Mikrofone
Musikanlage für Ihre Playlist
Beamer und Leinwand
Diskokugel für die Partynacht

2-Raum-Ferienwohnung mit 60m² auf zwei Ebenen (OG Ober- und DG Dachgeschoss) Platz für 2 bis 4 Personen und ein Baby. 

Im ersten Obergeschoss: Wohn-/ Schlafraum mit Schlafcouch für 2 Personen, TV und Esstisch. Kleine Küche mit Loggia mit grandiosem Weitblick, Backofen, Kühlschrank/ Gefrierfach, 4-Platten-Kochherd, Kaffeemaschine, Wasserkocher, Toaster. Bad mit ebenerdiger Dusche und WC.

Im zweiten Obergeschoss (Dachgeschoss) Schlafraum mit Doppelbett (2x 0,90 x 2 m).
Kein Schutzgitter an der Treppe.

Im Gesamtpreis enthalten: Parkplatz, Endreinigung, Strom, Wasser, Heizung. 1 Kinderhochstuhl.

Auf Wunsch (Gebühr): Bettwäsche und Handtücher. Babybett
Haustiere in den Unterkünften nicht erlaubt
Nebenkosten vor Ort: Ortsübliche Kurtaxe.

Gesamte Beschreibungweniger anzeigen

Ausstattung

Outdoor & Ausblick
  • Panoramablick
  • Seeblick
Leistungen
  • Brötchenservice
  • Hochstuhl
Allgemein
  • Heizung
  • Schlafsofa
  • Rauchmelder
  • Wohn/Schlafraum kombi.
  • E-Auto Ladestation
  • Balkon
  • Allergikerfreundlich
  • Haustiere nicht erlaubt
  • Grillmöglichkeit
  • Nichtraucher
Multimedia
  • TV
  • Smart-TV
  • Internet
  • TV-Flachbild
Küche
  • separate Küche
  • Spülmaschine
  • Toaster
  • Kühlschrank
  • Kaffeemaschine (Filter)
  • Gefriermöglichkeit
  • Backofen
Bad
  • Badewanne/WC
  • Seife oder Duschgel
  • Dusche/WC
  • Dusche
Betten
  • Reise-/Kinderbett
  • Doppelbett

Verfügbarkeit prüfen

Wählen Sie Ihren Reisezeitraum aus, um den Preis zu sehen!
>vorheriges Objekt
Jahresansicht
Nov 2025
Mo Di Mi Do Fr Sa So
          1 2
3 4 5 6 7 8 9
10 11 12 13 14 15 16
17 18 19 20 21 22 23
24 25 26 27 28 29 30
             
Dez 2025
Mo Di Mi Do Fr Sa So
1 2 3 4 5 6 7
8 9 10 11 12 13 14
15 16 17 18 19 20 21
22 23 24 25 26 27 28
29 30 31        
             
Jan 2026
Mo Di Mi Do Fr Sa So
      1 2 3 4
5 6 7 8 9 10 11
12 13 14 15 16 17 18
19 20 21 22 23 24 25
26 27 28 29 30 31  
             

Lage • H3 Wohnen am Hofcafé mit Feierscheune Ostseebad Rerik - Nr.1/ 2-Raum-FeWo (rechts, 60m²) 2-4 Pers., Loggia, OG+DG

FeWos, E-Auto-Ladestation, Eventlocation, Biohof, Rerik (ostseebad) Ot Garvsmühlen, -neu
In der Umgebung
  • zum Strand 2,0 km
  • zum Zentrum 1,0 km
  • zum Bahnhof 6,0 km
  • zum Bäcker 2,0 km
  • zum Supermarkt 1,5 km
  • zum Restaurant 2,0 km
  • zur Badestelle/Gewässer 2,0 km
  • zur Tourist-Information 2,5 km
  • zur Autobahn 25,0 km
  • zum Wanderweg 10 m
  • zur Bushaltestelle 2,0 km
  • zum Krankenhaus/Klinik 20,0 km
  • zum Geldautomaten/Bank 2,0 km
  • zum Radweg 10 m
  • zum Schwimm-/Spaßbad 6,0 km
  • zum Arzt 2,0 km
  • zum Nachbarn 20 m
Reisende, die sich die Unterkunft H3 Wohnen am Hofcafé mit Feierscheune Ostseebad Rerik - Nr.1/ 2-Raum-FeWo (rechts, 60m²) 2-4 Pers., Loggia, OG+DG angesehen haben, haben diese Unterkünfte gebucht
Merken
124 m²
Bauernhof
9 Pers.
2 Schlafz.
Rerik (ostseebad) Ot Garvsmühlen
4,7 Ausgezeichnet 14 Bewertungen
Merken
60 m²
Bauernhof
5 Pers.
1 Schlafz.
Rerik (ostseebad) Ot Garvsmühlen
4,7 Ausgezeichnet 14 Bewertungen
Merken
64 m²
Bauernhof
5 Pers.
2 Schlafz.
Rerik (ostseebad) Ot Garvsmühlen
4,7 Ausgezeichnet 14 Bewertungen