Vorheriges Objekt Zurück zur Liste Nächstes Objekt
Ferienwohnung

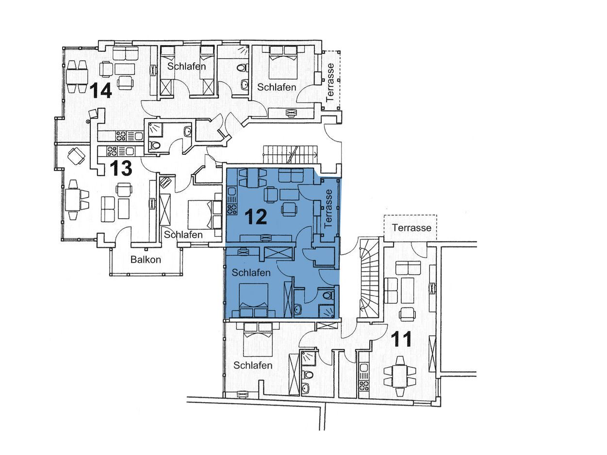
Villa Eden Fewo 12 / 2-Raum Apartment EG - Nr. 12, 50 qm, Parkplatz

Putbuser Straße 14, Binz, Rügen - Tolle Lage - Karte anzeigen
4,7
Ausgezeichnet
basierend auf 4 Bewertungen
Personen 2
Schlafzimmer 1
Badezimmer 1
Wohnfläche 50 m²
Ferienwohnung
Binz
Objekt-Nr.:
Merken
Teilen

  • Internet
  • TV
  • Balkon
  • Mikrowelle
  • Spülmaschine
  • Gefriermöglichkeit
  • Waschmaschine
  • Trockner
  • Haustiere nicht erlaubt
  • Nichtraucher
  • Fahrradabstellraum

Beschreibung

Nur wenige Hundert Meter von der Strandpromenade und dem traumhaften, feinsandigen Strand entfernt liegt dieses ruhig gelegene Apartment in einer der exklusivsten Gegenden von Binz. Hier können Sie nach Belieben spazieren gehen, sich im Meer abkühlen oder einfach die Seele baumeln lassen.

Der Kurpark mit dem Haus des Gastes, die Seebrücke von Binz und das Ortszentrum mit vielfältigen Einkaufsmöglichkeiten und Restaurants erreichen Sie in wenigen Gehminuten.

Ein kostenloser WLAN - Zugang sowie ein kostenfreier PKW - Stellplatz steht Ihnen zur Verfügung. Eine Abstellmöglichkeit für Fahrräder ist ebenfalls vorhanden.


Waschmaschine und Trockner können Sie im Keller des Hauses gegen Gebühr nutzen.

Der Mietvertrag kommt ausschließlich zwischen dem Gast und dem Eigentümer der gemieteten Wohnung zustande.

Handtücher und Bettwäsche sind nicht im Reisepreis enthalten, diese können auf Vorbestellung hinzu gebucht werden.

Erleben Sie einen unvergesslichen Aufenthalt in der Ferienwohnung 12 in der Villa Eden, die nach einer umfassenden Renovierung und Neugestaltung 2024 im klassischen Bädervillen-Stil  mit modernem Komfort glänzt. Das charmante 2-Raum-Apartment bietet auf 46 Quadratmetern ausreichend Platz für bis zu zwei Personen und lädt zu einem erholsamen Urlaub an der Ostsee ein.

Der Wohn- und Essbereich überzeugt mit einer integrierten Küchenzeile, die keine Wünsche offenlässt. Eine komfortable Couch und ein Flachbild-TV sorgen für entspannte Stunden. Vom Wohnbereich gelangen Sie direkt auf den kleinen Balkon, der eine ideale Oase für gemütliche Stunden im Freien bietet.

Das separate Schlafzimmer punktet mit einem großzügigen Doppelbett (1,80 m Breite), einem begehbaren Kleiderschrank und einer einladenden Leseecke, die für eine besondere Wohlfühlatmosphäre sorgt. Ein modernes Duschbad rundet das komfortable Gesamtpaket ab.

Top-Lage in Binz – Strandnah und stilvoll
Die Villa Eden besticht durch ihre exklusive Lage im Herzen des Ostseebades Binz, nur 300 Meter vom feinsandigen Strand entfernt. Die Nähe zur Seebrücke und zur Flaniermeile macht die Ferienwohnung zum idealen Ausgangspunkt für Spaziergänge, Erkundungstouren und entspannte Urlaubstage.

Die historische Bäderarchitektur der Jahrhundertwende verleiht der Villa ein stilvolles Ambiente, das den Charme von Binz perfekt widerspiegelt.

Ferienwohnung in Binz buchen
Genießen Sie Ihre Auszeit an der Ostsee in der Ferienwohnung 12 der Villa Eden. Ob ein romantischer Urlaub zu zweit oder entspannte Tage am Meer – hier treffen stilvolles Design und erstklassige Lage aufeinander.

Gesamte Beschreibungweniger anzeigen

Ausstattung

Allgemein
  • Rauchmelder
  • Fahrradabstellraum
  • Heizung
  • Haustiere nicht erlaubt
  • Nichtraucher
  • Trockner
  • Waschmaschine
  • Balkon
Multimedia
  • Kabel/Sat
  • TV
  • Internet
  • TV-Flachbild
Küche
  • Gefriermöglichkeit
  • Küche (offen)
  • Spülmaschine
  • Toaster
  • Mikrowelle
  • Kühlschrank
  • Kaffeemaschine (Filter)
  • Backofen
Bad
  • Haartrockner
  • Badewanne/WC
Betten
  • Doppelbett

Verfügbarkeit prüfen

Wählen Sie Ihren Reisezeitraum aus, um den Preis zu sehen!
>vorheriges Objekt
Jahresansicht
Nov 2025
Mo Di Mi Do Fr Sa So
          1 2
3 4 5 6 7 8 9
10 11 12 13 14 15 16
17 18 19 20 21 22 23
24 25 26 27 28 29 30
             
Dez 2025
Mo Di Mi Do Fr Sa So
1 2 3 4 5 6 7
8 9 10 11 12 13 14
15 16 17 18 19 20 21
22 23 24 25 26 27 28
29 30 31        
             
Jan 2026
Mo Di Mi Do Fr Sa So
      1 2 3 4
5 6 7 8 9 10 11
12 13 14 15 16 17 18
19 20 21 22 23 24 25
26 27 28 29 30 31  
             

Lage • Villa Eden Fewo 12 / 2-Raum Apartment EG - Nr. 12, 50 qm, Parkplatz

Putbuser Straße 14, Binz, Rügen
In der Umgebung
  • zum Strand 300 m
  • zum Zentrum 300 m
  • zum Bahnhof 900 m
  • zum Bäcker 300 m
  • zum Supermarkt 400 m
  • zum Restaurant 300 m
  • zur Badestelle/Gewässer 300 m
  • zur Tourist-Information 200 m
  • zum Flughafen 30,0 km
  • zur Autobahn 70,0 km
  • zum Wanderweg 300 m
  • zur Bushaltestelle 300 m
  • zum Krankenhaus/Klinik 15,0 km
  • zum Geldautomaten/Bank 300 m
  • zum Radweg 300 m
  • zum Arzt 400 m
Reisende, die sich die Unterkunft Villa Eden Fewo 12 / 2-Raum Apartment EG - Nr. 12, 50 qm, Parkplatz angesehen haben, haben diese Unterkünfte gebucht
Merken
80 m²
Ferienpark
5 Pers.
2 Schlafz.
Binz
4,5 Ausgezeichnet 57 Bewertungen
Merken
40 m²
Ferienwohnung
5 Pers.
1 Schlafz.
Binz
Merken
50 m²
Ferienwohnung
2 Pers.
1 Schlafz.
Binz
4,7 Ausgezeichnet 4 Bewertungen
Merken
41 m²
Ferienwohnung
5 Pers.
1 Schlafz.
Binz
4,6 Ausgezeichnet 244 Bewertungen