Vorheriges Objekt Zurück zur Liste Nächstes Objekt
Ferienwohnung

Eichenhain Saltkrokan

Eichenhain 2, Pelzerhaken, Lübecker Bucht - Tolle Lage - Karte anzeigen
0,0
basierend auf 0 Bewertungen
Personen 2
Schlafzimmer 1
Badezimmer 1
Wohnfläche 55 m²
Ferienwohnung
Pelzerhaken
Objekt-Nr.:
Merken
Teilen

  • Internet
  • TV
  • Balkon
  • Spülmaschine
  • Gefriermöglichkeit
  • Dusche
  • Waschmaschine
  • Nichtraucher
  • Fahrradabstellraum

Beschreibung

Ferienwohnung Saltkrokan mit Balkon und Meerblick in Pelzerhaken
Die Schlüsselübergabe erfolgt über einen Schlüsselsafe direkt an Ihrer Ferienunterkunft.

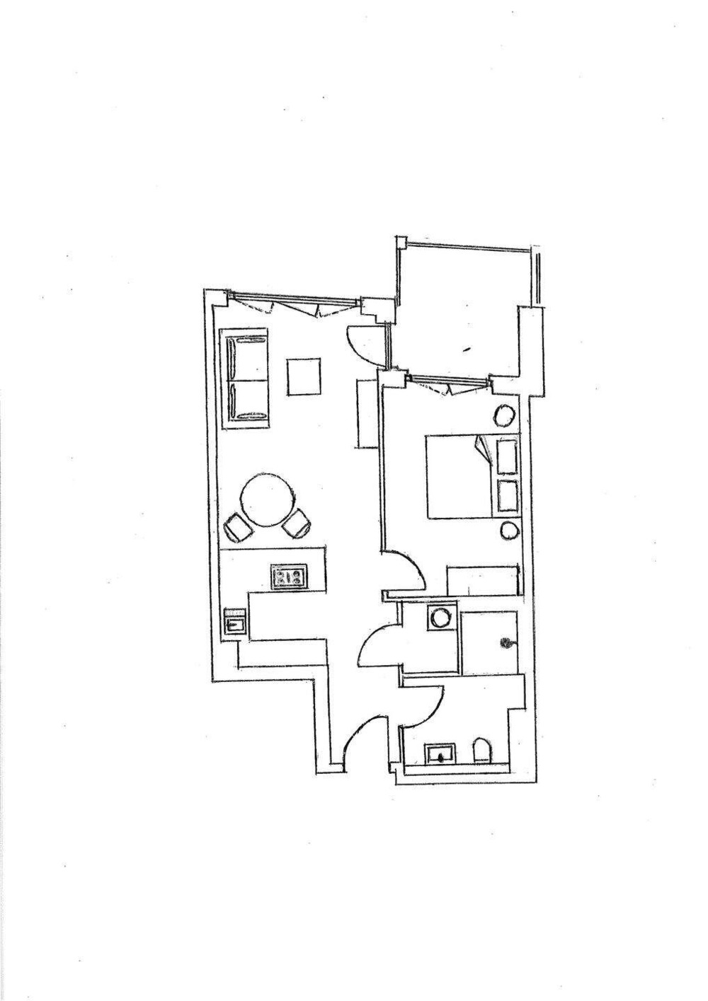
Diese modern eingerichtete 2-Zimmer-Ferienwohnung (ca. 55 qm) für bis zu 2 Personen ist eine wahre Wohlfühloase im 1. Stock mit einzigartigem Meerblick.

Der kombinierte Wohn- und Essbereich ist hochwertig ausgestattet und lädt Sie ein, erholsame Abende auf dem Sofa bei einem guten Film zu verbringen. In der offenen, voll ausgestatteten Küche können Sie abends Ihr Urlaubsmenü zaubern. Alle notwendigen Küchengeräte wie z. B. ein Backofen in komfortabler Arbeitshöhe, ein Herd (Induktion), ein Kühlschrank mit Gefrierfach sowie ein Geschirrspüler sind vorhanden. Als Highlight steht Ihnen neben einer Kaffeefiltermaschine zusätzlich eine Kaffeekapselmaschine (Nespresso) zur Verfügung. Das separate Schlafzimmer erwartet Sie bereits mit einem komfortablen Boxspring-Doppelbett (180x200 cm, durchgehender Topper). Auf den überdachten Süd-Balkon gelangen Sie sowohl vom Wohn- als auch vom Schlafzimmer. Genießen Sie Ihre Auszeit mit Meerblick und lassen sich dabei die Ostseeluft um die Nase wehen.

Ein PKW-Außenstellplatz (Maße: ca. 3,5 m x 5 m) ist für Sie reserviert. Eine Waschmaschine steht Ihnen zur Eigennutzung zur Verfügung. Die Gäste können außerdem den großzügigen Gemeinschaftsgarten inklusive Sandspielplatz nutzen.

Bitte haben Sie Verständnis, dass es sich bei dieser Ferienwohnung um ein Nichtraucherobjekt handelt. Das Mitbringen von Haustieren ist ebenfalls nicht gestattet.

Schlafzimmer: 1 Boxspring-Doppelbett (180x200 cm, durchgehender Topper), Kleiderschrank, Verdunkelung (Gardinen), Platz für Babybett

Pelzerhaken ist ein Hotspot für Wassersportfans - hier können Sie nach Herzenslust windsurfen, kiten und Stand-Up-paddeln. Vom Anfänger bis zum Profi, jeder kommt auf seine Kosten. Spielen Sie eine Runde Swingolf, erleben die Abenteuerspielplätze oder entspannen am sonnenverwöhnten Südstrand. Entlang der Promenade können Sie wunderbar spazieren oder mit dem Rad die Umgebung erkunden. Nur ca. 4 km von Pelzerhaken entfernt liegt die Innenstadt von Neustadt in Holstein. Hier gibt es noch Fisch direkt vom Kutter am malerischen Hafen. Die historische Altstadt bietet kleine Boutiquen, charmante Cafés sowie einen umfangreichen Wochenmarkt.

Ferienwohnung Saltkrokan mit Balkon und Meerblick in Pelzerhaken

Gesamte Beschreibungweniger anzeigen

Ausstattung

Allgemein
  • Rauchmelder
  • Fahrradabstellraum
  • Heizung
  • Balkon
  • Waschmaschine
  • Fahrstuhl/Aufzug
  • Nichtraucher
Multimedia
  • TV
  • Internet
Küche
  • separate Küche
  • Spülmaschine
  • Toaster
  • Kühlschrank
  • Kaffeemaschine (Filter)
  • Gefriermöglichkeit
  • Backofen
Bad
  • Haartrockner
  • Dusche
  • Badewanne/WC

Verfügbarkeit prüfen

Wählen Sie Ihren Reisezeitraum aus, um den Preis zu sehen!
>vorheriges Objekt
Jahresansicht
Nov 2025
Mo Di Mi Do Fr Sa So
          1 2
3 4 5 6 7 8 9
10 11 12 13 14 15 16
17 18 19 20 21 22 23
24 25 26 27 28 29 30
             
Dez 2025
Mo Di Mi Do Fr Sa So
1 2 3 4 5 6 7
8 9 10 11 12 13 14
15 16 17 18 19 20 21
22 23 24 25 26 27 28
29 30 31        
             
Jan 2026
Mo Di Mi Do Fr Sa So
      1 2 3 4
5 6 7 8 9 10 11
12 13 14 15 16 17 18
19 20 21 22 23 24 25
26 27 28 29 30 31  
             

Lage • Eichenhain Saltkrokan

Eichenhain 2, Pelzerhaken, Lübecker Bucht
Reisende, die sich die Unterkunft Eichenhain Saltkrokan angesehen haben, haben diese Unterkünfte gebucht
Merken
80 m²
Ferienhaus
4 Pers.
2 Schlafz.
Pelzerhaken
Merken
80 m²
Ferienwohnung
6 Pers.
1 Schlafz.
Schashagen
Merken
146 m²
Ferienhaus
9 Pers.
5 Schlafz.
Neustadt in Holstein
4,0 Sehr Gut 6 Bewertungen