Ferienwohnung

Altstadt-Kreativquartier - 1-malig

Knieperstraße 20a, Stralsund, Fischland-Darß-Zingst - Tolle Lage - Karte anzeigen
4,9
Ausgezeichnet
basierend auf 16 Bewertungen
Personen 3
Schlafzimmer 1
Badezimmer 1
Wohnfläche 15 m²
Ferienwohnung
Stralsund
Objekt-Nr.:
Merken
Teilen

  • Internet
  • TV
  • Terrasse
  • Balkon
  • Grillmöglichkeit
  • Mikrowelle
  • Spülmaschine
  • Waschmaschine
  • Trockner
  • Haustiere nicht erlaubt
  • Nichtraucher
  • Fahrradabstellraum

Beschreibung

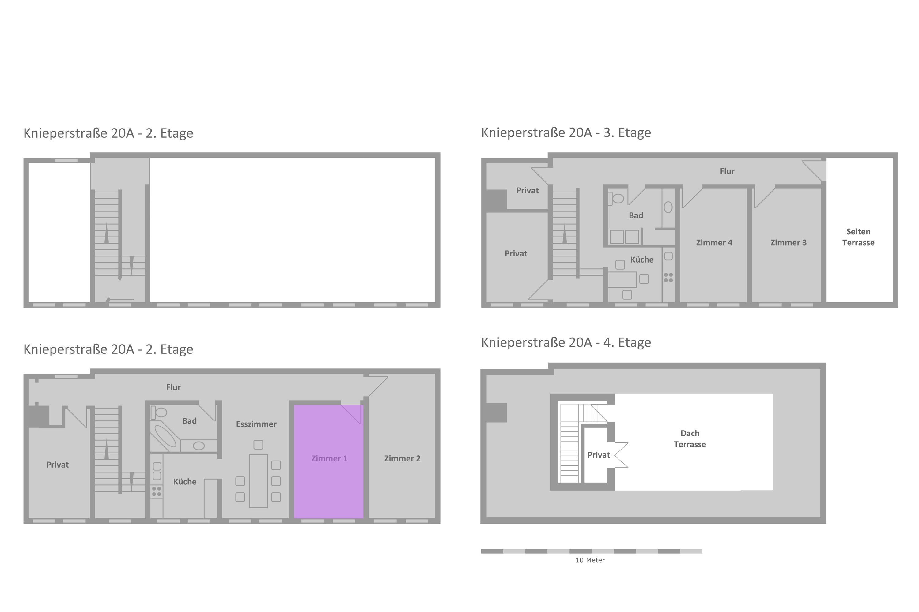
Betrachten Sie die Dachlandschaft unserer Vergangenheit aus der Vogelperspektive. Das Altstadt-Kreativquartier hat eine Dachterrasse und vier separate Doppelzimmer auf zwei Etagen, die sich zwei Küchen und Bäder teilen. Sie können Ihre Mahlzeiten selbst zubereiten und sich von Ihren Mitreisenden inspirieren lassen. Großformatige Bilder schmücken die Wände und regen zum Malen an. Bei Bedarf kann ein Kinderbett (bis 3 Jahren) gestellt werden. Auch Waschmaschine und Trockner sind vorhanden. Gelegen zwischen Altem Markt und Kniepertor befinden Sie sich mitten im Geschehen. Restaurants und Cafés, Läden, ein Discounter, das Theater und mehrere Museen, alles ist fußläufig zu erreichen. Öffentliche Verkehrsmittel und ein Parkhaus sind nur 200 Meter entfernt. Fahrräder können verschlossen und geladen werden. Wir sind zentral, kreativ und hilfsbereit und freuen uns auf Ihren Besuch.

Das Zimmer 1 befindet sich in der 2. Etage. Es ist mit einem Doppelbett (1,60 Meter Breite), einem Smart-TV, einer Sitzgelegenheit und einem Kleiderständer ausgestattet.

Für die GEMEINSCHAFTLICHE NUTZUNG steht allen Gästen des Altstadt-Kreativquartiers zur Verfügung:

2. Etage:
- großer Essbereich
- Badezimmer (Badewanne, WC)
- Küche (Backofen, Herd, Spülmaschine, Kaffeemaschine, Wasserkocher, Toaster, je Zimmer ein Kühlschrank)

3. Etage:
- Badezimmer (Dusche, WC, Waschmaschine, Trockner)
- Küche (Backofen, Herd, Spülmaschine, Kaffeemaschine, Wasserkocher, Toaster, je Zimmer ein Kühlschrank)
-  Seitenterrasse

4. Etage:
- Dachterrasse

Gesamte Beschreibungweniger anzeigen

Ausstattung

Allgemein
  • Nichtraucher
  • Rauchmelder
  • Fahrradabstellraum
  • Heizung
  • E-Bike Ladestation
  • Balkon
  • Terrasse
  • Waschmaschine
  • Trockner
  • Haustiere nicht erlaubt
  • Grillmöglichkeit
  • Aufenthaltsraum
Multimedia
  • TV-Flachbild
  • Internet
  • Smart-TV
  • TV
  • Kabel/Sat
Küche
  • Kaffeemaschine (Filter)
  • Gemeinschaftsküche
  • Spülmaschine
  • Toaster
  • Mikrowelle
  • Kühlschrank
  • Backofen
Bad
  • Haartrockner
  • Badewanne/WC
  • Seife oder Duschgel
  • Handtücher
Betten
  • Doppelbett
  • französisches Bett
  • Bettwäsche

Verfügbarkeit prüfen

Wählen Sie Ihren Reisezeitraum aus, um den Preis zu sehen!
>vorheriges Objekt
Jahresansicht
Jan 2026
Mo Di Mi Do Fr Sa So
      1 2 3 4
5 6 7 8 9 10 11
12 13 14 15 16 17 18
19 20 21 22 23 24 25
26 27 28 29 30 31  
             
Feb 2026
Mo Di Mi Do Fr Sa So
            1
2 3 4 5 6 7 8
9 10 11 12 13 14 15
16 17 18 19 20 21 22
23 24 25 26 27 28  
             
Mär 2026
Mo Di Mi Do Fr Sa So
            1
2 3 4 5 6 7 8
9 10 11 12 13 14 15
16 17 18 19 20 21 22
23 24 25 26 27 28 29
30 31          

Lage • Altstadt-Kreativquartier - 1-malig

Knieperstraße 20a, Stralsund, Fischland-Darß-Zingst
In der Umgebung
  • zum Strand 1,8 km
  • zum Bahnhof 1,4 km
  • zum Bäcker 200 m
  • zum Supermarkt 200 m
  • zum Restaurant 100 m
  • zur Badestelle/Gewässer 1,8 km
  • zur Tourist-Information 100 m
  • zur Bushaltestelle 200 m
  • zum Geldautomaten/Bank 200 m
  • zum Schwimm-/Spaßbad 3,6 km
Reisende, die sich die Unterkunft Altstadt-Kreativquartier - 1-malig angesehen haben, haben diese Unterkünfte gebucht
Merken
15 m²
Ferienwohnung
3 Pers.
1 Schlafz.
Stralsund
4,9 Ausgezeichnet 16 Bewertungen
Merken
56 m²
Ferienwohnung
6 Pers.
2 Schlafz.
Stralsund
4,5 Sehr Gut 5 Bewertungen
Merken
76 m²
Ferienwohnung
4 Pers.
1 Schlafz.
Stralsund
4,6 Ausgezeichnet 24 Bewertungen
Ferienwohnungen Früchtenicht - Ferienwohnung 06
Merken
56 m²
Ferienwohnung
5 Pers.
2 Schlafz.
Stralsund
4,1 Sehr Gut 43 Bewertungen