Ferienhaus

Möwenglück am Meer - Ferienhaus Möwenglück am Meer mit Garten am Wasser

Möwensteert 7, Südbrookmerland, Ostfriesland - Tolle Lage - Karte anzeigen
0,0
basierend auf 0 Bewertungen
Personen 4
Schlafzimmer 3
Badezimmer 1
Wohnfläche 56 m²
Ferienhaus
Südbrookmerland
Objekt-Nr.:
Merken
Teilen

  • Internet
  • TV
  • Terrasse
  • Spülmaschine
  • Dusche
  • Waschmaschine
  • Haustier erlaubt
  • Nichtraucher

Beschreibung

Neu bei uns ab Ostern 2026!

Möwenglück am Meer - gemeinsam ankommen, lachen und genießen.

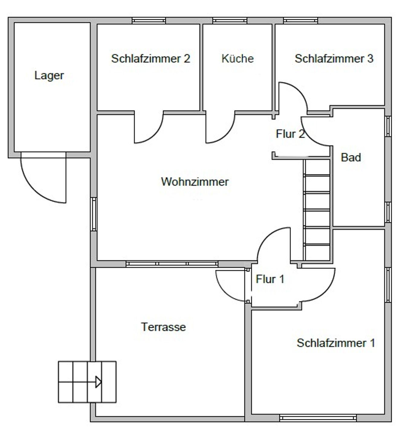
Gemütliche und familienfreundliche ca. 56qm große Meerbude mit dreiseitigem Wasserzugang am Großen Meer!

Sie betreten das Ferienhaus über die große und teilweise überdachte Terrasse mit neuer Möblierung und schönem Blick in den Garten und die umliegenden Kanäle. Im Haus finden Sie abgehend vom kleinen Eingangsbereich mit Garderobe das Elternschlafzimmer im Anbau mit Doppelbett (1,60 m x 2,00 m, einzelne Matratzen), Kleiderschrank und TV.
Im Haupthaus gelangen Sie in den Wohn- und Essbereich mit Sofa, Sessel, TV, Essplatz und einigen Einbauschränken mit ausreichend Verstaumöglichkeiten.

Von hier gehen die übrigen Räume ab:
Die Küche ist u.a. mit Kühlschrank, kleiner Spülmaschine, Herd, Backofen, Toaster, Wasserkocher, Kaffeemaschine und Senseo-Padmaschine ausgestattet, einen separaten Gefrierschrank finden Sie im Abstellraum außen am Haus.
Die beiden weiteren Schlafzimmer sind jeweils mit einem Einzelbett (0,90 m x 2,00 m bzw. 0,90 m x 1,90 m) ausgestattet, eines der Zimmer verfügt zusätzlich über eine Wickelkommode und ein klappbares Babybett.
Das Badezimmer verfügt über WC, Dusche, Waschbecken, Fenster, Föhn und eine Toploader-Waschmaschine.

Von allen Zimmern des Hauses (mit Ausnahme des Badezimmers) haben Sie tolle Ausblicke auf die Kanäle! Im Haus finden Sie einige Spiele und Bücher, die wichtigsten Fenster sind mit Fliegengittern ausgestattet. Ein Kinderhochstuhl steht im Haus auch kostenfrei zur Verfügung.

Am Haus finden Sie einen abschließbaren Abstellraum mit Stromanschluss für mitgebrachte Fahrräder. Hier sind auch ein aufblasbares SUP, sowie Paddel für das vorhandene Ruderboot zu finden, das an der Slip-Anlage selbst zu Wasser gelassen werden kann. Mit dem Ruderboot paddelt man nur wenige Minuten bis man auf dem Großen Meer ankommt! Es besteht auch die Möglichkeit, ein eigenes Boot mitzubringen, an der nahegelegenen Slipanlage zu Wasser zu lassen und dann den hauseigenen Steg zu nutzen.

Bis zu 2 Hunde sind nach vorheriger Anmeldung und gegen separate Gebühr willkommen, das Rauchen ist im Haus nicht gestattet.

Vor dem Grundstück können 1-2 PKWs parken.

Kostenfreies WLAN ist verfügbar! (Für ausreichende Geschwindigkeit und uneingeschränkte Verfügbarkeit übernehmen wir keine Gewähr.)

Eine Einzäunung eines Teilbereichs im Gartens und die Installation von Klimaanlagen im Wohnzimmer und Elternschlafzimmer werden noch folgen.

Eine Pizzeria ist 200 m entfernt, weitere Restaurants, Bootsverleih, Surfschule, Kinderspielplatz und Strand erreichen Sie in ca. 700 m.

Das Große Meer in Südbrookmerland ist der größte Binnensee Ostfrieslands und ein echter Geheimtipp für alle, die Ruhe, Natur und Wassernähe suchen. Umgeben von weitläufigen Wiesen, kleinen Kanälen und typisch ostfriesischer Landschaft bietet die Region ideale Voraussetzungen für einen erholsamen Urlaub abseits des Trubels. Ob entspannte Spaziergänge entlang des Ufers, ausgedehnte Fahrradtouren oder Wassersport wie Segeln, Surfen und Stand-up-Paddling – am Großen Meer kommen Aktivurlauber ebenso auf ihre Kosten wie Ruhesuchende. Besonders Familien schätzen die flachen Uferbereiche und die naturnahe Umgebung.

Gerne können Sie ein Wäschepaket optional hinzubuchen. Dies ist während der Buchung oder auch jederzeit danach gegen Gebühr möglich.

Gesamte Beschreibungweniger anzeigen

Ausstattung

Allgemein
  • Heizung
  • E-Bike Ladestation
  • Haustier erlaubt
  • Terrasse
  • Waschmaschine
  • Nichtraucher
Multimedia
  • TV
  • Internet
Küche
  • Herd-Ceran, 4 Zonen
  • separate Küche
  • Spülmaschine
  • Toaster
  • Kühlschrank
  • Kaffeemaschine (Filter)
  • Backofen
Bad
  • Dusche
  • Gäste-WC

Verfügbarkeit prüfen

Wählen Sie Ihren Reisezeitraum aus, um den Preis zu sehen!
>vorheriges Objekt
Jahresansicht
Apr 2026
Mo Di Mi Do Fr Sa So
    1 2 3 4 5
6 7 8 9 10 11 12
13 14 15 16 17 18 19
20 21 22 23 24 25 26
27 28 29 30      
             
Mai 2026
Mo Di Mi Do Fr Sa So
        1 2 3
4 5 6 7 8 9 10
11 12 13 14 15 16 17
18 19 20 21 22 23 24
25 26 27 28 29 30 31
             
Jun 2026
Mo Di Mi Do Fr Sa So
1 2 3 4 5 6 7
8 9 10 11 12 13 14
15 16 17 18 19 20 21
22 23 24 25 26 27 28
29 30          
             

Lage • Möwenglück am Meer - Ferienhaus Möwenglück am Meer mit Garten am Wasser

Möwensteert 7, Südbrookmerland, Ostfriesland
Reisende, die sich die Unterkunft Möwenglück am Meer - Ferienhaus Möwenglück am Meer mit Garten am Wasser angesehen haben, haben diese Unterkünfte gebucht
Merken
95 m²
Ferienhaus
6 Pers.
3 Schlafz.
Südbrookmerland
4,7 Ausgezeichnet 2 Bewertungen
Merken
115 m²
Ferienwohnung
6 Pers.
3 Schlafz.
Großheide
Merken
75 m²
Ferienhaus
6 Pers.
3 Schlafz.
Südbrookmerland
Merken
60 m²
Ferienwohnung
4 Pers.
1 Schlafz.
Südbrookmerland