Ferienhaus

Seewind - Baabe

Duenenweg 217, Baabe, Rügen - Tolle Lage - Karte anzeigen
0,0
basierend auf 0 Bewertungen
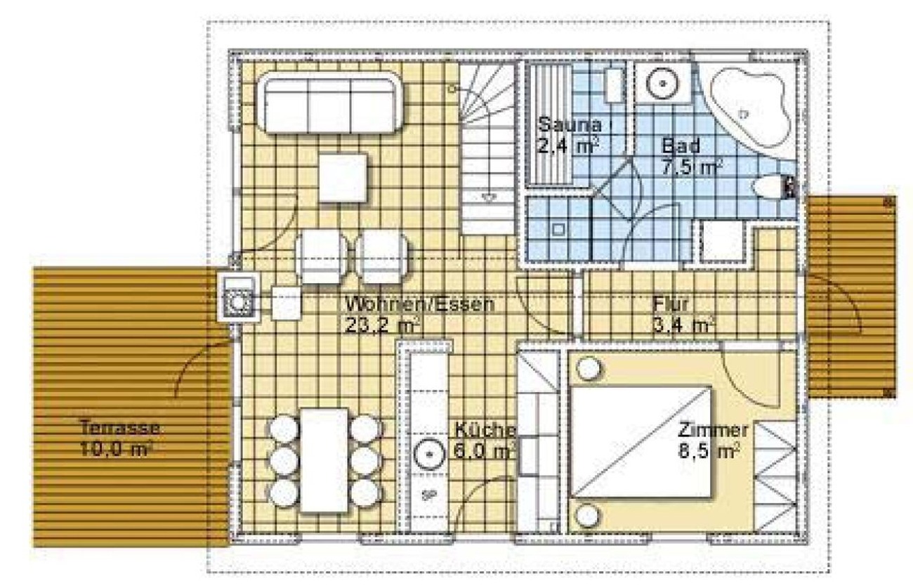
Personen 8
Schlafzimmer 3
Badezimmer 2
Wohnfläche 85 m²
Ferienhaus
Baabe
Objekt-Nr.:
Merken
Teilen

  • Internet
  • TV
  • Terrasse
  • Balkon
  • Grillmöglichkeit
  • Mikrowelle
  • Spülmaschine
  • Gefriermöglichkeit
  • Dusche
  • Sauna
  • Kamin/Ofen
  • Whirlpool
  • Waschmaschine
  • Trockner
  • Haustiere nicht erlaubt
  • Nichtraucher
  • Allergikerfreundlich

Beschreibung

Herzlich willkommen in unserem Ferienhaus
Seewind 217. Das komfortable Ferienhaus liegt im Strandpark Ostseebad Baabe in exklusiver Lage. Genießen Sie die traumhafte Kulisse von Meer, Strand, Düne und Wald. Einer der schönsten Strände der Ostsee liegt nur wenige Meter vor Ihrer Haustür. Der Strand ist breit, feinsandig und bietet einen flachen Zugang zum Wasser, sodass auch die Kleinen unbekümmert baden können.

Hinweise zu weiteren Kosten und Gebühren:
Bitte beachten Sie, dass in der Silvesterwoche das Objekt nur wochenweise zum Fixpreis, An-/Abreisetag flexibel, buchbar ist.
150,- € Sicherheitsleistung wird im Voraus fällig und muss mit der Miete überwiesen werden. (über Silvester 200,- €). Die Sicherheitsleistung wird abzgl. der Nebenkosten nach der Abreise zurückerstattet.
Kosten für Strom (0,47 € / kWh) und Wasser (6,50 € / m³ ) werden nach Verbrauch abgerechnet (Preise ohne Gewähr).
Bett- und Badwäsche, Kaminholz können auf Wunsch kostenpflichtig bestellt werden.
Die Kurabgabe wird vor Anreise fällig.
Sollte nach erfolgter Buchung und durch Beschluss des Landes ein Gesundheitszeugnis o.ä. benötigt werden, so muss der Mieter dieses Attest auf eigene Kosten besorgen und auf Wunsch der Behörden vorlegen.
Ein Parkplatz in der Nähe des Hauses steht kostenlos zur Verfügung. Ein weiterer Parkplatz kann kostenpflichtig angemietet werden.

In den Ort Baabe geht man 5 Minuten zu Fuß. Dort finden Sie viele hübsche kleine Geschäfte, Restaurants und Cafes. Hier können Sie jeden Tag etwas Neues entdecken. Am Abend dann Wellness im Whirlpool und der Sauna – Ruhe, um Ihren Körper und Ihre Seele einmal mal richtig „baumeln“ zu lassen. Vereint mit dem gesunden, maritimen Reizklima der Insel und unserem aufwendig allergikerfreundlich eingerichteten Haus haben Sie hier die Möglichkeit, Stress und Hektik zu Hause zu lassen.

Da das in einer flachen Bucht liegende Ostseebad Baabe vom pollenarmen Reizklima, sauberer Meeresluft und milden mäßigen Winden profitiert, sind die natürlichen Bedingungen für Allergiker hier absolut ideal.

Im Sommer können Sie auf der Terrasse „im Grünen“ frühstücken, im Winter mit einem spannenden Buch und einem Tee in der Galerie sitzen, den Blick auf die verschneiten Kiefern genießen, oder den Tag mit einem guten Glas Rotwein vor dem Kaminofen ausklingen lassen. Für die Grundwärme sorgt hier eine Elektroheizung. In der kälteren Jahreszeit sorgt eine elektrische Fußbodenheizung für angenehme „Fußwärme“. Das alles und einiges mehr bietet Ihnen unser schönes Strandhaus „Seewind“.

Bitte beachten Sie: Die Häuser im Strandpark stehen in einem Biosphärenreservat, deshalb ist das Grillen mit offenem Feuer nicht gestattet. Ein Elektrogrill ist vorhanden und findet sich im Hausschuppen.

In der Region Baabe und auf der Insel Rügen finden Sie eine Vielzahl von Unternehmensmöglichkeiten. Was Sie nicht versäumen sollten: 1. Schwimmbad „Inselparadies“ im Nachbarort Sellin mit 600 qm Wasserfläche im Innen- und Außenbereich, Wasserrutsche (100 m) 2. Karls Erdbeerhof Rövershagen (B 6 östlich von Rostock), Deutschlands größter Erlebnis-Bauernhof lädt Sie ein! Welt größte Sammlung von Kaffeekannen, Karls kostenloses Kindertobeland, Gokartbahn, Streichelzoo, Eisskulpturen im Winter (Karls Eiszeit), Räucherfisch, Brot/Kuchen aus eigener Herstellung. 3. Fahrt mit dem 'Rasenden Roland', Deutschlands älteste Schmalspurbahn. 4. Dampferausflug nach Hiddensee. 5. Jagdschloss 'Granitz'. 6. Die Hansestadt Stralsund mit der Altstadt 7. Miniaturenpark Gingst/ Rügen weltberühmte Bauwerke im Miniformat, besonders für Kinder geeignet. 8. Störtebeker Festspiele Ralswiek (nur in den Sommermonaten). 9. Fürstenresidenz von Putbus mit Orangerie und Tierpark 10. Cafe Klatsch mit Andreas selbstgebackenem Kuchen neben dem Kurhaus in Baabe.

Herzlich willkommen in unserem Ferienhaus

Gesamte Beschreibungweniger anzeigen

Ausstattung

Leistungen
  • Hochstuhl
Allgemein
  • Abstellraum
  • Schlafsofa
  • Heizung
  • Kamin/Ofen
  • Balkon
  • Terrasse
  • Allergikerfreundlich
  • Grillmöglichkeit
  • Haustiere nicht erlaubt
  • Nichtraucher
  • Trockner
  • Waschmaschine
Multimedia
  • Radio
  • Internet
  • DVD-Player
  • TV
Küche
  • separate Küche
  • Spülmaschine
  • Toaster
  • Mikrowelle
  • Kühlschrank
  • Kaffeemaschine (Filter)
  • Gefriermöglichkeit
  • Backofen
Bad
  • Dusche
Wellness
  • Whirlpool
  • Sauna
Betten
  • Einzelbett
  • Doppelbett

Verfügbarkeit prüfen

Wählen Sie Ihren Reisezeitraum aus, um den Preis zu sehen!
>vorheriges Objekt
Jahresansicht
Apr 2026
Mo Di Mi Do Fr Sa So
    1 2 3 4 5
6 7 8 9 10 11 12
13 14 15 16 17 18 19
20 21 22 23 24 25 26
27 28 29 30      
             
Mai 2026
Mo Di Mi Do Fr Sa So
        1 2 3
4 5 6 7 8 9 10
11 12 13 14 15 16 17
18 19 20 21 22 23 24
25 26 27 28 29 30 31
             
Jun 2026
Mo Di Mi Do Fr Sa So
1 2 3 4 5 6 7
8 9 10 11 12 13 14
15 16 17 18 19 20 21
22 23 24 25 26 27 28
29 30          
             

Lage • Seewind - Baabe

Duenenweg 217, Baabe, Rügen
In der Umgebung
  • Strand 200 m
  • Fähre 30,0 km
  • Restaurant 500 m
  • Bahnhof 1,0 km
  • Flughafen 130,0 km
  • Autobahn 40,0 km
  • Bar/Nachtleben 500,0 km
  • Golf 15,0 km
Reisende, die sich die Unterkunft Seewind - Baabe angesehen haben, haben diese Unterkünfte gebucht
Merken
186 m²
Ferienwohnung
13 Pers.
3 Schlafz.
Lancken-Granitz
5,0 Ausgezeichnet 1 Bewertung
Merken
128 m²
Ferienhaus
8 Pers.
4 Schlafz.
Mönchgut
4,5 Sehr Gut 3 Bewertungen
Merken
60 m²
Ferienwohnung
8 Pers.
2 Schlafz.
Baabe
4,9 Ausgezeichnet 4 Bewertungen
Merken
85 m²
Ferienhaus
8 Pers.
3 Schlafz.
Baabe