Vorheriges Objekt Zurück zur Liste Nächstes Objekt
Ferienpark

Passagendeck Nordseegartenpark - Ferienwohnung Langeoog

Alter Sielweg 13, Bensersiel, Ostfriesland - Tolle Lage - Karte anzeigen
4,4
Sehr Gut
basierend auf 3 Bewertungen
Personen 5
Schlafzimmer 2
Badezimmer 1
Wohnfläche 75 m²
Ferienpark
Bensersiel
Objekt-Nr.:
Merken
Teilen

  • Internet
  • TV
  • Balkon
  • Spülmaschine
  • Dusche
  • Waschmaschine
  • Trockner
  • Haustiere nicht erlaubt
  • Nichtraucher

Beschreibung

Die von uns, dem Ferienwohnungs-Service Brenne, betreuten Ferienwohnungen auf dem „Passagendeck Nordseegartenpark“ im Nordsee-Heilbad Bensersiel wurden im Spätsommer 2004 fertiggestellt. Das Nordsee-Heilbad Bensersiel liegt direkt am einzigartigen Naturschauspiel „Nationalpark Niedersächsisches Wattenmeer“, seit 2009 „UNESCO-Weltnaturerbe“.




Die Ferienwohnungen im Nordseegartenpark sind besonders modern, komfortabel und freundlich eingerichtet, technisch auf dem aktuellsten Stand, teilweise gehen sie über zwei Wohn-Ebenen.



Direkt im Zentrum von Bensersiel genießen Sie aus allen Wohnungen oder von den Balkonen und Terrassen fast aller der von uns betreuten Wohnungen einen tollen Blick auf den Bensersieler Hafen, die Nordsee oder sogar auf die ostfriesischen Inseln. Oder aber eine herrliche Aussicht auf Bensersiel und nach Esens sowie auf das grüne ostfriesische Binnenland mit den satten Weiden, Wiesen und Feldern der Marsch.



Balkone gibt es in allen Ferienwohnungen, fast alle verdienen das Prädikat Balkonterrasse, denn sie sind groß und mit schönen Gartenmöbeln ausgestattet und sie sind windgeschützt angelegt und teilweise verfügen sie sogar über einen Strandkorb. Schauen Sie oben unter dem Menüpunkt Ausstattung in die Beschreibung der Wohnungen und entnehmen Sie dort weitere Details zur Balkon-Lage der einzelnen Wohnungen.
Fast alle Wohnungen sind ohne Treppen zu steigen erreichbar! Auch von den für viele der Wohnungen reservierten Tiefgaragenplätzen, in denen Sie Ihr Fahrzeug parken, gelangen Sie mit Fahrstühlen zu Ihrer Wohnung.

WLAN kostenlos
große 23 m² Terrasse mit vollflächiger elektrischer Markise
3 Fernseher mit Kabelanschluss
Waschmaschine und Wäschetrockner gemeinsames Benutzen gegen Gebühr
Ferienwohnung mit dem Fahrstuhl erreichbar
gemütliche Sitzecke mit 4 Sessel
klappbarer Doppelliegestuhl
Ein abschließbarer Tiefgaragenstellplatz (auch für eventuelle E-Bikes) und ein überdachter
Außenstellplatz für Ihr Auto stehen kostenlos zur Verfügung

Auf Wunsch können Sie auch bei Anreise die Unterkunft selbst reinigen, dann fällt keine Reinigungspauschale an.

Bäcker und Lebensmittel direkt in der Deichpassage im Haus, eine Etage tiefer
Eiscafe, Pizzeria, Einzelhandelsgeschäfte auf gleicher Etage, aber durch den Vorflur baulich abgeschirmt.

Sonstige Geschäfte und Restaurants in unmittelbarer Nähe

Bennis Abenteuerland im Strandportal in Bensersiel-Strandspielplatz unter Dach 100 m entfernt

Hafen direkt vor dem Haus

Strand in 100 m Entfernung

Fahrradverleih 100 m entfernt

Hallen Schwimmbad „Nordseetherme“ mit Sauna und Fitnessraum 300 m entfernt

Klabautermann Indoorspielplatz in Esens


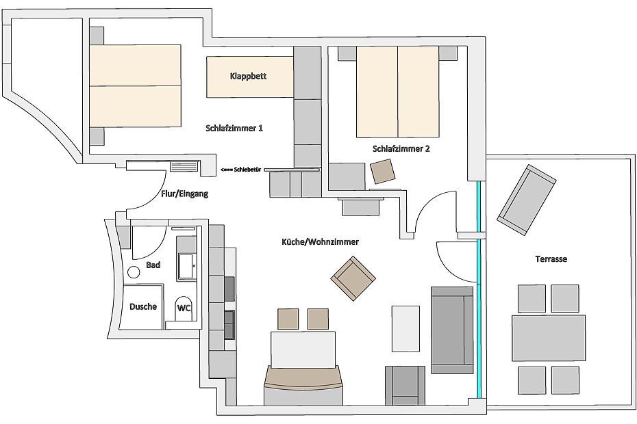
Größe: ca. 75 Quadratmeter
Wohnraum mit integrierter Küche und Essgruppe
Schlafzimmer
zweites separates Schlafzimmer/Kinderzimmer
3. herausklappbares Bett im Schlafzimmer zwei
Badezimmer mit Dusche, Waschtisch und WC
Obergeschoss
Balkon
optimal für 1 bis 4 Personen

Gesamte Beschreibungweniger anzeigen

Ausstattung

Leistungen
  • Hochstuhl
Allgemein
  • Heizung
  • Haustiere nicht erlaubt
  • Fahrstuhl/Aufzug
  • Nichtraucher
  • Trockner
  • Waschmaschine
  • Balkon
Multimedia
  • Kabel/Sat
  • TV
  • Internet
  • TV-Flachbild
Küche
  • Backofen
  • Küche (offen)
  • Spülmaschine
  • Toaster
  • Kühlschrank
  • Kaffeemaschine (Filter)
Bad
  • Dusche
  • Dusche/WC
  • Badewanne/WC
Betten
  • Reise-/Kinderbett
  • Einzelbett
  • Doppelbett

Verfügbarkeit prüfen

Wählen Sie Ihren Reisezeitraum aus, um den Preis zu sehen!
>vorheriges Objekt
Jahresansicht
Nov 2025
Mo Di Mi Do Fr Sa So
          1 2
3 4 5 6 7 8 9
10 11 12 13 14 15 16
17 18 19 20 21 22 23
24 25 26 27 28 29 30
             
Dez 2025
Mo Di Mi Do Fr Sa So
1 2 3 4 5 6 7
8 9 10 11 12 13 14
15 16 17 18 19 20 21
22 23 24 25 26 27 28
29 30 31        
             
Jan 2026
Mo Di Mi Do Fr Sa So
      1 2 3 4
5 6 7 8 9 10 11
12 13 14 15 16 17 18
19 20 21 22 23 24 25
26 27 28 29 30 31  
             

Lage • Passagendeck Nordseegartenpark - Ferienwohnung Langeoog

Alter Sielweg 13, Bensersiel, Ostfriesland
In der Umgebung
  • zum Strand 300 m
  • zum Zentrum 100 m
  • zum Bäcker 100 m
  • zum Supermarkt 100 m
  • zur Therme 300 m
  • zum Restaurant 100 m
  • zum (Kur-)Park/Wald 300 m
  • zur Tourist-Information 300 m
  • zum Wanderweg 200 m
  • zur Bushaltestelle 200 m
  • zum Geldautomaten/Bank 100 m
  • zum Radweg 200 m
  • zum Schwimm-/Spaßbad 300 m
  • zum Arzt 300 m
Reisende, die sich die Unterkunft Passagendeck Nordseegartenpark - Ferienwohnung Langeoog angesehen haben, haben diese Unterkünfte gebucht
Merken
58 m²
Ferienwohnung
5 Pers.
2 Schlafz.
Bensersiel
4,7 Ausgezeichnet 5 Bewertungen
Merken
80 m²
Ferienwohnung
7 Pers.
3 Schlafz.
Esens
3,8 Sehr Gut 4 Bewertungen
Merken
90 m²
Ferienhaus
6 Pers.
3 Schlafz.
Bensersiel
4,1 Sehr Gut 5 Bewertungen
Ferienwohnung Inselblick in Bensersiel - Ferienwohnung Inselblick
Merken
87 m²
Ferienwohnung
6 Pers.
1 Schlafz.
Bensersiel
3,8 Sehr Gut 2 Bewertungen