Ferienhaus

Hochstieg 26, Haushälfte*

Hochstieg 26, Nieblum, Föhr - Tolle Lage - Karte anzeigen
3,9
Sehr Gut
basierend auf 4 Bewertungen
Personen 5
Schlafzimmer 2
Badezimmer 1
Wohnfläche 90 m²
Ferienhaus
Nieblum
Objekt-Nr.:
Merken
Teilen

  • Internet
  • TV
  • Terrasse
  • Mikrowelle
  • Spülmaschine
  • Gefriermöglichkeit
  • Waschmaschine
  • Trockner
  • Haustier erlaubt
  • Nichtraucher

Beschreibung

Mach mal Föhr AngebotGenießen Sie Ihren Urlaub im schönen Nieblum, in diesem liebevoll und komplett ausgestatteten Reetdachhaus im Hochstieg 26, in ruhiger Lage (Sackgasse).In nur 10 Minuten sind Sie am Strand und in 5 Minuten im Ortskern von Nieblum, nur 4 km sind es zum Golfplatz. Im Haus fühlen Sie sich wohl und haben Platz für 4 Pers. und ein Kleinkind.Im eingezäunten Garten ist Ihr Hund hier gut aufgehoben.
Merkmale: Fahrradfreundlich, Internetzugang.

Agentur: M&M Vermieterservice M+M Vermieterservice Mallmann-Grothe, M+M Vermieterservice Mallmann-Grothe c/o Eigentümer

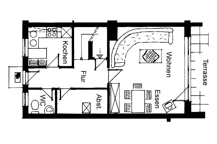
Unser schönes Feriendomizil bietet Ihnen im Erdgeschoss: separate Küche mit kompletter Ausstattung ( z.B. Nespresso Maschine ) , sep. Abstellraum mit Waschmaschine und Trockner, Gäste WC, großes Wohnzimmer mit Smart TV und einem großen gemütlichen Ledersofa sowie Essbereich. Von hier aus haben Sie Zugang zum Garten mit Gartenmöbeln und Liegen.Im Obergeschoß befinden sich: Schlafzimmer 1 mit großem Doppelbett, Smart-TV und Einbauschrank, Schlafzimmer 2 mit zwei Einzelbetten und Einbauschrank. Das Badezimmer hat eine bodenebene Dusche.
Die Unterkunft verteilt sich über EG und 1.OG.
Raumaufteilung: 1 Schlafraum (1 Doppelbett), 1 Schlafraum (2 Einzelbetten), 1 Wohnraum, 1 Flur, 1 separate Küche, 1 Badezimmer mit Dusche, 1 zusätzliches WC, 1 Abstellkammer.
Merkmale:
Auszeichnung: Hunde erlaubt (mit Zusatzkosten verbunden), Kinderfreundlich, Kleinkinderfreundlich, Nichtraucher.
Außenbereich: Abstellmöglichk. f. Fahrräder, eingezäunter Garten, Garten, Gartenmöbel, Parkplatz, Terrasse, Terrassenmöbel.
Kinder: Kinderhochstuhl, Kleinkinderbett.
Küche / Haushalt: Backofen, Bügelbrett und -eisen, Filterkaffeemaschine, Gefrierfach, Geschirrspüler, Mikrowelle, Wäschetrockner, Waschmaschine.
Sanitär: bodenebene Dusche, Föhn, Handtuchheizkörper, Schminkspiegel.
Service: Bettwäsche/Handtücher (mit Zusatzkosten verbunden).
Unterhaltung / Kommunik.: Bluetooth-Lautsprecher, CD-Player, DVD-Player, Flachbild-TV, Flachbild-TV zusätzlich, Radio, Satelliten-TV, Smart-TV, Stereoanlage, Telefon mit Festnetz-Flatrate, WLAN-Anschluss für Internetzugang, WLAN-Zugang.
Sonstiges: 27.3.22-27.6. - 130 Eur p.Tag
27.6.-4.9. - 185 Eur p.Tag
4.9.-30.10. - 130 Eur p.Tag
30.10.-22.12. - 110 Eur p.Tag
22.12-8.1.23 - 185 Eur p.Tag
Reinigung 160 Eur, Haustier 5 Eur p. Tag.

Gesamte Beschreibungweniger anzeigen

Ausstattung

Leistungen
  • Hochstuhl
Allgemein
  • Nichtraucher
  • Trockner
  • Waschmaschine
  • Terrasse
  • Haustier erlaubt
Multimedia
  • Kabel/Sat
  • TV
  • Smart-TV
  • Internet
  • TV-Flachbild
Küche
  • Backofen
  • separate Küche
  • Spülmaschine
  • Mikrowelle
  • Kaffeemaschine (Filter)
  • Gefriermöglichkeit
Bad
  • Haartrockner
  • Gäste-WC
  • Dusche/WC
Betten
  • Reise-/Kinderbett
  • Einzelbett
  • Doppelbett

Verfügbarkeit prüfen

Wählen Sie Ihren Reisezeitraum aus, um den Preis zu sehen!
>vorheriges Objekt
Jahresansicht
Apr 2026
Mo Di Mi Do Fr Sa So
    1 2 3 4 5
6 7 8 9 10 11 12
13 14 15 16 17 18 19
20 21 22 23 24 25 26
27 28 29 30      
             
Mai 2026
Mo Di Mi Do Fr Sa So
        1 2 3
4 5 6 7 8 9 10
11 12 13 14 15 16 17
18 19 20 21 22 23 24
25 26 27 28 29 30 31
             
Jun 2026
Mo Di Mi Do Fr Sa So
1 2 3 4 5 6 7
8 9 10 11 12 13 14
15 16 17 18 19 20 21
22 23 24 25 26 27 28
29 30          
             

Lage • Hochstieg 26, Haushälfte*

Hochstieg 26, Nieblum, Föhr
In der Umgebung
  • zum Strand 1,0 km
  • zum Zentrum 500 m
  • zum Bäcker 500 m
  • zum Supermarkt 500 m
  • zum Restaurant 500 m
  • zur Tourist-Information 300 m
  • zum Golfplatz 4,0 km
  • zur Bushaltestelle 300 m
Reisende, die sich die Unterkunft Hochstieg 26, Haushälfte* angesehen haben, haben diese Unterkünfte gebucht
Merken
150 m²
Ferienhaus
5 Pers.
2 Schlafz.
Nieblum
Merken
90 m²
Ferienhaus
5 Pers.
2 Schlafz.
Nieblum
3,9 Sehr Gut 4 Bewertungen
Merken
105 m²
Ferienwohnung
6 Pers.
3 Schlafz.
Wyk auf Föhr