Vorheriges Objekt Zurück zur Liste Nächstes Objekt
Ferienhaus

Austernfischer, Reihenhaus Guatingwai 12 FH 2*

Guatingwai 12, Goting, Föhr - Tolle Lage - Karte anzeigen
4,3
Sehr Gut
basierend auf 2 Bewertungen
Personen 4
Schlafzimmer 2
Badezimmer 1
Wohnfläche 50 m²
Ferienhaus
Goting
Objekt-Nr.:
Merken
Teilen

  • Internet
  • TV
  • Terrasse
  • Grillmöglichkeit
  • Spülmaschine
  • Gefriermöglichkeit
  • Haustiere nicht erlaubt
  • Nichtraucher

Beschreibung

Merkmale: Garten/Liegewiese, Grillmöglichkeit, Parkplatz; mit Zusatzkosten verbunden: Waschmaschine.

Agentur: M+M Vermieterservice Mallmann-Grothe c/o Eigentümer

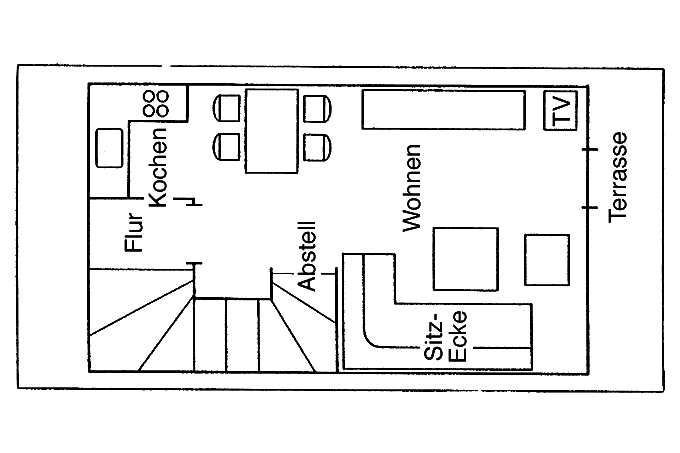
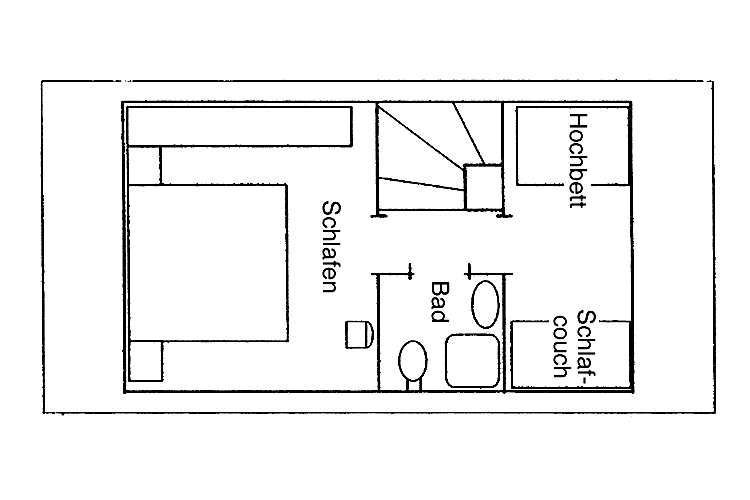
--Mach mal Foehr Angebot-- Insgesamt 5 Wohneinheiten in ruhiger Lage und Strandnähe (5 Fussminuten). Nutzen Sie die Häuser für einen Urlaub mit Freunden / Verwandten in getrennten Wohnungen. Im Erdgeschoß befindet sich ein gemütliches Wohnzimmer mit integrierter Küche und direktem Zugang zur möblierten Terrasse. Schlafzimmer, 1 kleines Kinderzimmer und das Bad finden Sie im Obergeschoß. Auf dem hauseigenen Parkplatz steht Ihnen 1 Stellplatz zur Verfügung.
Die Unterkunft verteilt sich über EG und 1.OG.
Raumaufteilung: 1 Schlafraum (1 Doppelbett), 1 Schlafraum (1 Doppelbett), 1 Wohnraum, 1 Küchenzeile, 1 Badezimmer mit Dusche.
Merkmale:
Auszeichnung: Hunde erlaubt (mit Zusatzkosten verbunden), Kinderfreundlich, Kleinkinderfreundlich, Nichtraucher.
Außenbereich: Abstellmöglichk. f. Fahrräder, Gartenmöbel, Terrasse, Terrassenmöbel.
Kinder: Kinderhochstuhl.
Küche / Haushalt: Backofen, Bügelbrett und -eisen, Gefrierfach, Geschirrspüler.
Sanitär: Föhn.
Service: Bettwäsche/Handtücher (mit Zusatzkosten verbunden).
Unterhaltung / Kommunik.: CD-Player, DVD-Player, Flachbild-TV, Radio, Satelliten-TV, WLAN-Anschluss für Internetzugang, WLAN-Zugang.
Sonstiges: Senseo Maschine.

Gesamte Beschreibungweniger anzeigen

Ausstattung

Leistungen
  • Hochstuhl
Allgemein
  • Grillmöglichkeit
  • Haustiere nicht erlaubt
  • Nichtraucher
  • Terrasse
Multimedia
  • Kabel/Sat
  • TV
  • Internet
  • TV-Flachbild
Küche
  • Backofen
  • Küche (offen)
  • Spülmaschine
  • Gefriermöglichkeit
Bad
  • Dusche/WC
  • Badewanne/WC
  • Haartrockner
Betten
  • Doppelbett

Verfügbarkeit prüfen

Wählen Sie Ihren Reisezeitraum aus, um den Preis zu sehen!
>vorheriges Objekt
Jahresansicht
Nov 2025
Mo Di Mi Do Fr Sa So
          1 2
3 4 5 6 7 8 9
10 11 12 13 14 15 16
17 18 19 20 21 22 23
24 25 26 27 28 29 30
             
Dez 2025
Mo Di Mi Do Fr Sa So
1 2 3 4 5 6 7
8 9 10 11 12 13 14
15 16 17 18 19 20 21
22 23 24 25 26 27 28
29 30 31        
             
Jan 2026
Mo Di Mi Do Fr Sa So
      1 2 3 4
5 6 7 8 9 10 11
12 13 14 15 16 17 18
19 20 21 22 23 24 25
26 27 28 29 30 31  
             

Lage • Austernfischer, Reihenhaus Guatingwai 12 FH 2*

Guatingwai 12, Goting, Föhr
In der Umgebung
  • zum Strand 600 m
  • zum Zentrum 1,1 km
  • zum Bäcker 1,1 km
  • zum Supermarkt 1,1 km
  • zum Restaurant 900 m
  • zum Golfplatz 4,4 km
  • zur Bushaltestelle 500 m
Reisende, die sich die Unterkunft Austernfischer, Reihenhaus Guatingwai 12 FH 2* angesehen haben, haben diese Unterkünfte gebucht
Merken
100 m²
Ferienwohnung
4 Pers.
3 Schlafz.
Oldsum
4,5 Ausgezeichnet 3 Bewertungen
Merken
60 m²
Ferienhaus
4 Pers.
1 Schlafz.
Goting
4,5 Ausgezeichnet 1 Bewertung
Merken
90 m²
Ferienhaus
4 Pers.
2 Schlafz.
Nieblum
4,2 Sehr Gut 2 Bewertungen
Merken
75 m²
Ferienwohnung
5 Pers.
2 Schlafz.
Nieblum