Vorheriges Objekt Zurück zur Liste Nächstes Objekt
Ferienwohnung

Ferienwohnungen Min Huus - Ferienwohnung Juist

Deichringstraße 12, Neuharlingersiel, Ostfriesland - Tolle Lage - Karte anzeigen
4,3
Sehr Gut
basierend auf 16 Bewertungen
Personen 5
Schlafzimmer 2
Badezimmer 1
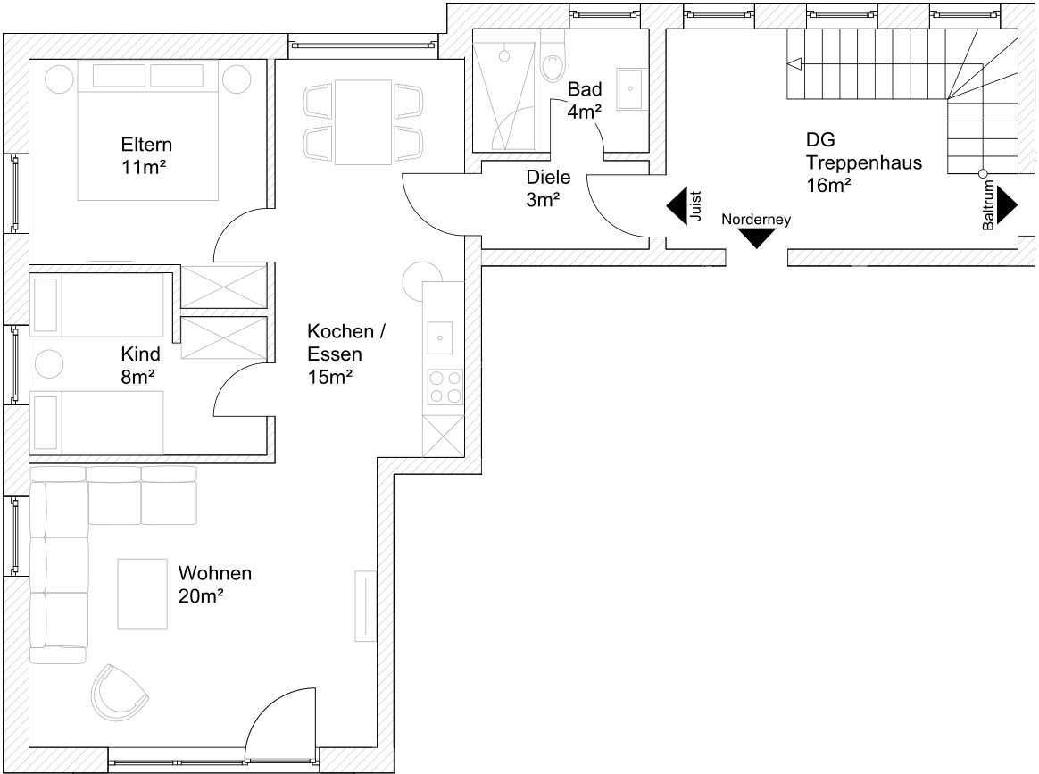
Wohnfläche 60 m²
Ferienwohnung
Neuharlingersiel
Objekt-Nr.:
Merken
Teilen

  • Internet
  • TV
  • Mikrowelle
  • Spülmaschine
  • Gefriermöglichkeit
  • Dusche
  • Waschmaschine
  • Trockner
  • Haustiere nicht erlaubt
  • Nichtraucher
  • Fahrradabstellraum
  • E-Auto Ladestation

Beschreibung

Urlaub im Nordsee-Heilbad Neuharlingersiel, Ferienwohnungen in unmittelbarer Strandnähe!



Im kleinen, idyllischen und schmucken Nordsee-Heilbad Neuharlingersiel finden Sie, liebe Gäste, in unmittelbarer Nähe der Nordsee und des Strandes unser „Min Huus“ mit sechs Ferienwohnungen. 



Die sechs Ferienwohnungen im „Min Huus“ für Ihre schönsten Tage und Wochen des Jahres befinden sich in einer sehr ruhigen Lage in der für die ideale Lage bekannten Deichringstraße. Zu allen touristischen Angeboten sind es nur wenige Minuten Fußweg. Bis zum Badestrand sind es tatsächlich nur wenige Meter!



Die Ferienwohnungen sind im Januar und Februar 2021 komplett renoviert worden und in hellem und freundlichen Stil und mit hochwertigen Materialen eingerichtet und ausgestattet. Fünf Ferienwohnungen sind für bis zu 4 Gäste und eine Ferienwohnung, die Ferienwohnung Baltrum, ist für 2 Gäste. 



Die drei Wohnungen im Erdgeschoss verfügen jeweils über eine Terrasse.



Die drei Ferienwohnungen im 1. Obergeschoss verfügen über Balkone.



Die Wohnung Baltrum hat eine eigene Sauna in der Wohnung.

Ein kostenfreier Internetzugang ist ebenso vorhanden, wie eine gemeinsame Waschmaschine und ein Trockner. 



Fahrräder können am Haus untergestellt und aufgeladen werden.



In allen Elternschlafzimmern ist ein zweiter Fernseher vorhanden.



Die Schlafzimmer lassen sich mit Verdunkelungsgardinen abdunkeln.



In den Ferienwohnungen im Obergeschoss dürfen Sie auf Anfrage Ihr Haustier mitbringen.

Komplett renoviert im Februar 2021
Größe: ca. 60 Quadratmeter
Wohnzimmer
Küche
Schlafzimmer
zweites separates Schlafzimmer/Kinderzimmer
Badezimmer mit Dusche, Waschtisch und WC
Obergeschoss
optimal für 2 bis 4 Personen
Internet über WLAN kostenlos möglich in den Ferienwohnungen.
zweiter Fernseher im Elternschlafzimmer
Fahrräder können untergestellt und geladen werden.
Balkon
Auf Wunsch können Sie bei Anreise die Unterkunft selbst reinigen, dann fällt keine Reinigungspauschale an.


Komplett renoviert im Februar 2021
Größe: ca. 60 Quadratmeter
Wohnzimmer
Küche
Schlafzimmer
zweites separates Schlafzimmer/Kinderzimmer
Badezimmer mit Dusche, Waschtisch und WC
Obergeschoss
Balkon
optimal für 2 bis 4 Personen
Internet über WLAN kostenlos möglich in den Ferienwohnungen.
zweiter Fernseher im Elternschlafzimmer
Fahrräder können untergestellt und geladen werden.
Auf Wunsch können Sie bei Anreise die Unterkunft selbst reinigen, dann fällt keine Reinigungspauschale an.

Gesamte Beschreibungweniger anzeigen

Ausstattung

Leistungen
  • Hochstuhl
Allgemein
  • Fahrradabstellraum
  • Heizung
  • Haustiere nicht erlaubt
  • Nichtraucher
  • Trockner
  • Waschmaschine
  • E-Auto Ladestation
Multimedia
  • Kabel/Sat
  • TV
  • Smart-TV
  • Internet
  • TV-Flachbild
Küche
  • Backofen
  • Küche (offen)
  • Spülmaschine
  • Toaster
  • Mikrowelle
  • Kühlschrank
  • Kaffeemaschine (Filter)
  • Gefriermöglichkeit
Bad
  • Dusche
  • Badewanne/WC
Betten
  • Reise-/Kinderbett
  • Einzelbett
  • Doppelbett

Verfügbarkeit prüfen

Wählen Sie Ihren Reisezeitraum aus, um den Preis zu sehen!
>vorheriges Objekt
Jahresansicht
Dez 2025
Mo Di Mi Do Fr Sa So
1 2 3 4 5 6 7
8 9 10 11 12 13 14
15 16 17 18 19 20 21
22 23 24 25 26 27 28
29 30 31        
             
Jan 2026
Mo Di Mi Do Fr Sa So
      1 2 3 4
5 6 7 8 9 10 11
12 13 14 15 16 17 18
19 20 21 22 23 24 25
26 27 28 29 30 31  
             
Feb 2026
Mo Di Mi Do Fr Sa So
            1
2 3 4 5 6 7 8
9 10 11 12 13 14 15
16 17 18 19 20 21 22
23 24 25 26 27 28  
             

Lage • Ferienwohnungen Min Huus - Ferienwohnung Juist

Deichringstraße 12, Neuharlingersiel, Ostfriesland
In der Umgebung
  • zum Strand 200 m
  • zum Zentrum 700 m
  • zum Bäcker 250 m
  • zum Supermarkt 400 m
  • zur Badestelle/Gewässer 200 m
  • zum (Kur-)Park/Wald 300 m
  • zur Tourist-Information 700 m
  • zum Schwimm-/Spaßbad 600 m
Reisende, die sich die Unterkunft Ferienwohnungen Min Huus - Ferienwohnung Juist angesehen haben, haben diese Unterkünfte gebucht
Merken
75 m²
Ferienwohnung
5 Pers.
Neuharlingersiel
Merken
55 m²
Ferienwohnung
5 Pers.
2 Schlafz.
Werdum
4,5 Sehr Gut 4 Bewertungen
Ferienhof Ennenhof in Buttforde bei Werdum - Ferienwohnung Elsternest
Merken
75 m²
Bauernhof
6 Pers.
3 Schlafz.
Wittmund
4,0 Sehr Gut 1 Bewertung
Merken
60 m²
Ferienwohnung
5 Pers.
2 Schlafz.
Stedesdorf