Vorheriges Objekt Zurück zur Liste Nächstes Objekt
Bauernhof

Ferienhaus in Dornumersiel 20-069a - 200-069a

Eiland 1, Dornum, Ostfriesland - Tolle Lage - Karte anzeigen
0,0
basierend auf 0 Bewertungen
Personen 7
Schlafzimmer 3
Badezimmer 2
Wohnfläche 110 m²
Bauernhof
Dornum
Objekt-Nr.:
Merken
Teilen

  • Internet
  • TV
  • Terrasse
  • Mikrowelle
  • Spülmaschine
  • Gefriermöglichkeit
  • Waschmaschine
  • Trockner
  • Haustier erlaubt
  • Nichtraucher
  • Fahrradabstellraum

Beschreibung

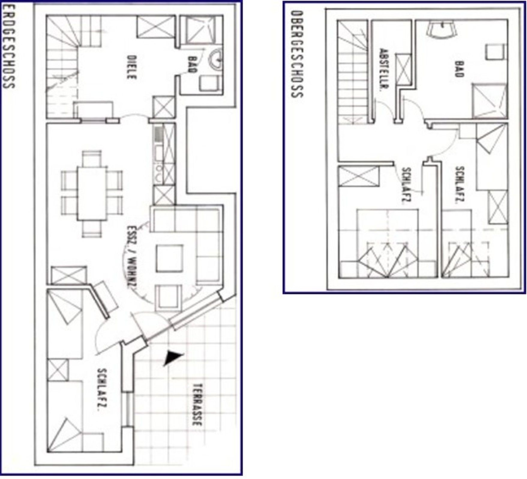
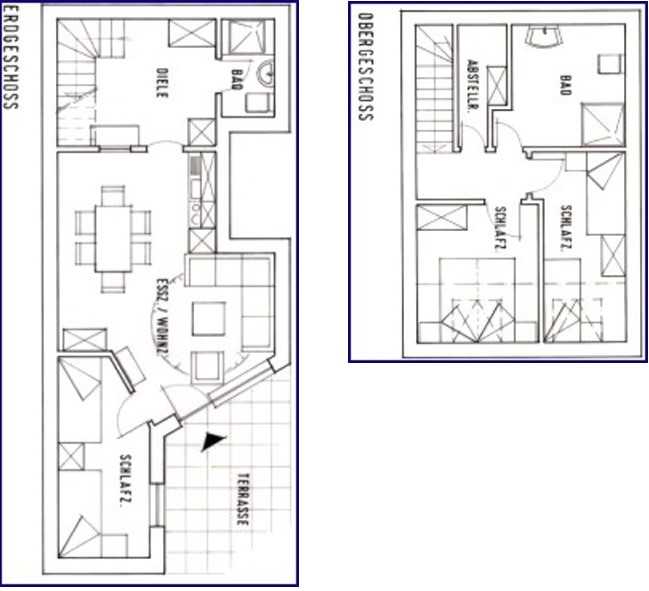
Ferienhaus (Haus im Haus) in einem restaurierten Gulfhof; Maisonettenwohnung auf 2 Etagen mit eigenem Eingang und eigener Terrasse. Der Gulfhof ohne Landwirtschaft liegt in absoluter Alleinlage im Nordseebad Dornumersiel im OT Dornumergrode. Mit 3 Schlafzimmern und 2 Bädern bietet sich hier Platz für bis zu 6 Personen und einem Kleinkind. Vom Grundstück aus kann direkt geangelt werden. Hund erlaubt. Fahrräder zur kostenlosen Nutzung.

Erdgeschoss:
Wohn- und Esszimmer mit Flachbild-TV und Stereoanlage, offener Küchenbereich der mit einer Einbauküche mit 4-Plattenherd und Backofen, Geschirrrspülmaschine, Microwelle, etc. ausgestattet ist.
1 Schlafzimmer mit 2 Einzelbetten.
Badezimmer mit Dusche und WC.
 
Obergeschoss:
1 Schlafzimmer mit Doppelbett und 1 Schlaf- oder Kinderzimmer mit 2 Einzelbetten.
Modernes geräumiges Badezimmer mit Dusche und WC.
 
Gemeinschaftliche Waschküche mit Waschmaschine und Trockner.
Babybett und Kinderhochstuhl stehen zur Verfügung.

Max. 2 Hunde. Keine anderen Haustiere.
 
Sollten Sie keine eigene Bettwäsche und Handtücher mitbringen wollen, können Sie diese bei uns mieten.

Gesamte Beschreibungweniger anzeigen

Ausstattung

Leistungen
  • Strandkorb (persönlich)
  • Hochstuhl
Allgemein
  • Terrasse
  • Fahrradabstellraum
  • Heizung
  • Haustier erlaubt
  • Waschmaschine
  • Trockner
  • Nichtraucher
Multimedia
  • Internet
  • TV
  • Kabel/Sat
Küche
  • separate Küche
  • Spülmaschine
  • Mikrowelle
  • Kühlschrank
  • Gefriermöglichkeit
  • Backofen
Bad
  • Dusche/WC
  • zusätzliches Bad
Betten
  • Reise-/Kinderbett
  • Doppelbett

Verfügbarkeit prüfen

Wählen Sie Ihren Reisezeitraum aus, um den Preis zu sehen!
>vorheriges Objekt
Jahresansicht
Jan 2026
Mo Di Mi Do Fr Sa So
      1 2 3 4
5 6 7 8 9 10 11
12 13 14 15 16 17 18
19 20 21 22 23 24 25
26 27 28 29 30 31  
             
Feb 2026
Mo Di Mi Do Fr Sa So
            1
2 3 4 5 6 7 8
9 10 11 12 13 14 15
16 17 18 19 20 21 22
23 24 25 26 27 28  
             
Mär 2026
Mo Di Mi Do Fr Sa So
            1
2 3 4 5 6 7 8
9 10 11 12 13 14 15
16 17 18 19 20 21 22
23 24 25 26 27 28 29
30 31          

Lage • Ferienhaus in Dornumersiel 20-069a - 200-069a

Eiland 1, Dornum, Ostfriesland
In der Umgebung
  • zum Strand 3,0 km
  • zum Zentrum 1,0 km
  • zum Bäcker 1,0 km
  • zum Supermarkt 1,0 km
  • zum Restaurant 1,0 km
  • zur Badestelle/Gewässer 100 m
  • zum (Kur-)Park/Wald 3,0 km
  • zur Tourist-Information 3,0 km
  • zum Geldautomaten/Bank 1,0 km
  • zum Radweg 200 m
  • zum Schwimm-/Spaßbad 3,0 km
  • zum Arzt 1,0 km
Reisende, die sich die Unterkunft Ferienhaus in Dornumersiel 20-069a - 200-069a angesehen haben, haben diese Unterkünfte gebucht
Merken
90 m²
Ferienhaus
8 Pers.
3 Schlafz.
Dornum
4,0 Sehr Gut 13 Bewertungen
Merken
100 m²
Ferienhaus
7 Pers.
3 Schlafz.
Dornum
4,1 Sehr Gut 2 Bewertungen
Merken
100 m²
Ferienhaus
7 Pers.
3 Schlafz.
Dornum
1,9 Befriedigend 1 Bewertung
Merken
110 m²
Bauernhof
7 Pers.
3 Schlafz.
Dornum