Vorheriges Objekt Zurück zur Liste Nächstes Objekt
Ferienwohnung

Jochimsen, Halvor: Ferien-App. (Nr. 4)

Promenade 28, Schönberg, Kieler Bucht - Tolle Lage - Karte anzeigen
0,0
basierend auf 0 Bewertungen
Personen 2
Schlafzimmer 1
Badezimmer 1
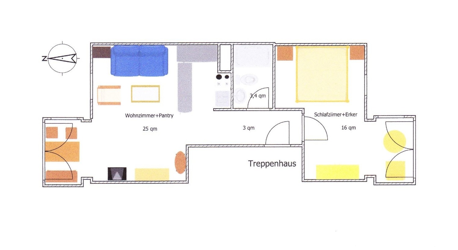
Wohnfläche 42 m²
Ferienwohnung
Schönberg
Objekt-Nr.:
Merken
Teilen

  • Internet
  • Mikrowelle
  • Spülmaschine
  • Gefriermöglichkeit
  • Dusche
  • Haustiere nicht erlaubt
  • Nichtraucher

Beschreibung

Mehr Meer geht nicht! Von Sonnenaufgang über der Hohwachter Bucht bis zum Untergang beim Kieler Leuchtturm. Das Haus liegt direkt hinter dem Deich mit uneingeschränktem Meerblick. Zum feinsandigen, steinfreien Strand sind es nur wenige Schritte: Wunderbar! Dazu gehört ein eigener Strandkorb von Anfang Mai bis Mitte September. Schnelles W-LAN mit Glasfaser bis in die FeWo ist vorhanden. Moderne Einrichtung und Echtholz-Parkett vermitteln Urlaubsgefühl.
Die rund 42 qm große Wohnung bietet Meeresblick pur. Am Esstisch im Erker kann man gemütlich essen, abends ein Glas Wein beim Meeresrauschen am offenen Fenster trinken oder nur aufs Meer mit seinem wechselnden Farbenspiel blicken, man kann Schiffe beobachten oder spielen.

Außer dem kombinierten Ess- und Wohnzimmer mit offener Küchenzeile gibt es einen abgetrennten Schlafraum mit geräumigem Doppelbett mit geteilten Matratzen (jeweils 90 x 200 cm). Und ein verglaster zweiter Erker schließt sich nach Süden an. Er eignet sich zum Lesen und Entspannen in der Nachmittagssonne. In diesem Erker kann auch gut ein Kinderreisebett stehen. Im Wohnraum steht eine bequeme Couch – hierher könnte auch mal ein schnarchender Partner ausweichen (das Laken müsste dann eine Größe von 140 x 200 cm aufweisen)! Es handelt sich um eine Nichtraucher-Wohnung; Haustiere sind nicht erlaubt. Unterstellmöglichkeit für Ihre mitgebrachten Fahrräder sind im Keller.
Es stehen Ihnen ein großes Herren-Fahrrad und ein Damen-Hollandrad zur Verfügung. Bitte die Oldtimer pfleglich behandeln.
Die FeWo ist mit neuem HD-Flachbildfernseher und Stereoradioanlage ausgestattet. Im Grunde kennen wir Schleswig-Holsteiner kein falsches Wetter, sondern nur falsche Kleidung oder ein falsches Tagesprogramm. Schönberger Strand bietet kilometerweite Radwege am Strand (Ostseeradweg) und im Binnenland. Auf dem Asphaltweg am Deichfuß können Sie Inlineskaten oder auf dem Deich joggen, walken und im Sand altdeutsch Spazierengehen. Am Strand befinden sich mehrere Wassersportschulen.
In der Willkommensmappe können Sie zwischen den vielen Sehenswürdigkeiten in der Probstei oder in Kiel wählen, zum Beispiel: Museumsbahnhof mit (Straßen)bahnfahren, einzigartiges Kindheitsmuseum in Schönberg für Jung und Alt, spektakuläres Ehrenmal und U-Boot in Laboe, interessantes Aquarium und Seehunde sowie Schifffahrtsmuseum in Kiel und vieles, vieles mehr.
An der Strandpromenade finden Sie malerische Fischerhütten und ein gemütliches Fischbistro ganz in der Nähe mit leckeren Fischbrötchen, Backfisch, frischem Räucherfisch und je nach Saison frischem Dorsch und Schollen. Es gibt Kneipen, Cafés, Restaurants. Schönberg selbst ist ein lebhafter Ort in der idyllischen Probstei in 3 km Entfernung – auch gut mit dem Rad erreichbar. Dort finden Sie alles, was Sie brauchen vom Discounter bis zum gut sortierten Lebensmittelmarkt, vom Kaufhaus bis zum Baumarkt. Vom kleinen Bistro bis zum guten Restaurant. Auch Ärzte und Apotheken sind vor Ort. Wem das alles nicht reicht, fährt zum Shoppen nach Kiel!
Eine Bushaltestelle für Fahrten nach Schönberg oder Brasilien und Kalifornien (mit Ostseecard kostenlos!) oder aber nach Kiel finden Sie beim Tourist-Service. Es besteht die Möglichkeit kostenlos am Ende des Kiefernweges und in der Straße Am Golfplatz zu parken - je nach Verfügbarkeit.

Mehr Meer geht nicht! Von Sonnenaufgang über der Hohwachter Bucht bis zum Untergang beim Kieler Leuchtturm. Das Haus liegt direkt hinter dem Deich mit uneingeschränktem Meerblick. Zum feinsandigen, steinfreien Strand sind es nur wenige Schritte: Wunderbar! Dazu gehört ein eigener Strandkorb von Anfang Mai bis Mitte September. Schnelles W-LAN mit Glasfaser bis in die FeWo ist vorhanden. Moderne Einrichtung und Echtholz-Parkett vermitteln Urlaubsgefühl.

Gesamte Beschreibungweniger anzeigen

Ausstattung

Allgemein
  • Abstellraum
  • Schlafsofa
  • Nichtraucher
  • Haustiere nicht erlaubt
Multimedia
  • CD-Player
  • Internet
Küche
  • Kaffeemaschine (Filter)
  • separate Küche
  • Spülmaschine
  • Toaster
  • Mikrowelle
  • Kühlschrank
  • Gefriermöglichkeit
Bad
  • Haartrockner
  • Dusche
  • Badewanne/WC
  • Handtücher
Betten
  • Doppelbett

Verfügbarkeit prüfen

Wählen Sie Ihren Reisezeitraum aus, um den Preis zu sehen!
>vorheriges Objekt
Jahresansicht
Apr 2026
Mo Di Mi Do Fr Sa So
    1 2 3 4 5
6 7 8 9 10 11 12
13 14 15 16 17 18 19
20 21 22 23 24 25 26
27 28 29 30      
             
Mai 2026
Mo Di Mi Do Fr Sa So
        1 2 3
4 5 6 7 8 9 10
11 12 13 14 15 16 17
18 19 20 21 22 23 24
25 26 27 28 29 30 31
             
Jun 2026
Mo Di Mi Do Fr Sa So
1 2 3 4 5 6 7
8 9 10 11 12 13 14
15 16 17 18 19 20 21
22 23 24 25 26 27 28
29 30          
             

Lage • Jochimsen, Halvor: Ferien-App. (Nr. 4)

Promenade 28, Schönberg, Kieler Bucht
In der Umgebung
  • Kinderabenteuerland Wendtorf 12,0 km
  • Marine-Ehrenmal Laboe 16,0 km
  • Technisches Museum U 995 Laboe 16,0 km
  • Bahnhof Kiel 26,0 km
  • Schwimmbad Preetz 27,0 km
  • Kiel-Innenstadt (Shopping) 27,0 km
  • Freilichtmuseum Molfsee 32,0 km
  • Nord-Ostsee-Kanal (Holtenau) 38,0 km
  • Tierpark Gettorf 46,0 km
  • Insel Fehmarn 73,0 km
Reisende, die sich die Unterkunft Jochimsen, Halvor: Ferien-App. (Nr. 4) angesehen haben, haben diese Unterkünfte gebucht
Merken
75 m²
Ferienwohnung
4 Pers.
2 Schlafz.
Schönberg
Merken
58 m²
Ferienwohnung
2 Pers.
1 Schlafz.
Schönberg
Merken
46 m²
Ferienwohnung
2 Pers.
2 Schlafz.
Schönberg
Merken
45 m²
Ferienwohnung
3 Pers.
1 Schlafz.
Schönberg
4,9 Ausgezeichnet 2 Bewertungen