Ferienpark

L7 Ferienhaus Strandhafer Ostseebad Rerik - XL - XL 8-Raum-Ferienhaus mit Kamin (max. 11 Personen)

XL- Reetdachhaus, Urlaub mit Hund, Ferien für 11 Personen, Rerik, Mecklenburger Bucht - Tolle Lage - Karte anzeigen
4,4
Sehr Gut
basierend auf 15 Bewertungen
Personen 13
Schlafzimmer 6
Badezimmer 4
Wohnfläche 190 m²
Ferienpark
Rerik
Objekt-Nr.:
Merken
Teilen

  • Internet
  • TV
  • Terrasse
  • Grillmöglichkeit
  • Mikrowelle
  • Spülmaschine
  • Gefriermöglichkeit
  • Dusche
  • Badewanne
  • Kamin/Ofen
  • Waschmaschine
  • Trockner
  • Nichtraucher
  • Fahrradabstellraum

Beschreibung

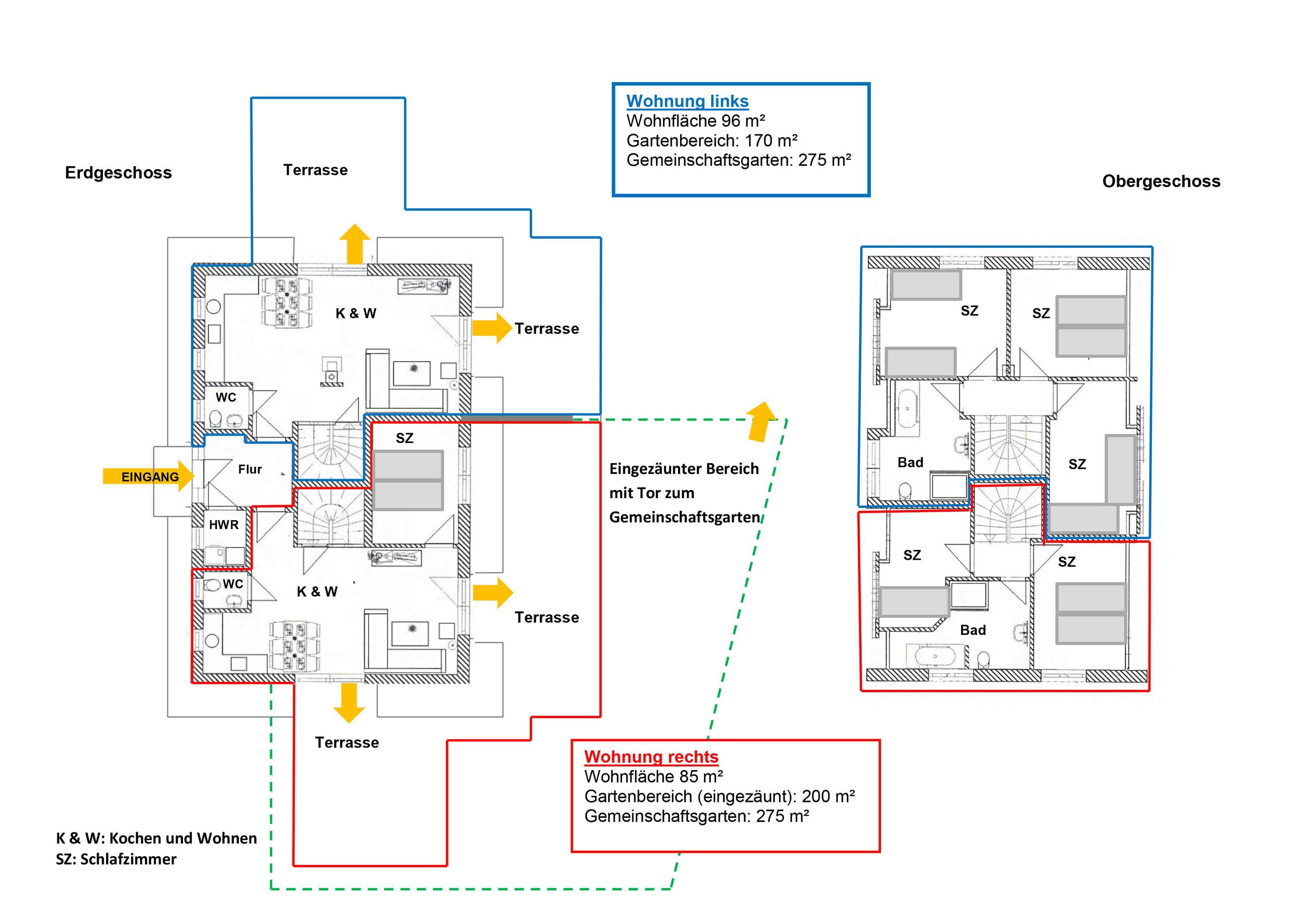
XL Reetdach-Ferienhaus im Ferienpark Ostseebad Rerik mit 2 Doppelhaushälften, die auch zusammen für XL Ostseeurlaub gebucht werden können. Die Doppelhaushälfte links ist für 6 Personen geeignet, die Doppelhaushälfte rechts für 5 Personen = insgesamt gibt es bei XL Buchung genügend Platz für 11 Personen. 
Gemeinschaftlicher Eingang, gemeinschaftliche Nutzung von Waschmaschine und Trockner.
Insgesamt finden Sie hier 6 separate Schlafzimmer (3x je 1 Doppelbett + 2x je 2 Einzelbetten + 1x 1 Einzelbett). In der linken Haushälfte befindet sich ein Kamin, wo man einen erlebnisreichen Tag gemütlich ausklingen lassen kann.



Sonnen- Terrassen mit Gartenmöbeln (Sitz-/ Essgruppe und Lounge Garnitur) sowie abschließbarer Schuppen mit Ladestation für E-Bikes für alle Gäste nutzbar. 

Kinderfreundliche Ausstattung: 
Babybett (Reisebett ohne Bettwäsche), Hochstuhl, kindersichere Steckdosen, Treppenschutzgitter, großer, eingezäunter Garten. Zusätzlich gibt es einen Gemeinschaftsgarten mit Strandkorb und Sandkasten, der bitte tierfrei bleibt. 



Ostseeurlaub mit Hund:  
Im Ferienhaus sind Haustiere willkommen. Je Haus bietet ein eingezäunter Garten Schutz. Ein zusätzlicher Gemeinschaftsgarten für Kinder ist eingezäunt und bleibt tierfrei! Gebühr je Haustier und Tag 10 EUR. Ihr Hund darf nicht unbeaufsichtigt im Ferienhaus bleiben. Gassi- und Auslaufwege starten direkt am Haus Richtung Wald, Feld oder Strand. 

Ausstattung des Ferienhauses:
Waschmaschine, Trockner, WLAN, Elektro- Tisch- Grill, Parkplatz. Smart-TV´s für Streamingdienste Sky, Netflix & Amazon Prime u.a.

Reetdach-/ Schilfdachhäuser:
Da es sich in dem Wohngebiet um Häuser mit Reet handelt, ist das Abfeuern von Feuerwerk und Silvesterraketen verboten. Rauchen im Haus nicht gestattet.

Extra- Service auf Wunsch (Gebühr):
Wäschepaket & Handtücher gg. Gebühr buchbar - ohne Kinderbettwäsche - bei Anreise NICHT bezogen

Reetdach-Ferienhaus mit Kamin im Ostseebad Rerik für max 11 Personen + 2 Babys auf 190m² Wohnfläche plus eingezäuntem Garten. Haustiere willkommen. 
Insgesamt 6 separate Schlafräume (3x Doppelbett + 2x je 2 Einzelbetten + 1x 1 Einzelbett). 2 Bäder mit Dusche/ WC und Badewanne im Obergeschoss. 2 zusätzliche WC im Erdgeschoss. Große Sonnenterrassen mit Gartenmöbeln (Sitz-/ Essgruppen und Lounge Garnitur). Abschließbarer Fahrrad-Schuppen mit Ladestation für E-Bikes am Haus. Waschmaschine und Trockner. Elektro- Tisch-Grill und Kamin. 



Im Erdgeschoss 2 großzügige Wohn-/ Essbereiche, ein Kamin, Esstisch und integrierte Küche mit Backofen, 4-Platten-Herd, Mikrowelle, Geschirrspüler, Kühl-/ Gefrierkombination, Kaffeemaschine. 2x Gäste-WC. Schlafraum 1 mit Doppelbett.
Im Obergeschoss insgesamt 5 Schlafräume, Babybett aufstellbar. Davon Schlafraum 2 und 3 mit Doppelbett & TV. Schlafraum 4 und 5 mit 2 Einzelbetten. Schlafraum 6 mit 1 Einzelbett. 
2x Bad mit Dusche/ WC sowie Badewanne.

Kinderfreundliche Ausstattung:
Babybett (Reisebett) ohne Bettwäsche & ohne Handtücher, Hochstuhl, kindersichere Steckdosen, Treppenschutzgitter, großer, eingezäunter Garten für jede Wohnung vorhanden. Zusätzlich gibt es einen Gemeinschaftsgarten (mit Strandkorb und Sandkasten), in dem keine Haustiere zulässig sind. 



Ostseeurlaub mit Hund:  
Im Ferienhaus sind Haustiere willkommen. Jede Haushälfte verfügt über einen eigenen eingezäunten Garten. Ein zusätzlicher Gemeinschaftsgarten für Kinder ist eingezäunt und bleibt allerdings tierfrei! Gebühr je Haustier und Tag 10 EUR. Ihr Hund darf nicht unbeaufsichtigt im Ferienhaus bleiben. 

Ausstattung des Ferienhauses:
Waschmaschine, Trockner, WLAN, Parkplätze


Feuer, Silvester und Grillen: 
Da es sich in dem Wohngebiet um Häuser mit Reet/Schilfdach handelt, ist das Abfeuern von Feuerwerk und Silvesterraketen verboten! Rauchen im Haus nicht gestattet.

Service auf Wunsch (Gebühr):
Wäschepaket (Bettwäsche = bei Anreise NICHT bezogen, Handtücher, Küchentuch). Kinderbettwäsche bitte selbst mitbringen.

Gesamte Beschreibungweniger anzeigen

Ausstattung

Leistungen
  • Brötchenservice
  • Frühstücksservice
  • Hochstuhl
Allgemein
  • Heizung
  • Barrierefrei
  • Fahrradabstellraum
  • E-Bike Ladestation
  • Hund auf Anfrage
  • Kamin/Ofen
  • Terrasse
  • Waschmaschine
  • Trockner
  • Nichtraucher
  • Grillmöglichkeit
Multimedia
  • TV-Flachbild
  • Internet
  • Smart-TV
  • TV
  • Internet - LAN
  • Kabel/Sat
Küche
  • Gefriermöglichkeit
  • Backofen
  • Kaffeemaschine (Filter)
  • Kühlschrank
  • Mikrowelle
  • Toaster
  • Spülmaschine
  • Küche (offen)
  • Gemeinschaftsküche
Bad
  • Badewanne/WC
  • Handtücher
  • zusätzliches Bad
  • Dusche/WC
  • Gäste-WC
  • Badewanne
  • Dusche
Betten
  • Reise-/Kinderbett
  • Einzelbett
  • Doppelbett
  • getrennt stehende Betten
  • Bettwäsche

Verfügbarkeit prüfen

Wählen Sie Ihren Reisezeitraum aus, um den Preis zu sehen!
>vorheriges Objekt
Jahresansicht
Mär 2026
Mo Di Mi Do Fr Sa So
            1
2 3 4 5 6 7 8
9 10 11 12 13 14 15
16 17 18 19 20 21 22
23 24 25 26 27 28 29
30 31          
Apr 2026
Mo Di Mi Do Fr Sa So
    1 2 3 4 5
6 7 8 9 10 11 12
13 14 15 16 17 18 19
20 21 22 23 24 25 26
27 28 29 30      
             
Mai 2026
Mo Di Mi Do Fr Sa So
        1 2 3
4 5 6 7 8 9 10
11 12 13 14 15 16 17
18 19 20 21 22 23 24
25 26 27 28 29 30 31
             

Lage • L7 Ferienhaus Strandhafer Ostseebad Rerik - XL - XL 8-Raum-Ferienhaus mit Kamin (max. 11 Personen)

XL- Reetdachhaus, Urlaub mit Hund, Ferien für 11 Personen, Rerik, Mecklenburger Bucht
In der Umgebung
  • zum Strand 1,5 km
  • zum Zentrum 1,5 km
  • zum Bahnhof 12,0 km
  • zum Bäcker 1,5 km
  • zum Supermarkt 1,5 km
  • zum Restaurant 1,5 km
  • zur Badestelle/Gewässer 1,5 km
  • zur Tourist-Information 1,5 km
  • zur Autobahn 25,0 km
  • zum Wanderweg 500 m
  • zur Bushaltestelle 1,5 km
  • zum Krankenhaus/Klinik 22,0 km
  • zum Geldautomaten/Bank 1,5 km
  • zum Radweg 500 m
  • zum Arzt 1,5 km
Reisende, die sich die Unterkunft L7 Ferienhaus Strandhafer Ostseebad Rerik - XL - XL 8-Raum-Ferienhaus mit Kamin (max. 11 Personen) angesehen haben, haben diese Unterkünfte gebucht
Merken
270 m²
Ferienpark
18 Pers.
7 Schlafz.
Rerik
4,2 Sehr Gut 18 Bewertungen
Merken
170 m²
Ferienhaus
14 Pers.
6 Schlafz.
Bastorf
4,7 Ausgezeichnet 6 Bewertungen
Merken
208 m²
Ferienwohnung
17 Pers.
8 Schlafz.
Pepelow
4,3 Sehr Gut 30 Bewertungen
Merken
190 m²
Ferienpark
13 Pers.
6 Schlafz.
Rerik
4,4 Sehr Gut 15 Bewertungen