Ferienpark

L7 Ferienhaus Strandhafer Ostseebad Rerik - XL - 4-Raum-Ferienhaus mit Kamin (max. 6 Personen) - links

XL- Reetdachhaus, Urlaub mit Hund, Ferien für 11 Personen, Wallbox, Rerik, Mecklenburger Bucht - Tolle Lage - Karte anzeigen
4,4
Sehr Gut
basierend auf 16 Bewertungen
Personen 7
Schlafzimmer 3
Badezimmer 2
Wohnfläche 96 m²
Ferienpark
Rerik
Objekt-Nr.:
Merken
Teilen

  • Internet
  • TV
  • Terrasse
  • Grillmöglichkeit
  • Mikrowelle
  • Spülmaschine
  • Gefriermöglichkeit
  • Dusche
  • Badewanne
  • Kamin/Ofen
  • Waschmaschine
  • Trockner
  • Nichtraucher
  • Fahrradabstellraum
  • E-Auto Ladestation

Beschreibung

XL Reetdach-Ferienhaus im Ferienpark Ostseebad Rerik mit 2 Doppelhaushälften, die auch zusammen für XL Ostseeurlaub gebucht werden können. Die Doppelhaushälfte links ist für 6 Personen geeignet, die Doppelhaushälfte rechts für 5 Personen = insgesamt gibt es bei XL Buchung genügend Platz für 11 Personen. 
Gemeinschaftlicher Eingang, kostenfreie Nutzung von Waschmaschine und Trockner. E-Auto Ladestation Wallbox am Haus. 
Insgesamt finden Sie hier 6 separate Schlafzimmer (3x je 1 Doppelbett + 2x je 2 Einzelbetten + 1x 1 Einzelbett). In der linken Haushälfte befindet sich ein Kamin, wo man einen erlebnisreichen Tag gemütlich ausklingen lassen kann.



Sonnen- Terrassen mit Gartenmöbeln (Sitz-/ Essgruppe und Lounge Garnitur) sowie abschließbarer Schuppen mit Ladestation für E-Bikes für alle Gäste nutzbar. 

Kinderfreundliche Ausstattung: 
Babybett (Reisebett ohne Bettwäsche), Hochstuhl, kindersichere Steckdosen, Treppenschutzgitter, großer, eingezäunter Garten. Zusätzlich gibt es einen Gemeinschaftsgarten mit Strandkorb und Sandkasten, der bitte tierfrei bleibt. 



Ostseeurlaub mit Hund:  
Im Ferienhaus sind Haustiere willkommen. Je Haus bietet ein eingezäunter Garten Schutz. Ein zusätzlicher Gemeinschaftsgarten für Kinder ist eingezäunt und bleibt tierfrei! Gebühr je Haustier und Tag 10 EUR. Ihr Hund darf nicht unbeaufsichtigt im Ferienhaus bleiben. Gassi- und Auslaufwege starten direkt am Haus Richtung Wald, Feld oder Strand. 

Ausstattung des Ferienhauses:
Waschmaschine, Trockner, WLAN, Elektro- Tisch- Grill, Parkplatz. E-Bike Ladestation und E-Auto Wallbox (Abrechnung nach Verbrauch). 

Smart-TV´s für Streamingdienste Sky, Netflix & Amazon Prime u.a. 

Reetdach-/ Schilfdachhäuser:
Da es sich in dem Wohngebiet um Häuser mit Reet handelt, ist das Abfeuern von Feuerwerk und Silvesterraketen verboten. Rauchen im Haus nicht gestattet.

Extra- Service auf Wunsch (Gebühr):
Wäschepaket & Handtücher gg. Gebühr buchbar - ohne Kinderbettwäsche - bei Anreise NICHT bezogen

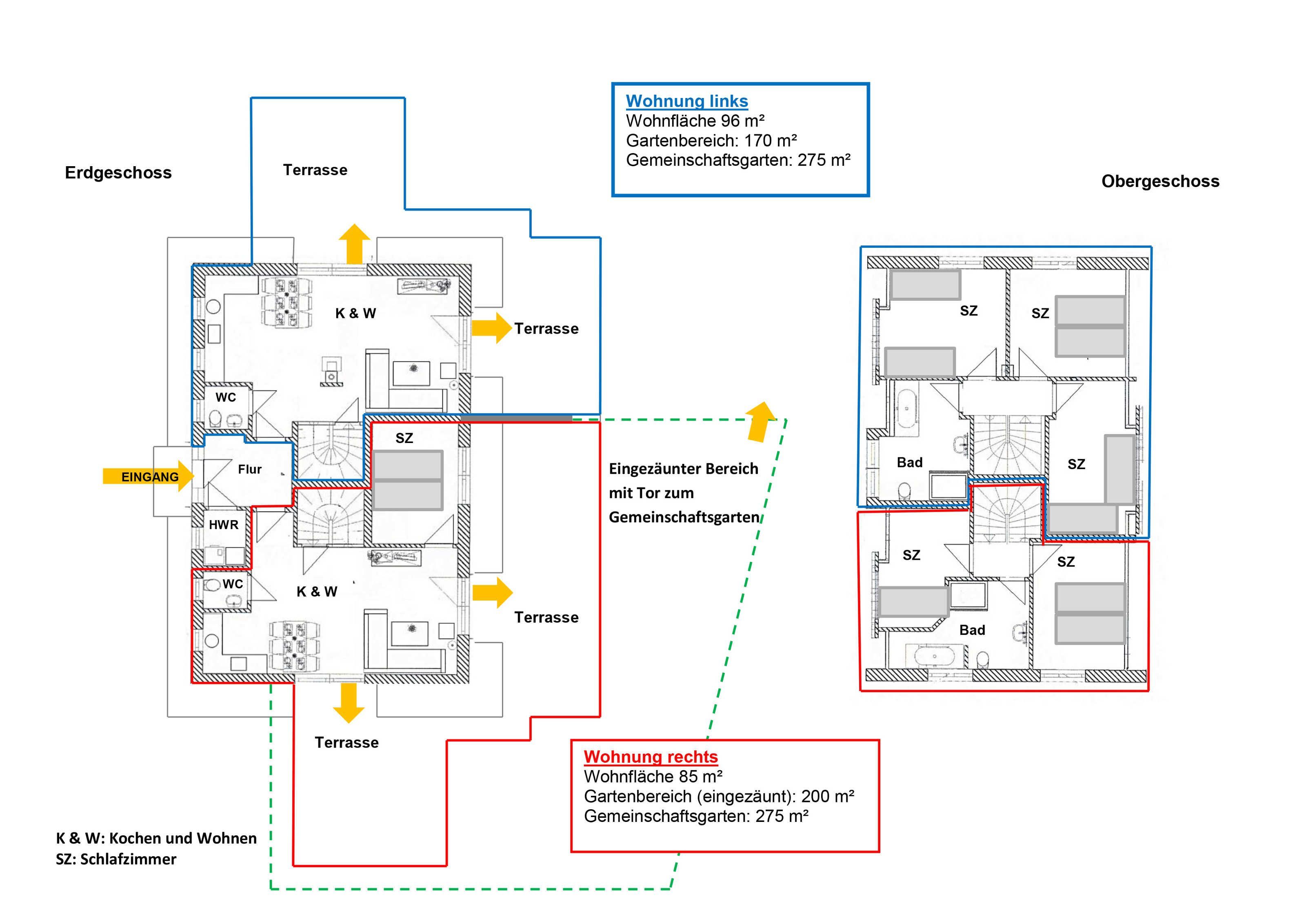
Reetdach-Ferienhaus im Ostseebad Rerik mit 2 Doppelhaushälften.
Doppelhaushälfte links (96m²) für 6 Personen + 1 Baby. 3 Schlafräume, Dusche; Badewanne, Gäste-WC

Im Erdgeschoss EG:



• großzügiger Wohn-/ Essbereich mit Kamin, Esstisch

• integrierte Küche mit Backofen, 4-Platten-Herd, Mikrowelle, Geschirrspüler, Kühl-/ Gefrierkombination, Kaffeemaschine

• Gäste-WC

• Gemeinschaftlicher HWR mit Waschmaschine und Trockner


Im Obergeschoss OG:



• insgesamt 3 Schlafzimmer:

• Schlafraum 1 mit Doppelbett (1,80 x 2m) & TV 

• Schlafraum 2 zwei Einzelbetten (je 0,90x2 m)

• Schlafraum 3 zwei Einzelbetten (je 0,90x2 m)

• Geräumiges Bad mit Dusche/ WC sowie Badewanne

• 1 Babybett ist stellbar und vorhanden


Am Haus


• Eigener eingezäunter Garten (170m²) & Garten zur gemeinschaftlichen Nutzung (275 m²)

• Terrasse mit Gartenmöbeln (Sitz-/ Essgruppe und Lounge Garnitur)

• abschließbarer Gemeinschaftsschuppen für Fahrräder und Kinderwagen

• Ladestation für E-Bikes und E-Autos (Abrechnung nach Verbrauch)

• Elektro- Tisch- Grill 



Kinderfreundliche Ausstattung:
1 Babybett (Reisebett - ohne Kinderbettwäsche!), Hochstuhl, kindersichere Steckdosen, Treppenschutzgitter, großer, eingezäunter Garten für jede Wohnung vorhanden. Zusätzlich gibt es einen Gemeinschaftsgarten mit Strandkorb und Sandkasten), in dem keine Haustiere zulässig sind. 



Ostseeurlaub mit Hund:  
Im Ferienhaus sind Haustiere willkommen. Je Haus eingezäunter Garten. Ein zusätzlicher Gemeinschaftsgarten für Kinder ist eingezäunt und bleibt bitte tierfrei! Gebühr je Haustier und Tag 10 EUR. Ihr Hund darf nicht unbeaufsichtigt im Ferienhaus bleiben.  

Ausstattung Ferienhaus:
Waschmaschine, Trockner, WLAN, Parkplatz. E-Bike-Ladestation. Ladestation für E-Autos (Wallbox)

Grillen, Silvester und Feuer:
Da es sich in dem Wohngebiet um Häuser mit Reet handelt, ist das Abfeuern von Feuerwerk und Silvesterraketen verboten. Das Rauchen ist im Ferienhaus nicht gestattet.

Extra- Service auf Wunsch (Gebühr):
Wäschepaket (Bettwäsche = bei Anreise NICHT bezogen, Handtücher & Geschirrtuch). Kinderbettwäsche bitte selbst mitbringen. Ladestation für E-Bikes und E-Autos (Abrechnung nach Verbrauch)

Gesamte Beschreibungweniger anzeigen

Ausstattung

Leistungen
  • Brötchenservice
  • Frühstücksservice
  • Hochstuhl
Allgemein
  • Heizung
  • Barrierefrei
  • Fahrradabstellraum
  • E-Auto Ladestation
  • E-Bike Ladestation
  • Hund auf Anfrage
  • Kamin/Ofen
  • Terrasse
  • Waschmaschine
  • Trockner
  • Grillmöglichkeit
  • Nichtraucher
Multimedia
  • TV-Flachbild
  • Internet
  • Smart-TV
  • TV
  • Internet - LAN
  • Kabel/Sat
Küche
  • Gefriermöglichkeit
  • Backofen
  • Kaffeemaschine (Filter)
  • Kühlschrank
  • Mikrowelle
  • Toaster
  • Spülmaschine
  • Küche (offen)
Bad
  • Dusche/WC
  • Handtücher
  • Badewanne/WC
  • Gäste-WC
  • Badewanne
  • Dusche
Betten
  • Reise-/Kinderbett
  • Einzelbett
  • Doppelbett
  • getrennt stehende Betten
  • Bettwäsche

Verfügbarkeit prüfen

Wählen Sie Ihren Reisezeitraum aus, um den Preis zu sehen!
>vorheriges Objekt
Jahresansicht
Mai 2026
Mo Di Mi Do Fr Sa So
        1 2 3
4 5 6 7 8 9 10
11 12 13 14 15 16 17
18 19 20 21 22 23 24
25 26 27 28 29 30 31
             
Jun 2026
Mo Di Mi Do Fr Sa So
1 2 3 4 5 6 7
8 9 10 11 12 13 14
15 16 17 18 19 20 21
22 23 24 25 26 27 28
29 30          
             
Jul 2026
Mo Di Mi Do Fr Sa So
    1 2 3 4 5
6 7 8 9 10 11 12
13 14 15 16 17 18 19
20 21 22 23 24 25 26
27 28 29 30 31    
             

Lage • L7 Ferienhaus Strandhafer Ostseebad Rerik - XL - 4-Raum-Ferienhaus mit Kamin (max. 6 Personen) - links

XL- Reetdachhaus, Urlaub mit Hund, Ferien für 11 Personen, Wallbox, Rerik, Mecklenburger Bucht
In der Umgebung
  • zum Strand 1,5 km
  • zum Zentrum 1,5 km
  • zum Bahnhof 12,0 km
  • zum Bäcker 1,5 km
  • zum Supermarkt 1,5 km
  • zum Restaurant 1,5 km
  • zur Badestelle/Gewässer 1,5 km
  • zur Tourist-Information 1,5 km
  • zur Autobahn 25,0 km
  • zum Wanderweg 500 m
  • zur Bushaltestelle 1,5 km
  • zum Krankenhaus/Klinik 22,0 km
  • zum Geldautomaten/Bank 1,5 km
  • zum Radweg 500 m
  • zum Arzt 1,5 km
Reisende, die sich die Unterkunft L7 Ferienhaus Strandhafer Ostseebad Rerik - XL - 4-Raum-Ferienhaus mit Kamin (max. 6 Personen) - links angesehen haben, haben diese Unterkünfte gebucht
Merken
110 m²
Ferienpark
7 Pers.
3 Schlafz.
Rerik
4,0 Sehr Gut 6 Bewertungen
Merken
270 m²
Ferienpark
18 Pers.
7 Schlafz.
Rerik
4,3 Sehr Gut 16 Bewertungen
Merken
120 m²
Ferienpark
8 Pers.
3 Schlafz.
Rerik
4,3 Sehr Gut 6 Bewertungen
Merken
150 m²
Ferienpark
11 Pers.
5 Schlafz.
Rerik
3,8 Sehr Gut 3 Bewertungen