Ferienwohnung

F: Seepark Sellin-Haus Göhren Whg 523 Deichkieker mit Balkon - Haus Göhren Whg 523 Deichkieker mit Balkon

Mönchguter Strasse 05, Sellin, Rügen - Tolle Lage - Karte anzeigen
4,6
Ausgezeichnet
basierend auf 12 Bewertungen
Personen 3
Schlafzimmer 1
Badezimmer 1
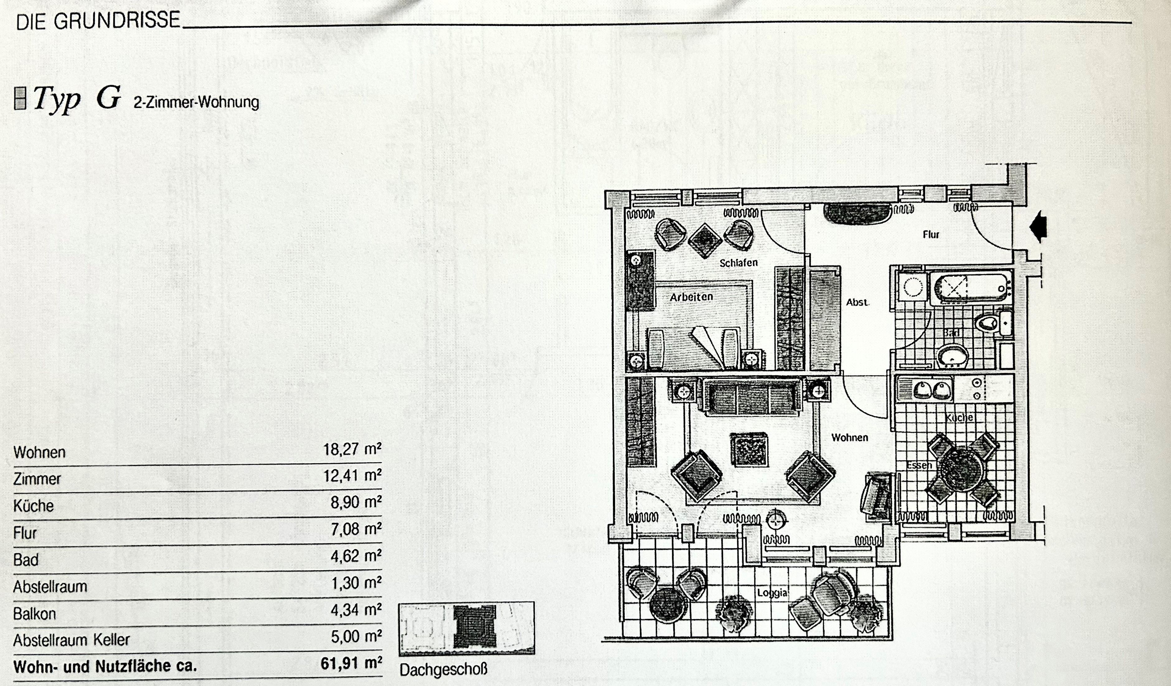
Wohnfläche 57 m²
Ferienwohnung
Sellin
Objekt-Nr.:
Merken
Teilen

  • Internet
  • TV
  • Balkon
  • Mikrowelle
  • Spülmaschine
  • Gefriermöglichkeit
  • Haustiere nicht erlaubt
  • Nichtraucher

Beschreibung

Me (e) hr als nur Urlaub ankommen und wohlfühlen.
Die Wohnung Deichkieker befindet sich im Dachgeschoss. Der gepflegte Seepark Sellin mit seinen weißen Häusern wurde 1997 in klassischer Bäderarchitektur erbaut. Die in der Anlage beginnende Seeparkpromenade führt Sie bequem zum Ortskern über die anschließende Wilhelmstraße direkt zum Strand und der berühmten Seebrücke. Der Südstrand ist ca. 750 m entfernt. Nutzen Sie die Bäderbahn als Shuttle zu den beiden Stränden. Der Seepark bietet zu jeder Jahreszeit einen abwechslungsreichen und erholsamen Aufenthalt. Nebenan befindet sich das ganzjährig geöffnete Erlebnisbad Ahoi! mit Wasserattraktionen sowie Sauna- und Wellnessangeboten. Restaurants, Einkaufsmöglichkeiten und die Haltestellen der Schmalspurbahn Rasender Roland, der Linienbusse und der Bäderbahn (mit Kurkarte kostenlos) befinden sich in der Anlage. Spielen sie gerne Mini-Golf? Kein Problem, sie können die Schläger und Bälle im Seepark mieten. Zieht es sie eher an das Wasser? Von der Selliner Seebrücke können Sie z.B. direkt nach Sassnitz, Binz oder Göhren zum Kaffeeplausch und Flanieren übersetzen oder Sie entscheiden sich für eine Rundfahrt und kreuzen Richtung Kap Arkona zur legendären Kreideküste mit seinem spektakulären Königsstuhl. Noch schneller am Wasser sind Sie am Selliner See. Die Abendsonne taucht die Zickerschen Berge und den Selliner See in eine wunderschöne Lichtstimmung. Vielleicht reicht das schon, um die Seele baumeln zu lassen, wenn nicht wären die leckeren Fischbrötchen beim Räucherschiff Roland -direkt am See- ein Geheimtipp.

Die lichtdurchflutete Penthouse Ferienwohnung „Deichkieker“ (Nr. 523) ist eine Nichtraucherwohnung. Sie befindet sich in der 3. Etage (Dachgeschoss) des Hauses. Sie ist mit ca. 57 m² komfortabel und geräumig und bietet Platz für max. 2 Erwachsene + 1 Kleinkind bis 3 Jahre im Kinderreisebett. In der Wohnung finden Sie einen kombinierten Wohn-/Koch- und Essbereich. Die integrierte, moderne Küchenzeile lässt mit einer eingebauten Mikrowelle, einem Backofen, einem 4 Zonen-Cerankochfeld, einem Geschirrspüler, einem Kühlschrank mit Eisfach,einer Kaffeemaschine, einer Nespresso Kapselmaschine, einem Toaster, einem Wasserkocher und anderen praktischen Helfern keine kulinarischen Wünsche offen. Der gemütliche Essplatz rundet diesen Bereich ab. Der angrenzende Wohnbereich ist mit Massivholzmöbeln, einer Stehlampe, einem Couchtisch, einer Couch und einem gemütlichen Relax-Sessel mit Hocker eingerichtet. Abgerundet wird der Wohnbereich mit einem Teufel-Radio sowie einem Smart-TV. Erfreuen Sie sich an einer kleinen Bücherauswahl und einigen Gesellschaftsspielen. Auch auf einen Internetanschluss (W-LAN) müssen Sie im Urlaub nicht verzichten. Dieser ist inklusive. Der bestuhlte Balkon, Richtung Ost/Südost, verfügt zusätzlich über einen Strandkorb mit Blick auf den Selliner See. Begehbar ist der Balkon vom Wohnbereich aus. Das Schlafzimmer ist mit einem Doppelbett (1,80 m x 2,00 m), Nachtischablagen mit Beleuchtung und einer Kommode ausgestattet. Für einen ruhigen Schlaf sorgen die wärmereduzierten und abdunkelnde Vorhänge. Ein geräumiger Kleiderschrank befindet sich im Flur, direkt vor dem Schlafzimmer. Das innenliegende Bad ist mit einer geräumigen und ebenen Dusche, WC, Waschtisch und Fön ausgestattet. In der Wohnung befinden sich ein Staubsauger, weitere Reinigungsutensilien, ein Bügeleisen mit Bügelbrett sowie ein Wäscheständer für den Balkon. Ein eigener PKW-Stellplatz (Nr. 117) befindet sich in der Tiefgarage (Einfahrtshöhe 1,80 m) des Hauses. Haustiere sind nicht erlaubt. Die Erstausstattung eines Wäschepaketes (komplette Bettwäsche, 1 Duschhandtuch, 2 kleine Handtücher) können Sie bis 14 Tage vor Anreise gegen einen Aufpreis dazu buchen oder durch eigene ergänzen. Ab 2 gebuchten Paketen erhalten Sie einmalig 1 Geschirrhandtuch und 1 Duschvorleger hinzu.

Gesamte Beschreibungweniger anzeigen

Ausstattung

Allgemein
  • Rauchmelder
  • Heizung
  • Haustiere nicht erlaubt
  • Nichtraucher
  • Balkon
Multimedia
  • Kabel/Sat
  • TV
  • Smart-TV
  • Internet
  • TV-Flachbild
Küche
  • Gefriermöglichkeit
  • Küche (offen)
  • Spülmaschine
  • Toaster
  • Mikrowelle
  • Kühlschrank
  • Kaffeemaschine (Filter)
  • Backofen
Bad
  • Haartrockner
  • Dusche/WC
Betten
  • Doppelbett

Verfügbarkeit prüfen

Wählen Sie Ihren Reisezeitraum aus, um den Preis zu sehen!
>vorheriges Objekt
Jahresansicht
Mai 2026
Mo Di Mi Do Fr Sa So
        1 2 3
4 5 6 7 8 9 10
11 12 13 14 15 16 17
18 19 20 21 22 23 24
25 26 27 28 29 30 31
             
Jun 2026
Mo Di Mi Do Fr Sa So
1 2 3 4 5 6 7
8 9 10 11 12 13 14
15 16 17 18 19 20 21
22 23 24 25 26 27 28
29 30          
             
Jul 2026
Mo Di Mi Do Fr Sa So
    1 2 3 4 5
6 7 8 9 10 11 12
13 14 15 16 17 18 19
20 21 22 23 24 25 26
27 28 29 30 31    
             

Lage • F: Seepark Sellin-Haus Göhren Whg 523 Deichkieker mit Balkon - Haus Göhren Whg 523 Deichkieker mit Balkon

Mönchguter Strasse 05, Sellin, Rügen
In der Umgebung
  • zum Strand 800 m
  • zum Zentrum 500 m
  • zum Bäcker 100 m
  • zum Supermarkt 100 m
  • zur Badestelle/Gewässer 800 m
  • zum (Kur-)Park/Wald 500 m
  • zum Wanderweg 500 m
  • zur Bushaltestelle 200 m
  • zum Radweg 100 m
  • zum Schwimm-/Spaßbad 100 m
Reisende, die sich die Unterkunft F: Seepark Sellin-Haus Göhren Whg 523 Deichkieker mit Balkon - Haus Göhren Whg 523 Deichkieker mit Balkon angesehen haben, haben diese Unterkünfte gebucht
Merken
44 m²
Ferienwohnung
4 Pers.
1 Schlafz.
Binz
Merken
125 m²
Ferienhaus
8 Pers.
3 Schlafz.
Gager
Merken
57 m²
Ferienwohnung
3 Pers.
1 Schlafz.
Sellin
4,6 Ausgezeichnet 12 Bewertungen