Vorheriges Objekt Zurück zur Liste Nächstes Objekt
Ferienwohnung

Gästehaus Achtern Diek - Wohnung 10

Zum Böhler Strand 7, St. Peter-Ording, Nordfriesland - Tolle Lage - Karte anzeigen
0,0
basierend auf 0 Bewertungen
Personen 4
Schlafzimmer 2
Badezimmer 1
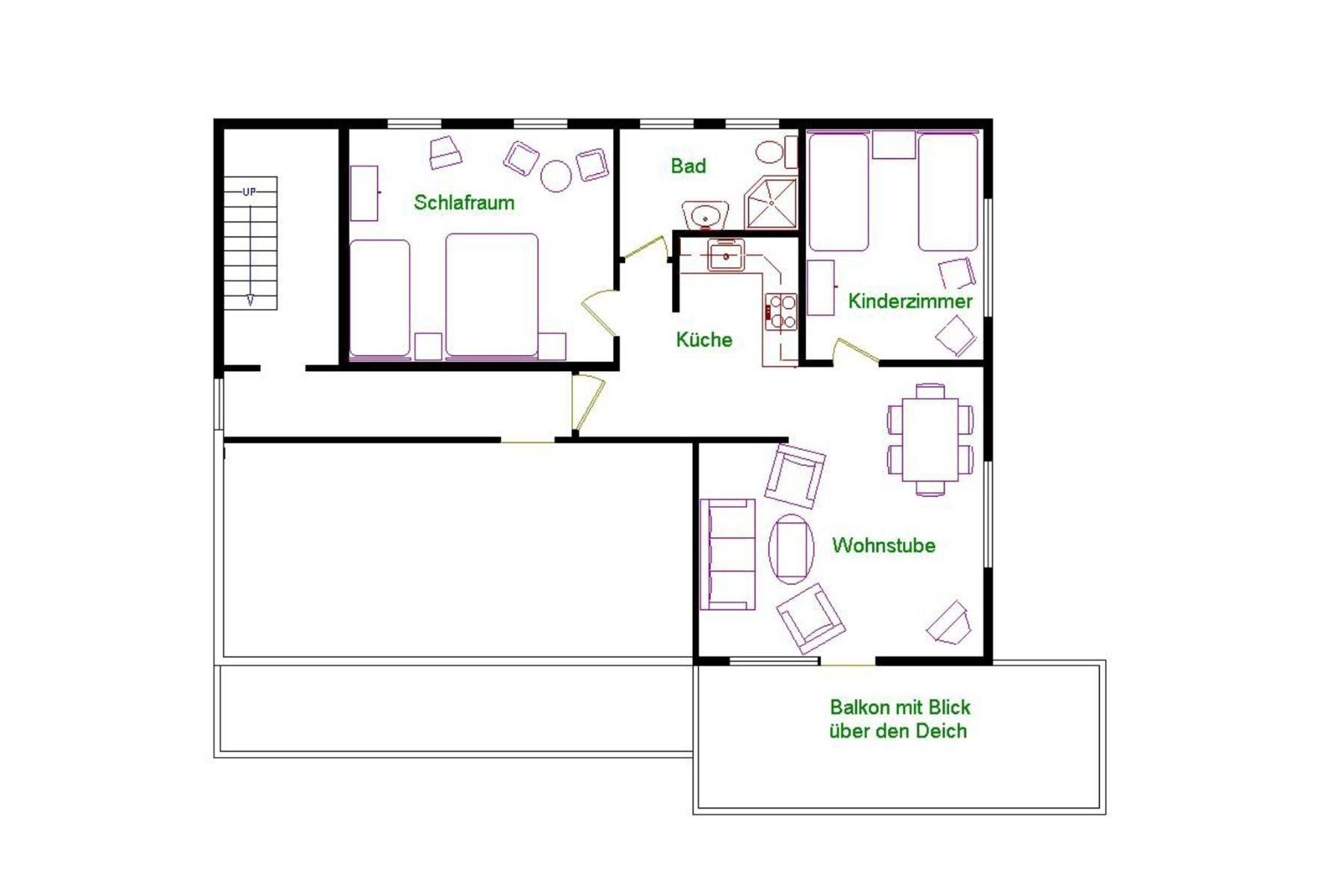
Wohnfläche 65 m²
Ferienwohnung
St. Peter-Ording
Objekt-Nr.:
Merken
Teilen

  • Internet
  • TV
  • Meerblick
  • Balkon
  • Spülmaschine
  • Gefriermöglichkeit
  • Dusche
  • Waschmaschine
  • Trockner
  • Haustiere nicht erlaubt
  • Nichtraucher

Beschreibung

Kurzbeschreibung:
Urlaubsdomizil St. Peter Ording! Genießen Sie das Nordklima und erholen Sie sich! Ferienwohnung mit Balkon und fantastischem Ausblick!

Lagebeschreibung:
Die Ferienwohnung auf St. Peter Ording befindet sich in ruhiger und ansprechender Umgebung. Sie wohnen in schöner Lage und fernab von jeglichem Autoverkehr und erreichen den Seedeich, den Böhler Leuchtturm und die Dünen in wenigen Gehminuten. Verbringen Sie die schönste Jahreszeit auf unserer reizenden Nordseeküste St. Peter Ording. Erleben Sie das Nordklima hautnah und atmen Sie die Nordsee Luft ein.

Spazieren Sie an der schönen Promenade entlang und genießen Sie den Blick auf die Nordsee. Die Restaurants sind im maritimen Still gehalten und versprechen das Beste aus der nordischen Küche. Erholen Sie sich auf unserem Urlaubsdomizil und lassen Sie die Seele baumeln. Schwingen Sie sich auf Ihr Surfbrett und erleben Sie feinstes Wellenreiten. Für Anfänger oder Profis ist immer die richtige Welle dabei.

Ausstattungen:
Es erwartet Sie eine gemütliche Nichtraucher Ferienwohnung mit Platz für bis zu 4 Personen. Die Ferienwohnung ist ideal geschnitten mit großzügiger Wohnküche. Im Wohnbereich erwartet Sie ein bequemes Sofa und zwei Sessel. Sie gelangen vom Wohnbereich direkt auf den Balkon, die großen Fenster verleihen dem Raum viel Licht und ein wohliges zuhause Gefühl. Des Weiteren gibt es einen Flatscreen und eine Essecke für bis zu vier Personen. Unsere moderne Küchenzeile ist mit allem, was Sie für ein zauberhaftes Gericht benötigen ausgestattet.

Die Küche ist mit Ceranfeld, Kühlschrank, Spülmaschine, Abzugshaube eingerichtet und bietet genügend Arbeitsfläche. Ein Schlafzimmer ist mit Doppelbett und das zweite ist mit zwei Einzelbetten, Kleiderschrank und Nachttischen mit Lampe ausgestattet. Das Badezimmer ist mit Dusche und WC versehen und lässt viel Platz für Ihre Utensilien.
Außenbereich:
Ein kostenloser Parkplatz steht für Sie zur Verfügung.

Besonderes:
Bettwäsche und Handtücher sind kostenpflichtig. In der kompletten Ferienwohnung ist W-LAN vorhanden.

Allgemeine Informationen:
Anreise ab 16:00 Uhr
Abreise bis 10:00 Uhr

Zusätzliche Preisinfos:
Bitte beachten Sie, dass in St. Peter-Ording eine Kurtaxe zu leisten ist. Diese bei der Kurverwaltung zu entrichten.

Nach der Buchung stehen Ihnen zusätzlich die Zahlungsmöglichkeiten Banküberweisung, Kreditkarte, Sofortüberweisung und Google/Apple Pay zur Verfügung. Weitere Informationen entnehmen Sie bitte Ihrer Buchungsbestätigung.

Kurzbeschreibung:
Urlaubsdomizil St. Peter Ording! Genießen Sie das Nordklima und erholen Sie sich! Ferienwohnung mit Balkon und fantastischem Ausblick!

Lagebeschreibung:
Die Ferienwohnung auf St. Peter Ording befindet sich in ruhiger und ansprechender Umgebung. Sie wohnen in schöner Lage und fernab von jeglichem Autoverkehr und erreichen den Seedeich, den Böhler Leuchtturm und die Dünen in wenigen Gehminuten. Verbringen Sie die schönste Jahreszeit auf unserer reizenden Nordseeküste St. Peter Ording. Erleben Sie das Nordklima hautnah und atmen Sie die Nordsee Luft ein.

Spazieren Sie an der schönen Promenade entlang und genießen Sie den Blick auf die Nordsee. Die Restaurants sind im maritimen Still gehalten und versprechen das Beste aus der nordischen Küche. Erholen Sie sich auf unserem Urlaubsdomizil und lassen Sie die Seele baumeln. Schwingen Sie sich auf Ihr Surfbrett und erleben Sie feinstes Wellenreiten. Für Anfänger oder Profis ist immer die richtige Welle dabei.

Ausstattungen:
Es erwartet Sie eine gemütliche Nichtraucher Ferienwohnung mit Platz für bis zu 4 Personen. Die Ferienwohnung ist ideal geschnitten mit großzügiger Wohnküche. Im Wohnbereich erwartet Sie ein bequemes Sofa und zwei Sessel. Sie gelangen vom Wohnbereich direkt auf den Balkon, die großen Fenster verleihen dem Raum viel Licht und ein wohliges zuhause Gefühl. Des Weiteren gibt es einen Flatscreen und eine Essecke für bis zu vier Personen. Unsere moderne Küchenzeile ist mit allem, was Sie für ein zauberhaftes Gericht benötigen ausgestattet.

Die Küche ist mit Ceranfeld, Kühlschrank, Spülmaschine, Abzugshaube eingerichtet und bietet genügend Arbeitsfläche. Ein Schlafzimmer ist mit Doppelbett und das zweite ist mit zwei Einzelbetten, Kleiderschrank und Nachttischen mit Lampe ausgestattet. Das Badezimmer ist mit Dusche und WC versehen und lässt viel Platz für Ihre Utensilien.

Gesamte Beschreibungweniger anzeigen

Ausstattung

Outdoor & Ausblick
  • Meerblick
Leistungen
  • Hochstuhl
Allgemein
  • Balkon
  • Waschmaschine
  • Haustiere nicht erlaubt
  • Nichtraucher
  • Trockner
Multimedia
  • TV
  • Radio
  • Internet
Küche
  • Backofen
  • separate Küche
  • Spülmaschine
  • Toaster
  • Kühlschrank
  • Kaffeemaschine (Filter)
  • Gefriermöglichkeit
Bad
  • Haartrockner
  • Dusche
  • Badewanne/WC
Betten
  • Einzelbett
  • Doppelbett

Verfügbarkeit prüfen

Wählen Sie Ihren Reisezeitraum aus, um den Preis zu sehen!
>vorheriges Objekt
Jahresansicht
Nov 2025
Mo Di Mi Do Fr Sa So
          1 2
3 4 5 6 7 8 9
10 11 12 13 14 15 16
17 18 19 20 21 22 23
24 25 26 27 28 29 30
             
Dez 2025
Mo Di Mi Do Fr Sa So
1 2 3 4 5 6 7
8 9 10 11 12 13 14
15 16 17 18 19 20 21
22 23 24 25 26 27 28
29 30 31        
             
Jan 2026
Mo Di Mi Do Fr Sa So
      1 2 3 4
5 6 7 8 9 10 11
12 13 14 15 16 17 18
19 20 21 22 23 24 25
26 27 28 29 30 31  
             

Lage • Gästehaus Achtern Diek - Wohnung 10

Zum Böhler Strand 7, St. Peter-Ording, Nordfriesland
Reisende, die sich die Unterkunft Gästehaus Achtern Diek - Wohnung 10 angesehen haben, haben diese Unterkünfte gebucht
Merken
44 m²
Ferienwohnung
4 Pers.
1 Schlafz.
St. Peter-Ording
4,4 Sehr Gut 2 Bewertungen
Merken
45 m²
Ferienwohnung
4 Pers.
1 Schlafz.
St. Peter-Ording
4,3 Sehr Gut 20 Bewertungen
Merken
47 m²
Ferienwohnung
4 Pers.
1 Schlafz.
St. Peter-Ording
4,3 Sehr Gut 15 Bewertungen
Merken
38 m²
Ferienwohnung
4 Pers.
1 Schlafz.
St. Peter-Ording