Vorheriges Objekt Zurück zur Liste Nächstes Objekt
Ferienhaus

Ferienhaus Bi Frie und Bi Rosa

Böhler Landstraße 182, St. Peter-Ording, Nordfriesland - Tolle Lage - Karte anzeigen
4,8
Ausgezeichnet
basierend auf 1 Bewertung
Personen 8
Schlafzimmer 4
Badezimmer 2
Wohnfläche 130 m²
Ferienhaus
St. Peter-Ording
Objekt-Nr.:
Merken
Teilen

  • Internet
  • TV
  • Terrasse
  • Mikrowelle
  • Spülmaschine
  • Gefriermöglichkeit
  • Dusche
  • Badewanne
  • Waschmaschine
  • Trockner
  • Nichtraucher

Beschreibung

Bei unserem zweiten Ferienhaus handelt es sich um ein Familienerbstück:
Abreißen kam daher nicht in Frage.
Innen ist das Einzelhaus samt dem Anbau aber komplett neu.
Unser Ferienhaus liegt im Ortsteil Böhl in fußläufiger Entfernung zum Deich.
Hinter dem Deich liegen die Salzwiesen und dann natürlich der Böhler Strand.
Durch den festen Sand, kann der Strandparkplatz in der Saison (15.03-31.10)
problemlos mit dem Auto befahren werden.
Mit dem Fahrrad oder zu Fuß kann bequem über einen Holzsteg bis fast zum Wasser gefahren oder gelaufen werden.
Am Strand findet sich die komplette Infrastruktur mit Spielplatz, Strandkorbvermietung und in den berühmten Pfahlbauten ein Restaurant, Sanitäranlagen und Badeaufsicht.
Max. 2 Hunde sind gegen eine Gebühr willkommen.

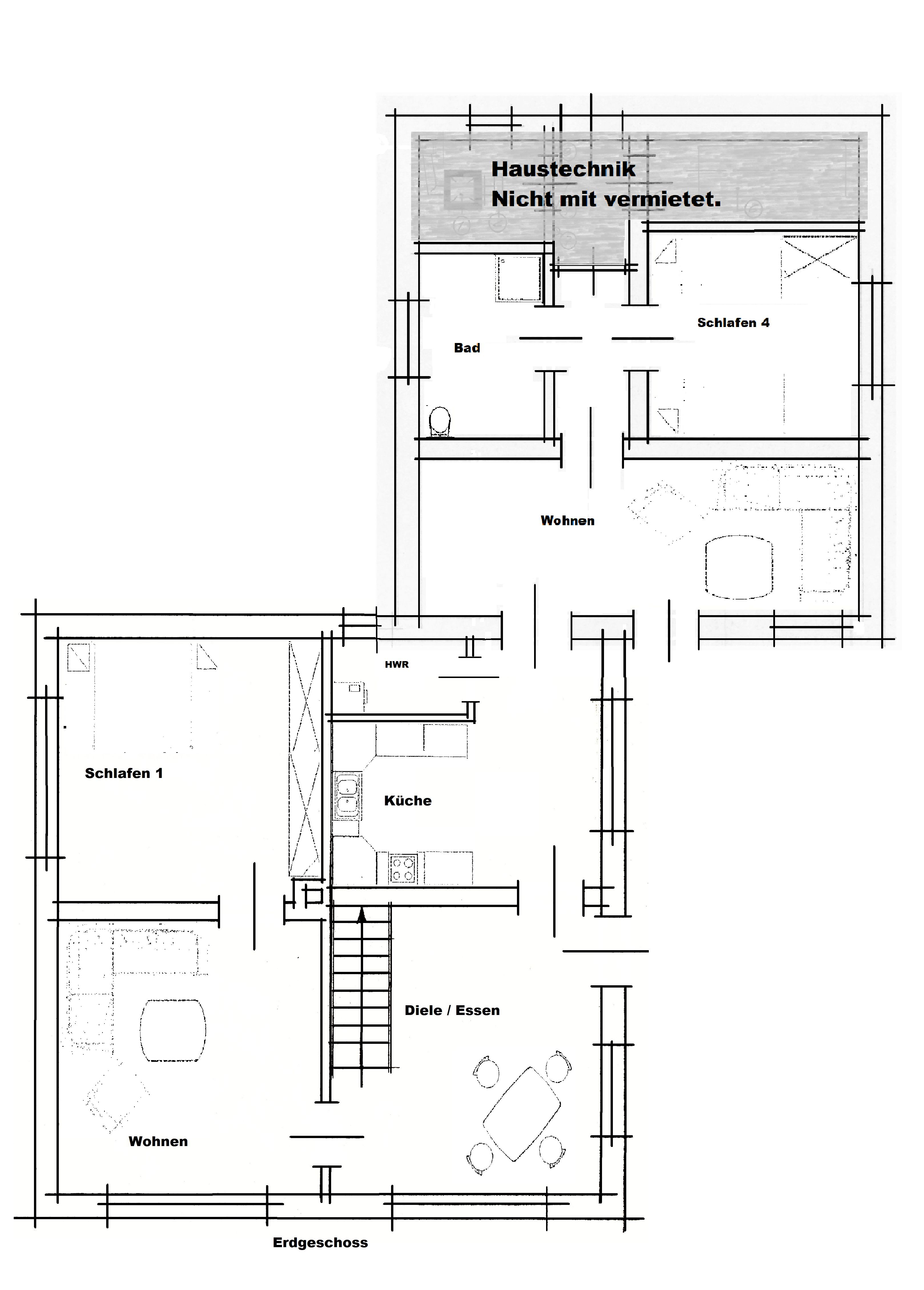
Sie betreten das Haus und gelangen in die großzügige Essdiele von der die offene Küche abgeht.
Die Küche ist komplett mit Herd (Cerankochfeld, 4 Flammen), Backofen, Mikrowelle, Geschirrspüler und Kühlschrank ausgestattet. Selbstverständlich sind Kaffeemaschine, Kaffeekapselmaschine (Nespresso), Wasserkocher und Toaster vorhanden.
Aus der Diele gelangen Sie in das Wohnzimmer und von dort in das Schlafzimmer im Erdgeschoss.
In der Diele befindet sich die Treppe in das Obergeschoss. Hier finden sich zwei weitere Schlafräume und ein Duschbad.

Den Anbau betreten Sie entweder über den Durchgang vom Essplatz in der Küche aus oder über den separaten Außeneingang. Im Anbau finden Sie einen weiteren Wohnbereich (mit riesigem Fernseher und großer Eckcouch) sowie vom Flur abgehend einen zusätzlichen Schlafraum und ein eigenes großzügiges Duschbad. Alle vier Schlafräume bieten entweder ein Doppelbett (EG und einer im OG Haus) oder je zwei Einzelbetten und Schränke.
Ideal für beispielsweise den Urlaub für zwei Familien oder Mehrgenerationenurlaube!
Selbstverständlich sind Ihre Betten bei Anreise bezogen. Genauso liegen je ein großes, kleines und ein Gästehandtuch pro Person und Woche kostenfrei für Sie bereit.
Auf Wunsch stellen wir Ihnen Kinderbett und Hochstuhl bereit. Wenn Sie mit Hund anreisen, komplettieren wir den Hauswirtschaftsraum mit Fressnäpfen und Hundekorb, sofern Sie dies möchten.
Im Mietobjekt werden nur max. zwei Hunde nach vorheriger Absprache gegen Entgelt aufgenommen.
Jeder Tierhalter verpflichtet sich, Exkremente des Tieres unverzüglich und vollständig vom Grundstück zu entfernen.
Lassen Sie Ihr Tier bitte nicht auf dem Sofa oder im Bett schlafen. Im Hauswirtschaftsraum stehen Hundekorb und Fressnäpfe bereit.
Schließen Sie Ihr Tier nicht allein im Haus ein.
Waschmaschine und Trockner stehen im Hauswirtschaftsraum zur kostenlosen Nutzung zur Verfügung.
Ein Abstellraum für Fahrräder ist auf unserem Grundstück vorhanden.

Zum Haus gehören zwei PKW-Stellplätze.

Maximal 2 Hunde sind gegen eine Gebühr willkommen.

Gesamte Beschreibungweniger anzeigen

Ausstattung

Leistungen
  • Hochstuhl
Allgemein
  • Sitzgruppe
  • Hund auf Anfrage
  • Terrasse
  • Nichtraucher
  • Trockner
  • Waschmaschine
Multimedia
  • Kabel/Sat
  • TV
  • Radio
  • Internet
  • TV-Flachbild
Küche
  • Backofen
  • separate Küche
  • Spülmaschine
  • Gefriermöglichkeit
  • Kaffeemaschine (Filter)
  • Kühlschrank
  • Mikrowelle
  • Toaster
  • Herd-Ceran, 4 Zonen
Bad
  • Seife oder Duschgel
  • Handtücher
  • Badewanne/WC
  • Dusche/WC
  • Gäste-WC
  • Badewanne
  • Dusche
  • Haartrockner
Betten
  • Reise-/Kinderbett
  • Bettwäsche

Verfügbarkeit prüfen

Wählen Sie Ihren Reisezeitraum aus, um den Preis zu sehen!
>vorheriges Objekt
Jahresansicht
Okt 2025
Mo Di Mi Do Fr Sa So
    1 2 3 4 5
6 7 8 9 10 11 12
13 14 15 16 17 18 19
20 21 22 23 24 25 26
27 28 29 30 31    
             
Nov 2025
Mo Di Mi Do Fr Sa So
          1 2
3 4 5 6 7 8 9
10 11 12 13 14 15 16
17 18 19 20 21 22 23
24 25 26 27 28 29 30
             
Dez 2025
Mo Di Mi Do Fr Sa So
1 2 3 4 5 6 7
8 9 10 11 12 13 14
15 16 17 18 19 20 21
22 23 24 25 26 27 28
29 30 31        
             

Lage • Ferienhaus Bi Frie und Bi Rosa

Böhler Landstraße 182, St. Peter-Ording, Nordfriesland
Reisende, die sich die Unterkunft Ferienhaus Bi Frie und Bi Rosa angesehen haben, haben diese Unterkünfte gebucht
Merken
83 m²
Ferienwohnung
8 Pers.
3 Schlafz.
St. Peter-Ording
4,3 Sehr Gut 20 Bewertungen
Merken
103 m²
Ferienwohnung
8 Pers.
2 Schlafz.
St. Peter-Ording
Merken
118 m²
Ferienhaus
8 Pers.
4 Schlafz.
St. Peter-Ording
4,4 Sehr Gut 2 Bewertungen
Merken
193 m²
Ferienwohnung
8 Pers.
4 Schlafz.
Tümlauer Koog