Ferienhaus

Ferienhaus Litj Stig

Litj Stig 3, Westerland, Sylt - Tolle Lage - Karte anzeigen
4,5
Ausgezeichnet
basierend auf 1 Bewertung
Personen 8
Schlafzimmer 4
Badezimmer 2
Wohnfläche 130 m²
Ferienhaus
Westerland
Objekt-Nr.:
Merken
Teilen

  • Internet
  • Terrasse
  • Spülmaschine
  • Dusche
  • Haustiere nicht erlaubt
  • Nichtraucher

Beschreibung

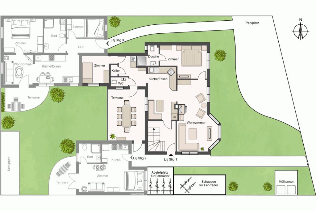
Großzügiges, ruhiges Nichtraucher-Haus, ca. 130 qm, für 7 Personen mit windgeschützter, überdachter Westterrasse mit Gartenanteil.
Erdgeschoss: Wohnzimmer mit hellem Natursteinboden und Erker, mit nach 2 Seiten offenem Kamin mit echten Delfter Fliesen, Ecksofa mit 2 Sesseln, Sat-Flachbild-TV, W-Lan und Telefonflat ins Deutsche Festnetz (Handynummern gesperrt).
Ein Schlafzimmer mit Doppelbett (1,60 x 2,00 m, zwei Einzelmatratzen, Bettdecken in Überlänge) mit Flachbild-TV und eigenem Duschbad mit WC.
Die geräumige, halboffene Küche mit Essecke hat einen Geschirrspüler, ein 4-Platten-Ceranfeld mit Backofen und einen Kühlschrank mit 3-Sterne Gefrierfach. Kaffeemaschine, Nespresso Kapselmaschine, Wasserkocher und Toaster gehören zur Grundausstattung. Von der Küche gelangt man in ein Zwischenzimmer mit Waschmaschine, Trockner und Austritt auf die geschützte Westterrasse. Zusätzlich befindet sich im Erdgeschoss ein Einzelschlafzimmer (0,80 x 2,00 m, Bettdecken in Überlänge) und ein Gäste-WC.
Obergeschoss: Im Obergeschoss befinden sich 2 Schlafzimmer jeweils mit Doppelbetten (1,80 x 2,00 m, Bettdecke in Überlänge), Flachbild-TV und Fußboden aus Echtholzparkett. Mittig zwischen den Doppel-Schlafzimmern liegt ein großzügiges Wannenbad mit separater Dusche, Waschtisch, Handtuchtrockner, Fön und WC.



Des Weiteren gehören ein PKW-Stellplatz für EIN PKW und ein gemeinschaftlicher Fahrradabstellplatz zu dieser Ferienwohnung. Weitere PKWs können an der Straße abgestellt werden.



Haustiere dürfen nicht mitgebracht werden

Gesamte Beschreibungweniger anzeigen

Ausstattung

Allgemein
  • Haustiere nicht erlaubt
  • Nichtraucher
  • Terrasse
  • Trocknerraum
Multimedia
  • TV-Flachbild
  • Internet
Küche
  • Kaffeemaschine (Filter)
  • Kühlschrank
  • Toaster
  • Spülmaschine
Bad
  • Haartrockner
  • Dusche
  • Gäste-WC
  • zusätzliches Bad

Verfügbarkeit prüfen

Wählen Sie Ihren Reisezeitraum aus, um den Preis zu sehen!
>vorheriges Objekt
Jahresansicht
Nov 2025
Mo Di Mi Do Fr Sa So
          1 2
3 4 5 6 7 8 9
10 11 12 13 14 15 16
17 18 19 20 21 22 23
24 25 26 27 28 29 30
             
Dez 2025
Mo Di Mi Do Fr Sa So
1 2 3 4 5 6 7
8 9 10 11 12 13 14
15 16 17 18 19 20 21
22 23 24 25 26 27 28
29 30 31        
             
Jan 2026
Mo Di Mi Do Fr Sa So
      1 2 3 4
5 6 7 8 9 10 11
12 13 14 15 16 17 18
19 20 21 22 23 24 25
26 27 28 29 30 31  
             

Lage • Ferienhaus Litj Stig

Litj Stig 3, Westerland, Sylt
In der Umgebung
  • zum Strand 500 m
  • zum Zentrum 750 m
  • zum Bahnhof 800 m
  • zum Bäcker 550 m
  • zum Supermarkt 650 m
  • zum Restaurant 750 m
  • zum Schwimm-/Spaßbad 1,0 km
Reisende, die sich die Unterkunft Ferienhaus Litj Stig angesehen haben, haben diese Unterkünfte gebucht
Merken
120 m²
Ferienhaus
8 Pers.
4 Schlafz.
Tinnum
5,0 Ausgezeichnet 1 Bewertung
Merken
160 m²
Ferienhaus
8 Pers.
4 Schlafz.
Wenningstedt-Braderup
Merken
130 m²
Ferienhaus
8 Pers.
4 Schlafz.
Westerland