Vorheriges Objekt Zurück zur Liste Nächstes Objekt
Ferienwohnung

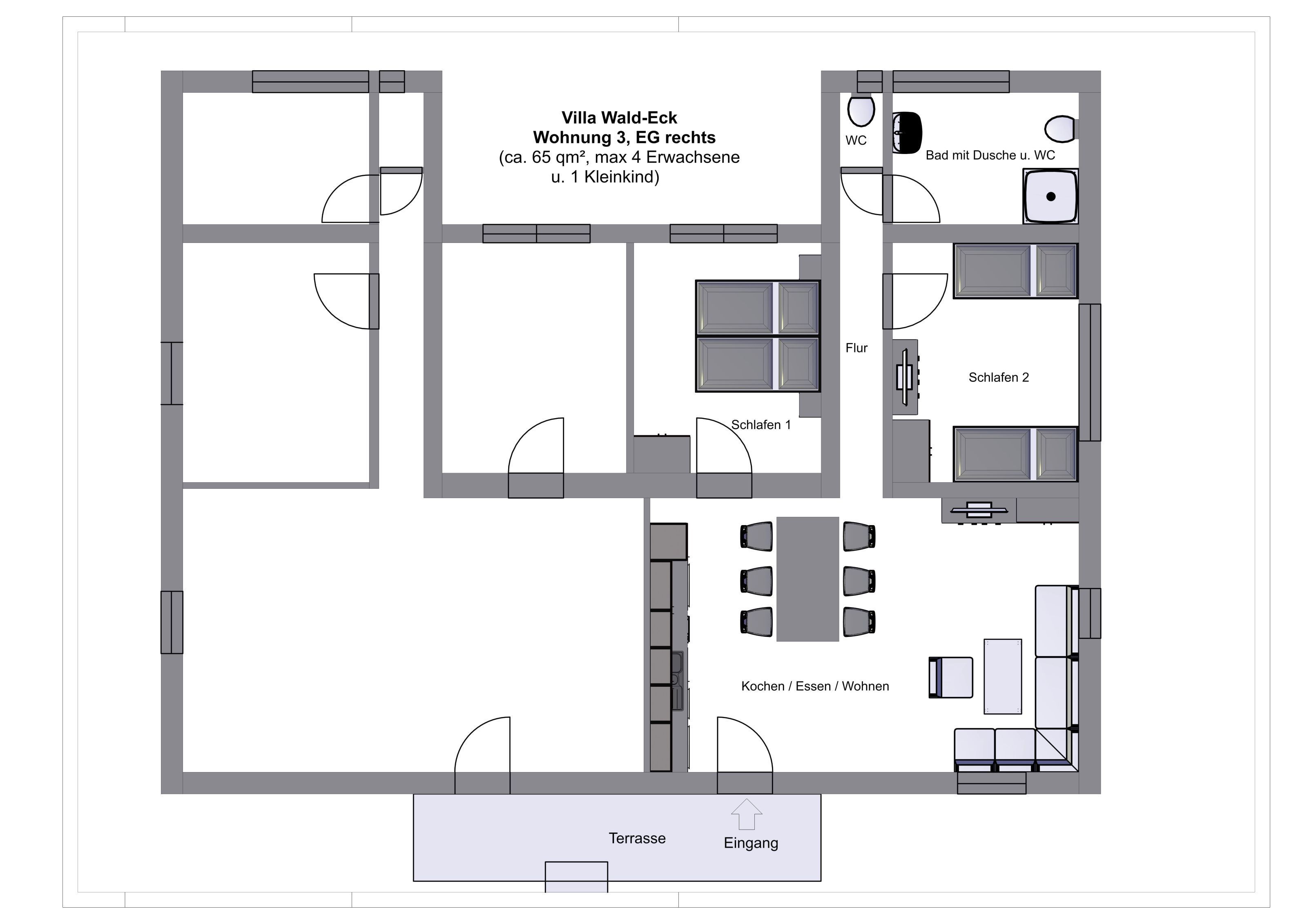
Ückeritz, Villa Wald-Eck - Erdgeschoss - Wohnung 3 (EG - rechts)

Wockninstraße 6, Ückeritz, Usedom - Tolle Lage - Karte anzeigen
2,9
Gut
basierend auf 2 Bewertungen
Personen 7
Schlafzimmer 2
Badezimmer 1
Wohnfläche 65 m²
Ferienwohnung
Ückeritz
Objekt-Nr.:
Merken
Teilen

  • Internet
  • TV
  • Balkon
  • Grillmöglichkeit
  • Mikrowelle
  • Spülmaschine
  • Gefriermöglichkeit
  • Waschmaschine
  • Trockner
  • Haustiere nicht erlaubt
  • Nichtraucher

Beschreibung

Unser Haus, mit 3 Ferienwohnungen befindet sich im schönen Ückeritz - direkt am Küstenwald (ca. 10 Minuten Fußweg bis zum Strand).
Ruhig, im Naturschutzgebiet Wockninsee, mitten im Wald gelegen, auf einem rund 5.000 qm großen Grundstück. Der Wockninsee befindet sich in der Nähe. Auf dem großen Freigelände finden Sie eine Feuerstelle vor, dort kann auch gegrillt werden (Grill steht zur Verfügung). Außerdem gibt es eine Reihe von überdachten Sitzmöglichkeiten.
Im Ort selbst finden Sie Einkaufsmöglichkeiten für Ihren täglichen Bedarf (Edeka, ALDI). Auch eine Tankstelle ist in unmittelbarer Nähe (ca. 8 km).
Für die gastronomische Vielfalt im Ort sorgen Cafés und Restaurants.

Im Erdgeschoss befinden sich 2 identische Wohnungen.
Beide 3-Raumwohungen sind jeweils 65 qm groß und für 4 Personen, zzgl. Aufbettung für 2 Personen auf dem Schlafsofa im Wohnbereich, sowie ein Kleinkind im Kinderreisebett geeignet.  Sie finden hier einen offenen Wohn-/Essbereich mit Küchezeile, Essplatz und gemütlicher Sitzecke. In der Küche finden sie alles was für einen entspannten Urlaub wichtig ist. Weiterhin gibt es ein Schlafzimmer mit Doppelbett und einen weiteren Schlafraum mit 2 Einzelbetten. Des Weiteren finden Sie ein Badezimmer mit Dusche und 1 Gäste-WC vor.  Sowohl in der Sitzecke, als auch in dem Schlafraum mit den 2 Einzelbetten steht ein TV- Gerät.
 
An kühleren Tagen sorgt die Heizung für Wärme in den Räumen und an heißen Tagen können Sie eine angenehme Temperatur durch unsere Klimaanlage regulieren (bedarfsabhänige Abrechnung).

Wäschepakete (Bettwäsche + Duschtuch + Handtuch) können gesondert gebucht werden oder Sie bringen diese mit.

Geschirrhandtuch, Grundausstattung Küche (einige Geschrirrspültabs, Lappen, Spülmittel, Kaffeefiltertüten) sind im Preis bereits enthalten.


Die 3-Raumwohung im EG ist 65 qm groß und für 4 Personen, zzgl. Aufbettung für 2 Personen auf dem Schlafsofa im Wohnbereich, sowie ein Kleinkind im Kinderreisebett geeignet.  Sie finden hier einen offenen Wohn-/Essbereich mit Küchenzeile, Essplatz und gemütlicher Sitzecke. In der Küche finden Sie alles was für einen entspannten Urlaub wichtig ist. Weiterhin gibt es ein Schlafzimmer mit Doppelbett und einen weiteren Schlafraum mit 2 Einzelbetten. Des Weiteren finden Sie ein Badezimmer mit Dusche und 1 Gäste-WC vor.  Sowohl in der Sitzecke, als auch in dem Schlafraum mit den 2 Einzelbetten steht ein TV- Gerät.
 
An kühleren Tagen sorgt die Heizung für Wärme in den Räumen und an heißen Tagen können Sie eine angenehme Temperatur durch unsere Klimaanlage regulieren (bedarfsabhänige Abrechnung).

Wäschepakete (Bettwäsche + Duschtuch + Handtuch) können gesondert gebucht werden oder Sie bringen diese mit.

Geschirrhandtuch, Grundausstattung Küche (einige Geschrirrspültabs, Lappen, Spülmittel, Kaffeefiltertüten) sind im Preis bereits enthalten.

Gesamte Beschreibungweniger anzeigen

Ausstattung

Leistungen
  • Hochstuhl
Allgemein
  • Schlafsofa
  • Heizung
  • Balkon
  • Grillmöglichkeit
  • Haustiere nicht erlaubt
  • Nichtraucher
  • Klimaanlage
  • Trockner
  • Waschmaschine
Multimedia
  • Kabel/Sat
  • TV
  • Internet
  • TV-Flachbild
Küche
  • Backofen
  • Küche (offen)
  • Spülmaschine
  • Toaster
  • Mikrowelle
  • Kühlschrank
  • Kaffeemaschine (Filter)
  • Gefriermöglichkeit
Bad
  • Gäste-WC
  • Dusche/WC
  • Badewanne/WC
Betten
  • Reise-/Kinderbett
  • Einzelbett
  • Doppelbett
  • getrennt stehende Betten

Verfügbarkeit prüfen

Wählen Sie Ihren Reisezeitraum aus, um den Preis zu sehen!
>vorheriges Objekt
Jahresansicht
Nov 2025
Mo Di Mi Do Fr Sa So
          1 2
3 4 5 6 7 8 9
10 11 12 13 14 15 16
17 18 19 20 21 22 23
24 25 26 27 28 29 30
             
Dez 2025
Mo Di Mi Do Fr Sa So
1 2 3 4 5 6 7
8 9 10 11 12 13 14
15 16 17 18 19 20 21
22 23 24 25 26 27 28
29 30 31        
             
Jan 2026
Mo Di Mi Do Fr Sa So
      1 2 3 4
5 6 7 8 9 10 11
12 13 14 15 16 17 18
19 20 21 22 23 24 25
26 27 28 29 30 31  
             

Lage • Ückeritz, Villa Wald-Eck - Erdgeschoss - Wohnung 3 (EG - rechts)

Wockninstraße 6, Ückeritz, Usedom
In der Umgebung
  • zum Strand 700 m
  • zum Bahnhof 600 m
  • zum Bäcker 600 m
  • zum Supermarkt 600 m
  • zur Badestelle/Gewässer 700 m
  • zum (Kur-)Park/Wald 100 m
  • zum Radweg 100 m
Reisende, die sich die Unterkunft Ückeritz, Villa Wald-Eck - Erdgeschoss - Wohnung 3 (EG - rechts) angesehen haben, haben diese Unterkünfte gebucht
Merken
180 m²
Ferienhaus
8 Pers.
4 Schlafz.
Pudagla
4,8 Ausgezeichnet 3 Bewertungen
Merken
100 m²
Ferienpark
8 Pers.
3 Schlafz.
Koserow
Merken
92 m²
Ferienwohnung
7 Pers.
2 Schlafz.
Koserow
4,6 Ausgezeichnet 3 Bewertungen
Merken
80 m²
Ferienwohnung
8 Pers.
2 Schlafz.
Ückeritz
5,0 Ausgezeichnet 1 Bewertung