Vorheriges Objekt Zurück zur Liste Nächstes Objekt
Ferienwohnung

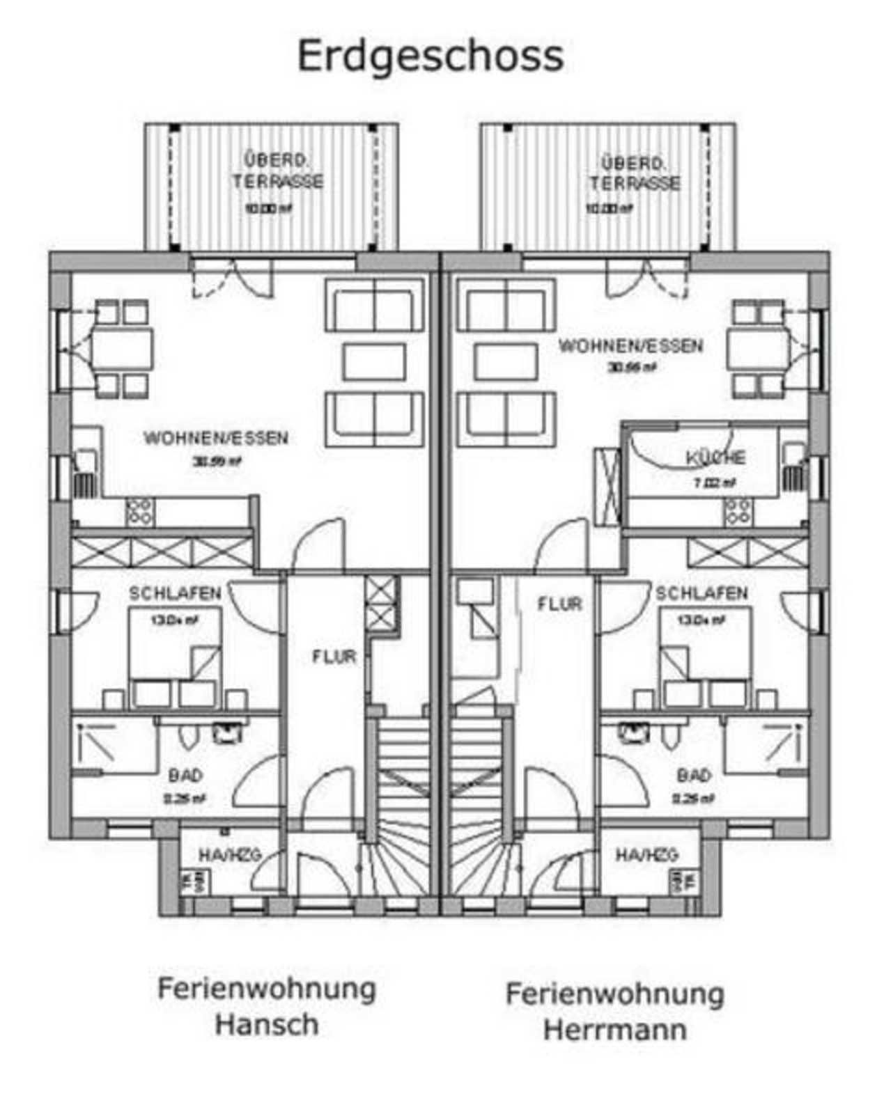
4-Sterne Ferienwohnungen-Hansch - Fewo 1, EG, 2 Zimmer, Loddin

Str. der Deutschen Einheit 13a , Achterwasserblick, Loddin, Usedom - Tolle Lage - Karte anzeigen
4,8
Ausgezeichnet
basierend auf 48 Bewertungen
Personen 4
Schlafzimmer 1
Badezimmer 1
Wohnfläche 70 m²
Ferienwohnung
Loddin
Objekt-Nr.:
Merken
Teilen

  • Internet
  • TV
  • Meerblick
  • Seeblick
  • Terrasse
  • Mikrowelle
  • Spülmaschine
  • Gefriermöglichkeit
  • Waschmaschine
  • Trockner
  • Nichtraucher

Beschreibung

Die Wohnungen befinden sich in einer neuen großzügig angelegten Reethaussiedlung 300 m vom Achterwasser entfernt in 17459 Loddin, Straße der Deutschen Einheit 13 a in der Inselmitte. Die Holzterrasse der Erdgeschosswohnung und der Balkon der Obergeschosswohnung sind zur Südseite ausgerichtet mit Blick auf das Achterwasser. Unweit befindet sich ein Bootshafen, ein Bootsverleih und 5 gastronomische Einrichtungen. Auch ein Reiterhof ist im Ortsteil Kölpinsee. Der Ostseestrand ist bequem per Rad oder Auto in 10 Minuten erreicht. Fahrräder konnen gemietet und zur Fewo geliefert werden.



• Die Wohnungen sind vom DTV (Deutscher Tourismusverband) mit 4-Sternen klassifiziert.

• Unsere Gäste können kostenfrei ins deutsche Festnetz telefonieren und kostenfrei einen DSL-Internetzugang über LAN nutzen.

• Wir bitten um Ihre Mithilfe beim Energiesparen (Heizung, Strom, Wasser) zum Klima- und Ressourcenschutz.


Vermietung  E-Bikes:



• Für das Objekt stehen drei E-Bikes für die Gäste zur Anmietung zur Verfügung. Der Mietpreis beträgt pro Fahrrad bei Nutzung von einem Tag = 15,00 €/Tag, bei 5 zusammenhängenden Tagen = 12,50 €/Tag und bei mehr als 5 zusammenhängenden Tagen = 10,00 €/Tag.

• Die Wohnung besteht aus 2 Zimmern (Wohn-Esszimmer,1 Schlafzimmer), Flur und Bad. Sie ist behindertenfreundlich ausgestattet. Die Zimmertüren haben ein Breite von 90 cm. Das Badezimmer, hat Dusche mit Bodenablauf, WC, Waschtisch, Handtuchtrocknerheizkörper und ist mit dem Rollstuhl befahrbar.

• Im Schlafraum steht ein Doppelbett und ein großer Kleiderschrank.

• Das Wohn-und Esszimmer ist mit einem Sofa (Schlaffunktion), 2 Fernsehsessel, einem Esstisch für 4 Pers., einer Wohnanrichte, kompletten Einbauküche mit Tiefkühlfach, Kabel-TV, DVD Player und CD Radio ausgestattet.

• Alle Räume sind gefließt.

• Zur Wohnung gehört eine große teilweise überdachte Holzterrasse mit Holzmöbeln,

• die Fenster verfügen über Insektenschutzelemente,




• Unsere Gäste können kostenfrei ins deutsche Festnetz telefonieren und kostenfrei einen DSL-Internetzugang über LAN nutzen (keine zugesicherte Eigenschaft falls mal der Router ausfällt).

• Gern holen wir Sie (kostenfrei) am Bahnhof oder Flugplatz auf der Insel Usedom ab.



Die Einbauküche ist mit Geschirrspüler, Herd, Mikrowelle, Kühlschrank mit Gefrierfach, Toaster, Kaffeemaschine, Wasserkocher und Eierkocher ausgestattet.

Gesamte Beschreibungweniger anzeigen

Ausstattung

Outdoor & Ausblick
  • Seeblick
  • Meerblick
Leistungen
  • Hochstuhl
Allgemein
  • Nichtraucher
  • Trockner
  • Waschmaschine
  • Terrasse
  • Hund auf Anfrage
  • Schreibtisch
  • Heizung
Multimedia
  • Kabel/Sat
  • TV
  • Internet
  • TV-Flachbild
Küche
  • Backofen
  • Küche (offen)
  • Spülmaschine
  • Mikrowelle
  • Kühlschrank
  • Gefriermöglichkeit
Bad
  • Dusche/WC
  • Haartrockner
Betten
  • Reise-/Kinderbett
  • Doppelbett
  • Bettwäsche

Verfügbarkeit prüfen

Wählen Sie Ihren Reisezeitraum aus, um den Preis zu sehen!
>vorheriges Objekt
Jahresansicht
Mär 2026
Mo Di Mi Do Fr Sa So
            1
2 3 4 5 6 7 8
9 10 11 12 13 14 15
16 17 18 19 20 21 22
23 24 25 26 27 28 29
30 31          
Apr 2026
Mo Di Mi Do Fr Sa So
    1 2 3 4 5
6 7 8 9 10 11 12
13 14 15 16 17 18 19
20 21 22 23 24 25 26
27 28 29 30      
             
Mai 2026
Mo Di Mi Do Fr Sa So
        1 2 3
4 5 6 7 8 9 10
11 12 13 14 15 16 17
18 19 20 21 22 23 24
25 26 27 28 29 30 31
             

Lage • 4-Sterne Ferienwohnungen-Hansch - Fewo 1, EG, 2 Zimmer, Loddin

Str. der Deutschen Einheit 13a , Achterwasserblick, Loddin, Usedom
In der Umgebung
  • zum Strand 2,5 km
  • zum Zentrum 1,4 km
  • zum Bahnhof 1,6 km
  • zum Bäcker 600 m
  • zum Supermarkt 1,4 km
  • zur Badestelle/Gewässer 2,5 km
  • zum (Kur-)Park/Wald 300 m
  • zur Tourist-Information 1,4 km
  • zum Flughafen 27,0 km
  • zur Autobahn 50,0 km
  • zum Golfplatz 17,0 km
  • zum Wanderweg 300 m
  • zur Bushaltestelle 1,6 km
  • zum Krankenhaus/Klinik 21,0 km
  • zum Geldautomaten/Bank 2,9 km
  • Höhe über dem Meeresspiegel 10 m
Reisende, die sich die Unterkunft 4-Sterne Ferienwohnungen-Hansch - Fewo 1, EG, 2 Zimmer, Loddin angesehen haben, haben diese Unterkünfte gebucht
Merken
53 m²
Ferienwohnung
5 Pers.
2 Schlafz.
Koserow
4,4 Sehr Gut 47 Bewertungen
Merken
125 m²
Ferienwohnung
6 Pers.
3 Schlafz.
Koserow
4,1 Sehr Gut 3 Bewertungen
Merken
75 m²
Ferienwohnung
5 Pers.
2 Schlafz.
Loddin
4,9 Ausgezeichnet 1 Bewertung
Merken
47 m²
Ferienwohnung
4 Pers.
1 Schlafz.
Zempin