Vorheriges Objekt Zurück zur Liste Nächstes Objekt
Ferienpark

Ferienpark Streckelsberg *10 Min. zum Ostseestrand* - Kormoran 113

Paul-Kühne-Str. 1, Koserow, Usedom - Tolle Lage - Karte anzeigen
4,2
Sehr Gut
basierend auf 51 Bewertungen
Personen 6
Schlafzimmer 2
Badezimmer 1
Wohnfläche 60 m²
Ferienpark
Koserow
Objekt-Nr.:
Merken
Teilen

  • Internet
  • TV
  • Balkon
  • Mikrowelle
  • Spülmaschine
  • Gefriermöglichkeit
  • Kamin/Ofen
  • Waschmaschine
  • Trockner
  • Haustier erlaubt
  • Nichtraucher
  • Fahrradabstellraum

Beschreibung

Der Ferienpark Am Streckelsberg besteht aus ingesamt 4 Häusern mit jeweils acht Wohnungen unterschiedlicher Größe mit 2 oder 3 Zimmern für 1-5 Personen am Rande eines Naturschutzgebietes. Alle Wohnungen verfügen über eine voll ausgestattete Küche, Tageslichtbad, LED-TV sowie Südbalkon bzw. Terrasse, tlw. Kamin oder Sauna. Die Wohnungen wurden 2011 gebaut. Das Haus und die Einrichtungen sind neuwertig und hochwertig eingerichtet. Zum Ortszentrum sind es wenige hundert Meter. Einkaufsmöglichkeiten und Restaurants in fußläufiger Entfernung.
Hunde gern gesehen. Eine Gassirunde beginnt direkt  hinter den Häusern am Küstenwald. Zum Hundestrand von Kölpinsee sind es ca. 800 Meter durch den Küstenwald. Maximal 2 Hunde pro Wohnung. Katzen leider nicht erlaubt.

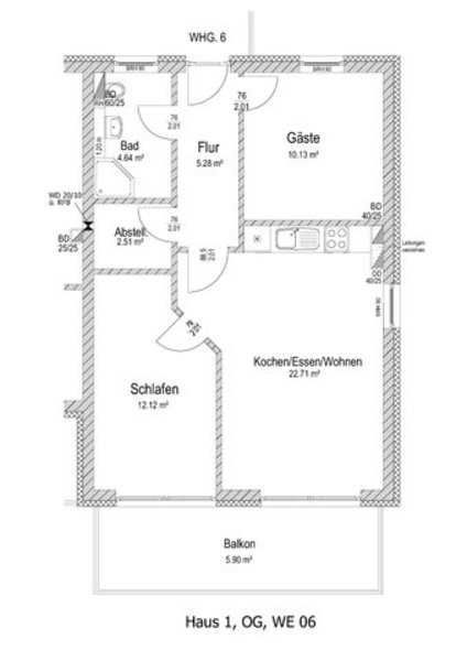
• 3 Zimmer; 1. OG

• 1 Schlafzimmer mit Doppelbett

• 1 Schlafzimmer mit zwei Einzelbetten

• Wohnzimmer mit off. Küche, Eßtisch, Couch, teilw. Elektrokamin

• Südbalkon mit Möbeln, teilw. Sonnenschirm, und Sonnenliege

• Tageslichtbad

• Einbauküche mit Spülmaschine. Ceranfeld, Backofen, etc.

• 32 (80cm) LCD-Flatscreen, teilw. DVD, CD

• Hunde erlaubt (in 213 Haustiere nicht erlaubt)



Die Wohnung verfügt über ein Schlafzimmer mit Doppelbett und ein Schlafzimmer mit 2 Einzelbetten. Die Wohnung ist ideal geeignet für Familien und Hundeliebhaber.
Die Ferienwohnung liegt im Obergeschoß des Ferienhauses. Sie besteht aus Wohnzimmer, kompl. ausgestatteter Küche, Schlafzimmer und Tageslichtbad. Die Ausstattung der Einbauküche ist neuwertig funktional und qualitativ hochwertig unter anderem mit Toaster, Kaffeemaschine, Backofen mit Heißluft, Kochfeld, Geschirrspüler, Gefrierfach. Großer Südbalkon mit Blick auf den Küstenwald, große Spielwiese.

Gesamte Beschreibungweniger anzeigen

Ausstattung

Leistungen
  • Hochstuhl
Allgemein
  • Aufenthaltsraum
  • Fahrradabstellraum
  • Nichtraucher
  • Trockner
  • Waschmaschine
  • Haustier erlaubt
  • Balkon
  • Kamin/Ofen
  • Heizung
Multimedia
  • Kabel/Sat
  • TV
  • Smart-TV
  • Internet
  • TV-Flachbild
Küche
  • Backofen
  • Küche (offen)
  • Spülmaschine
  • Toaster
  • Mikrowelle
  • Kühlschrank
  • Kaffeemaschine (Filter)
  • Gefriermöglichkeit
Bad
  • Haartrockner
  • Dusche/WC
  • Badewanne/WC
Betten
  • Reise-/Kinderbett
  • Einzelbett
  • Doppelbett
  • getrennt stehende Betten

Verfügbarkeit prüfen

Wählen Sie Ihren Reisezeitraum aus, um den Preis zu sehen!
>vorheriges Objekt
Jahresansicht
Okt 2025
Mo Di Mi Do Fr Sa So
    1 2 3 4 5
6 7 8 9 10 11 12
13 14 15 16 17 18 19
20 21 22 23 24 25 26
27 28 29 30 31    
             
Nov 2025
Mo Di Mi Do Fr Sa So
          1 2
3 4 5 6 7 8 9
10 11 12 13 14 15 16
17 18 19 20 21 22 23
24 25 26 27 28 29 30
             
Dez 2025
Mo Di Mi Do Fr Sa So
1 2 3 4 5 6 7
8 9 10 11 12 13 14
15 16 17 18 19 20 21
22 23 24 25 26 27 28
29 30 31        
             

Lage • Ferienpark Streckelsberg *10 Min. zum Ostseestrand* - Kormoran 113

Paul-Kühne-Str. 1, Koserow, Usedom
In der Umgebung
  • zum Strand 600 m
  • zum Zentrum 1,0 km
  • zum Bahnhof 1,3 km
  • zum Bäcker 500 m
  • zum Supermarkt 1,0 km
  • zum Restaurant 500 m
  • zum (Kur-)Park/Wald 2,0 km
  • zur Tourist-Information 2,0 km
  • zum Flughafen 45,0 km
  • zur Autobahn 45,0 km
  • zum Wanderweg 100 m
  • zum Geldautomaten/Bank 1,0 km
  • zum Radweg 100 m
  • zum Freizeitpark 2,0 km
  • Höhe über dem Meeresspiegel 10 m
Reisende, die sich die Unterkunft Ferienpark Streckelsberg *10 Min. zum Ostseestrand* - Kormoran 113 angesehen haben, haben diese Unterkünfte gebucht
Merken
88 m²
Ferienwohnung
6 Pers.
3 Schlafz.
Zinnowitz
3,9 Sehr Gut 11 Bewertungen
Merken
85 m²
Ferienwohnung
10 Pers.
3 Schlafz.
Loddin
3,8 Sehr Gut 22 Bewertungen
Merken
82 m²
Ferienpark
6 Pers.
2 Schlafz.
Zempin
4,5 Ausgezeichnet 21 Bewertungen
Merken
72 m²
Ferienwohnung
6 Pers.
2 Schlafz.
Zinnowitz
3,3 Gut 4 Bewertungen