Ferienwohnung

DÜNENHAUS Sellin Ferienwohnungen - DÜNENHAUS D401 (FW 2 Zi. Kamin)

Wilhelmstraße 13, Sellin, Rügen - Tolle Lage - Karte anzeigen
4,1
Sehr Gut
basierend auf 14 Bewertungen
Personen 5
Schlafzimmer 1
Badezimmer 1
Wohnfläche 52 m²
Ferienwohnung
Sellin
Objekt-Nr.:
Merken
Teilen

  • Internet
  • TV
  • Balkon
  • Grillmöglichkeit
  • Gefriermöglichkeit
  • Kamin/Ofen
  • Waschmaschine
  • Nichtraucher
  • Allergikerfreundlich
  • Wintergarten

Beschreibung

rügen und meer
 
Unser restauriertes DÜNENHAUS bietet elegante Ferienwohnungen mit ein bis drei Zimmern. Sie sind modern eingerichtet mit hellen Möbeln und dezenten Stoffen. Alle haben Duschbäder, Küchen und WLAN-Internetzugang. Im großen Garten am Buchenwald gibt es Pavillons, verschiedene Sitzecken und Spielgeräte für die Kleinen. Der Hauptstrand mit der Selliner Seebrücke ist etwa 250 Meter entfernt.

Es gibt eine Sauna mit Ruheraum, eine Münzwaschmaschine, Grillmöglichkeiten sowie eine Sandkiste mit Spielgeräten für die Kleinen.
 
Das Grundstück des DÜNENHAUS ist autofrei. Unsere hauseigenen Parkplätze befinden sich beim  HAUS BORUSSIA. Es liegt wenige Meter entfernt auf der anderen Straßenseite.
 
Unser DÜNENHAUS gehört zum Ensemble der historischen Seebäderhäuser in der Selliner Wilhelmstraße, der Allee zum Strand. Es wurde vor über 100 Jahren errichtet und ist in seiner ursprünglichen Kubatur vollständig erhalten. Geschäfte, den Bus oder die Kleinbahn erreichen Sie zu Fuß.

rügen und meer . DÜNENHAUS Sellin . Ostseebad Sellin

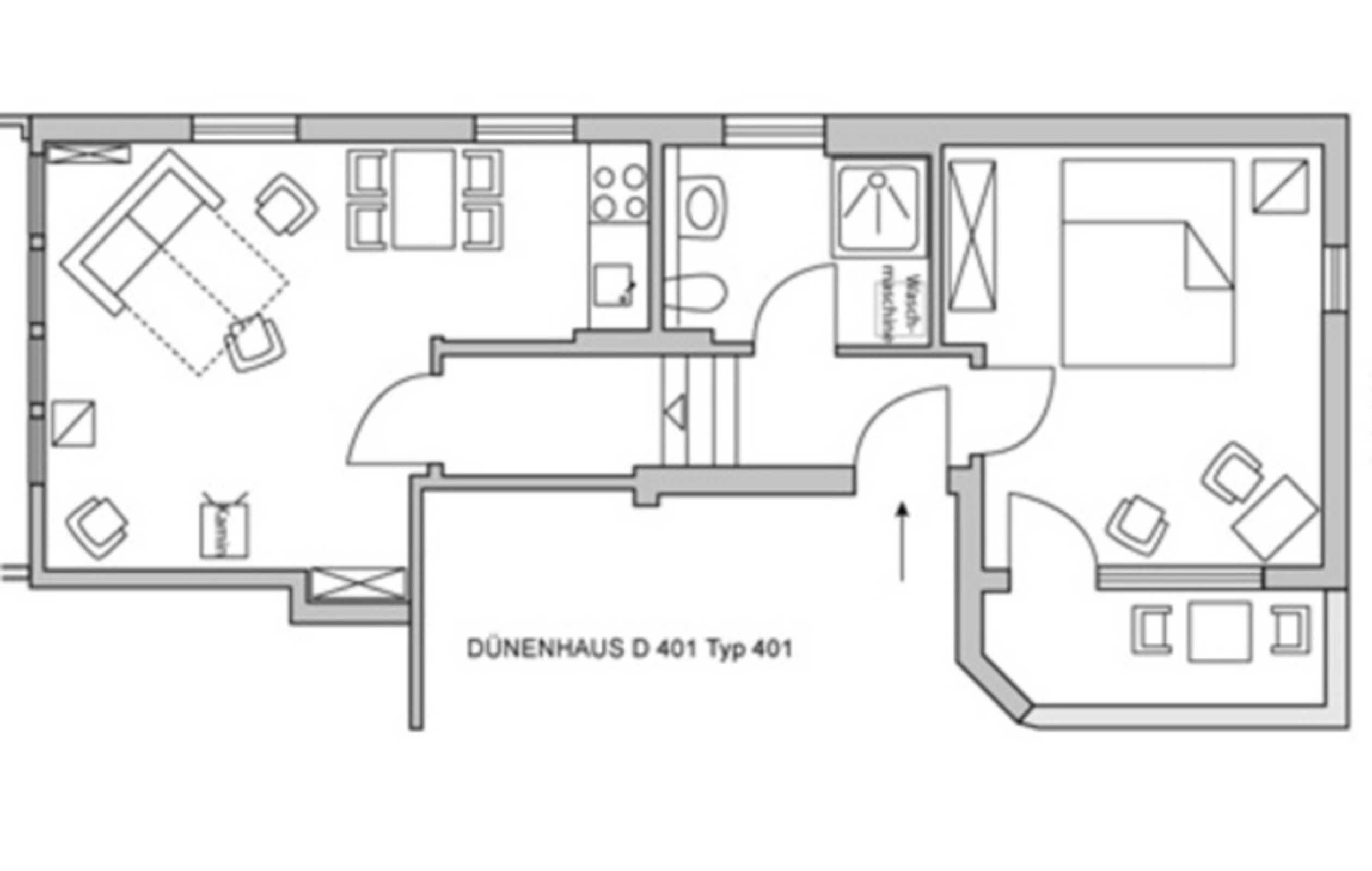
Die gradlinig-nordisch ausgestattete großzügige Zweizimmer-Ferienwohnung (D401) mit Balkon liegt im Dachgeschoss (3.OG) des restaurierten DÜNENHAUS und umfasst gut 50 qm. Sie hat ein Wohnzimmer mit Kaminofen und Schlafsofa sowie eine zum Wohnraum offene Küche mit Essplatz für vier Personen. Das Schlafzimmer mit Doppelbett verfügt über einen kleinen Balkon mit Blick zum Selliner See (Bodden). Das Wohnzimmer liegt zur Wilhelmstraße.
 
Das Zweizimmer-Appartement hat ein leicht geteiltes Niveau zwischen den Räumen. In der Mitte liegt das Bad mit Dusche/WC sowie eigener Waschmaschine. Die Wohnung verfügt zudem über TV/Radio, MP3/CD-Player, Telefon und DSL-Internetzugang (LAN/WLAN). Sie ist vom Vermieter mit Bettwäsche, Hand- und Geschirrtüchern ausgestattet. Die Betten sind bezogen. Wäschewechsel gegen Gebühr.
 
Die Küchen in unseren Appartements machen Sie unabhängig von Buffet- und Restaurantzeiten. Bäcker, Restaurants und diverse Einkaufsmöglichkeiten sind bequem zu Fuß zu erreichen.



In unserem DÜNENHAUS gibt es eine Sauna mit Ruheraum (individuell buchbar) und eine Münzwaschmaschine. Der Garten hat verschiedene Sitzecken, eine Wiese, Grillplatz und eine Spielecke für Kinder.



Das DÜNENHAUS, eine Villa im klassischen Seebäderstil, liegt rund 250 Meter vom Hauptstrand mit der Selliner Seebrücke entfernt. Unsere hauseigenen PKW-Stellplätze (Gebühr) befinden sich beim HAUS BORUSSIA - knapp 100 Meter entfernt schräg gegenüber vom DÜNENHAUS.



Anreise ab 16 bis 19 Uhr oder nach Absprache.

Gesamte Beschreibungweniger anzeigen

Ausstattung

Leistungen
  • Frühstücksservice
Allgemein
  • Allergikerfreundlich
  • Schlafsofa
  • Wintergarten
  • Heizung
  • Schreibtisch
  • Hund auf Anfrage
  • Kamin/Ofen
  • Balkon
  • Waschmaschine
  • Nichtraucher
  • Grillmöglichkeit
Multimedia
  • Internet
  • TV
  • Kabel/Sat
  • TV-Flachbild
Küche
  • Backofen
  • Küche (offen)
  • Kühlschrank
  • Gefriermöglichkeit
Bad
  • Dusche/WC
  • Badewanne/WC
  • Haartrockner
Betten
  • Doppelbett
  • Bettwäsche

Verfügbarkeit prüfen

Wählen Sie Ihren Reisezeitraum aus, um den Preis zu sehen!
>vorheriges Objekt
Jahresansicht
Dez 2025
Mo Di Mi Do Fr Sa So
1 2 3 4 5 6 7
8 9 10 11 12 13 14
15 16 17 18 19 20 21
22 23 24 25 26 27 28
29 30 31        
             
Jan 2026
Mo Di Mi Do Fr Sa So
      1 2 3 4
5 6 7 8 9 10 11
12 13 14 15 16 17 18
19 20 21 22 23 24 25
26 27 28 29 30 31  
             
Feb 2026
Mo Di Mi Do Fr Sa So
            1
2 3 4 5 6 7 8
9 10 11 12 13 14 15
16 17 18 19 20 21 22
23 24 25 26 27 28  
             

Lage • DÜNENHAUS Sellin Ferienwohnungen - DÜNENHAUS D401 (FW 2 Zi. Kamin)

Wilhelmstraße 13, Sellin, Rügen
In der Umgebung
  • zum Strand 300 m
  • zum Zentrum 100 m
  • zum Bahnhof 950 m
  • zum Bäcker 100 m
  • zum Supermarkt 900 m
  • zum (Kur-)Park/Wald 200 m
  • zur Tourist-Information 400 m
  • zum Flughafen 145,0 km
  • zur Autobahn 75,0 km
  • zum Wanderweg 200 m
  • zur Bushaltestelle 700 m
  • zum Krankenhaus/Klinik 25,0 km
  • zum Geldautomaten/Bank 300 m
  • Höhe über dem Meeresspiegel 30 m
Reisende, die sich die Unterkunft DÜNENHAUS Sellin Ferienwohnungen - DÜNENHAUS D401 (FW 2 Zi. Kamin) angesehen haben, haben diese Unterkünfte gebucht
Merken
68 m²
Ferienwohnung
5 Pers.
2 Schlafz.
Göhren
4,3 Sehr Gut 17 Bewertungen
Merken
95 m²
Ferienwohnung
5 Pers.
2 Schlafz.
Sellin
4,2 Sehr Gut 3 Bewertungen
Ferienhaus in Sellin mit Großer Sauna
Merken
210 m²
Ferienhaus
8 Pers.
3 Schlafz.
Sellin
4,7 Ausgezeichnet 10 Bewertungen
Merken
70 m²
Ferienwohnung
6 Pers.
2 Schlafz.
Baabe
4,2 Sehr Gut 5 Bewertungen