Ferienhaus

Dänisches Ferienhaus Solsken - Ferienhaus Solsken

Am Krogbarg 3, Glücksburg, Flensburger Förde - Tolle Lage - Karte anzeigen
4,7
Ausgezeichnet
basierend auf 2 Bewertungen
Personen 4
Schlafzimmer 2
Badezimmer 1
Wohnfläche 60 m²
Ferienhaus
Glücksburg
Objekt-Nr.:
Merken
Teilen

  • Internet
  • TV
  • Terrasse
  • Grillmöglichkeit
  • Mikrowelle
  • Spülmaschine
  • Gefriermöglichkeit
  • Kamin/Ofen
  • Waschmaschine
  • Nichtraucher

Beschreibung

Achtung Renovierungsarbeiten!

Das Ferienhaus Solsken steht wegen Renovierungsarbeiten vom 01.November 2025 bis 13.März 2026 nicht für die Vermietung zur Verfügung. 

Das Dänische Ferienhaus „Solsken“, in Holzbauweise erbaut, bietet Platz für max. 4 Personen.
Es liegt auf einem ca. 400 m² großen eingezäunten Grundstück in Glücksburg- Bockholm an der Flensburger Außenförde.

Der Zugang zur Flensburger Förde liegt in 250 m und der Kurstrand in Holnis in ca. 1500 m Entfernung.
Das Ferienhaus erreicht man über eine Treppe, Parkplätze sind ausreichend fußnah erreichbar.
 
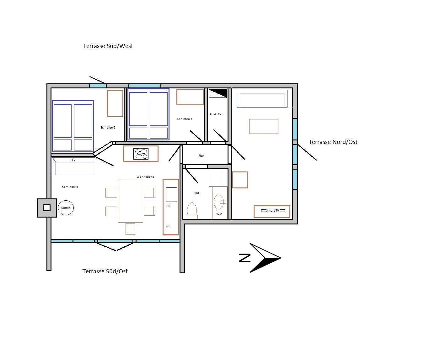
Auf 60 qm Grundfläche verteilen sich über einen Wohnbereich mit Küche, Essbereich und Kaminofen.
Ein Schlafzimmer mit Doppelbett (2x80x200 cm), ein Schlafzimmer mit Einzelbetten (je 80x200 cm) und begehbarem Kleiderschrank, sowie ein Duschbad. 

Im Außenbereich stehen 3 Terrassen in Süd/Ost-, Nord/West- und Süd/West-Lage mit Gartenmöbel, Liegen und Strandkorb sowie Grill zur Verfügung. Das Haus verfügt über 2 Fernsehgeräte. Das Haus wird über Elektroheizkörper und Klimasplittgeräte beheizt.

Bitte beachten Sie:



• Bettwäsche und Handtücher sind selbst mit zu bringen. Ein Wäschepaket ist beim Vermieter buchbar. 

• Ein Haustier ist erlaubt, mehrere Haustiere nur nach vorheriger Absprache.

• Strom bitte vor Ort ablesen und den Betrag hinterlegen (Strom 0,50 € pro kWh).


Für die Anreise mit dem Auto geben Sie die Adresse Am Krogbarg oder Parkplatz, 24960, Bockholm ein.
Mit dem ÖPNV - Anreise mit der Bahn bis Flensburg, ab dort besteht eine Busverbindung nach Bockholm.
Fußweg bis zum Ferienhaus ca. 700 meter. 


WICHTIGE INFORMATION:
Bauarbeiten für den Kanalbau- und Niederspannungssanierung durch die Stadt Glücksburg und die Stadtwerke Flensburg im Feriendorf Bockholm ab dem 03. November 2025. 
Unsere Ferienhäuser Solsken, Solbakken und Lütt Huus - Am Krobarg sind direkt erst ab dem 11. Januar 2027 betroffen. Die Preise sind entsprechend reduziert.

Aktuell bis voraussichtlich Ende Mai 2026: In unmittelbarer Nähe zum Ferienhaus wird ein neues Haus errichtet. Die Mietpreise sind entsprechen reduziert.

Unser Ferienhaus in Glücksburg - Bockholm bietet Ihnen folgende Aufteilung:



• 1 Schlafzimmer mit Einzelbetten (je 80x 200cm) und begehbaren Kleiderschrank

• 1 Baby-Reisebett und ein Kinderhochstuhl sind vorhanden

• Wohnbereich mit Küche, Essbereich und Kaminofen

• Duschbad mit Waschmaschine

• 3 möblierte Terrassen (Süd/Ost, Nord/West und Süd/West)

• Bettwäsche und Handtücher sind selbst mitzubringen! Ein Wäschepaket ist beim Vermieter buchbar

• 2 Fernseher

• Bügelbrett und Bügeleisen sind vorhanden

• Das Haus wird über Elektroheizkörper und Klimasplittgeräte beheizt

• Strom bitte vor Ort ablesen und den Betrag hinterlegen (Strom 0,50 € pro kWh)

Gesamte Beschreibungweniger anzeigen

Ausstattung

Leistungen
  • Strandkorb (persönlich)
  • Hochstuhl
Allgemein
  • Kamin/Ofen
  • Rauchmelder
  • Heizung
  • Hund auf Anfrage
  • Terrasse
  • Waschmaschine
  • Klimaanlage
  • Nichtraucher
  • Grillmöglichkeit
Multimedia
  • Kabel/Sat
  • TV-Flachbild
  • Internet
  • Smart-TV
  • TV
  • Internet - LAN
Küche
  • Küche (offen)
  • Spülmaschine
  • Toaster
  • Mikrowelle
  • Kühlschrank
  • Kaffeemaschine (Filter)
  • Gefriermöglichkeit
  • Backofen
Bad
  • Dusche/WC
  • Haartrockner
Betten
  • Reise-/Kinderbett
  • Doppelbett
  • getrennt stehende Betten

Verfügbarkeit prüfen

Wählen Sie Ihren Reisezeitraum aus, um den Preis zu sehen!
>vorheriges Objekt
Jahresansicht
Mai 2026
Mo Di Mi Do Fr Sa So
        1 2 3
4 5 6 7 8 9 10
11 12 13 14 15 16 17
18 19 20 21 22 23 24
25 26 27 28 29 30 31
             
Jun 2026
Mo Di Mi Do Fr Sa So
1 2 3 4 5 6 7
8 9 10 11 12 13 14
15 16 17 18 19 20 21
22 23 24 25 26 27 28
29 30          
             
Jul 2026
Mo Di Mi Do Fr Sa So
    1 2 3 4 5
6 7 8 9 10 11 12
13 14 15 16 17 18 19
20 21 22 23 24 25 26
27 28 29 30 31    
             

Lage • Dänisches Ferienhaus Solsken - Ferienhaus Solsken

Am Krogbarg 3, Glücksburg, Flensburger Förde
In der Umgebung
  • zum Strand 250 m
  • zum Zentrum 4,0 km
  • zum Bahnhof 16,0 km
  • zum Bäcker 4,0 km
  • zum Supermarkt 4,0 km
  • zur Therme 4,0 km
  • zum Restaurant 2,0 km
  • zur Badestelle/Gewässer 1,5 km
  • zum (Kur-)Park/Wald 1,0 km
  • zur Tourist-Information 4,0 km
  • zum Flughafen 165,0 km
  • zur Autobahn 24,0 km
  • zum Golfplatz 2,5 km
  • zum Wanderweg 500 m
  • zur Bushaltestelle 700 m
  • zum Krankenhaus/Klinik 15,0 km
  • zum Geldautomaten/Bank 4,0 km
  • zum Radweg 50 m
  • zum Schwimm-/Spaßbad 4,5 km
  • zum Arzt 4,5 km
  • Höhe über dem Meeresspiegel 10 m
  • zum Nachbarn 20 m
Reisende, die sich die Unterkunft Dänisches Ferienhaus Solsken - Ferienhaus Solsken angesehen haben, haben diese Unterkünfte gebucht
Merken
110 m²
Ferienhaus
6 Pers.
3 Schlafz.
Glücksburg
4,6 Ausgezeichnet 5 Bewertungen
Merken
60 m²
Ferienpark
5 Pers.
3 Schlafz.
Glücksburg
Merken
65 m²
Ferienwohnung
6 Pers.
2 Schlafz.
Langballig
4,6 Ausgezeichnet 4 Bewertungen
Merken
59 m²
Ferienwohnung
4 Pers.
2 Schlafz.
Glücksburg