Ferienwohnung

Haus Meeresblick FeWo Leuchtturm A 2.06 Ref. 139563 - FeWo Leuchtturm A 2.06 Ref. 139563

Am Inselparadies 2, Baabe, Rügen - Tolle Lage - Karte anzeigen
0,0
basierend auf 0 Bewertungen
Personen 2
Schlafzimmer 1
Badezimmer 1
Wohnfläche 40 m²
Ferienwohnung
Baabe
Objekt-Nr.:
Merken
Teilen

  • Internet
  • Balkon
  • Mikrowelle
  • Spülmaschine
  • Gefriermöglichkeit
  • Haustiere nicht erlaubt
  • Nichtraucher

Beschreibung

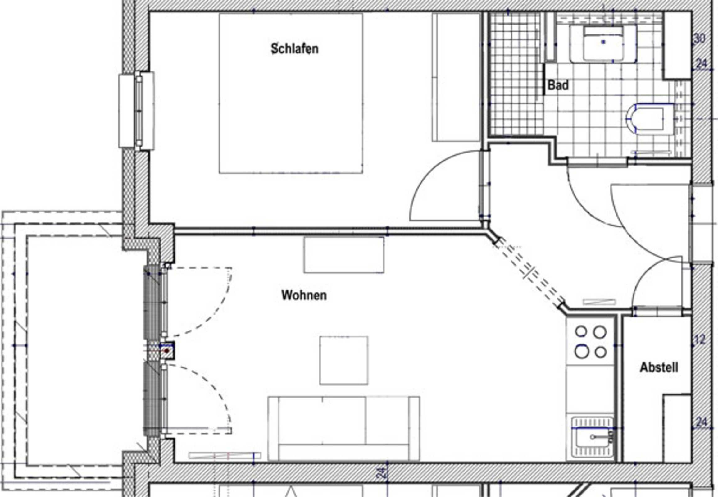
Die moderne ca. 40 qm große 2-Zimmer-Ferienwohnung Leuchtturm liegt in der zweiten Etage der Residenz Haus Meeresblick mit einem gemütlichen Balkon.
 
Die exklusive Anlage wurde 2013 eröffnet und hat einen direkten Zugang zum Strand. Das Haus Meeresblick ist mit einem Fahrstuhl, einer Tiefgarage und einem großen Wellnessbereich mit Schwimmbad (ca. 8,00 m x 4,00 m - 1,35 m tief), zwei Saunen (eine finnische Sauna/eine Bio-Sauna) und einem Massagebereich ausgestattet. So können Sie sich zu jeder Jahreszeit im Haus Meeresblick erholen.

Die moderne ca. 40 qm große 2-Zimmer-Ferienwohnung Leuchtturm befindet sich auf der zweiten Etage der Residenz Haus Meeresblick mit einem gemütlichen Balkon.
Die hochwertige Nichtraucher-Ferienwohnung hat einen offenen Wohn-Essbereich und ein separates Schlafzimmer mit Doppelbett. Im Wohnbereich gibt es einen DVD- / Blu-Ray-Player.
WLAN ist hier selbstverständlich frei verfügbar.
Die Küchenzeile ist mit allem Komfort ausgestattet, u.a. mit Spülmaschine, 2-Platten-Cerankochfeld, Kühlschrank und Mikrowelle mit Grill.
Das Bad verfügt über eine ebenerdige Dusche, Waschbecken und WC.
Vom Wohnzimmer betreten Sie den Balkon, auf dem Sie den Morgen genießen oder den Abend gemütlich ausklingen lassen können.
Wir weisen daraufhin, dass es leider nicht möglich ist in dieser Wohnung ein Babybett oder ein Zustellbett zu stellen.
Ein PKW-Stellplatz (ggf. kostenpflichtig) befindet sich in der Tiefgarage des Hauses.
Von hier aus erreichen Sie bequem per Lift Ihre Wohnung.

Gesamte Beschreibungweniger anzeigen

Ausstattung

Allgemein
  • Heizung
  • Balkon
  • Nichtraucher
  • Fahrstuhl/Aufzug
  • Haustiere nicht erlaubt
Multimedia
  • Internet
  • TV-Flachbild
Küche
  • Kaffeemaschine (Filter)
  • Küche (offen)
  • Spülmaschine
  • Toaster
  • Mikrowelle
  • Kühlschrank
  • Gefriermöglichkeit
Bad
  • Dusche/WC
  • Badewanne/WC
Betten
  • Doppelbett

Verfügbarkeit prüfen

Wählen Sie Ihren Reisezeitraum aus, um den Preis zu sehen!
>vorheriges Objekt
Jahresansicht
Dez 2025
Mo Di Mi Do Fr Sa So
1 2 3 4 5 6 7
8 9 10 11 12 13 14
15 16 17 18 19 20 21
22 23 24 25 26 27 28
29 30 31        
             
Jan 2026
Mo Di Mi Do Fr Sa So
      1 2 3 4
5 6 7 8 9 10 11
12 13 14 15 16 17 18
19 20 21 22 23 24 25
26 27 28 29 30 31  
             
Feb 2026
Mo Di Mi Do Fr Sa So
            1
2 3 4 5 6 7 8
9 10 11 12 13 14 15
16 17 18 19 20 21 22
23 24 25 26 27 28  
             

Lage • Haus Meeresblick FeWo Leuchtturm A 2.06 Ref. 139563 - FeWo Leuchtturm A 2.06 Ref. 139563

Am Inselparadies 2, Baabe, Rügen
In der Umgebung
  • zum Strand 100 m
  • zum Zentrum 400 m
  • zum Bahnhof 700 m
  • zum Bäcker 100 m
  • zum Supermarkt 500 m
  • zum Restaurant 200 m
  • zur Badestelle/Gewässer 100 m
  • zum (Kur-)Park/Wald 200 m
  • zur Tourist-Information 400 m
  • zum Wanderweg 100 m
Reisende, die sich die Unterkunft Haus Meeresblick FeWo Leuchtturm A 2.06 Ref. 139563 - FeWo Leuchtturm A 2.06 Ref. 139563 angesehen haben, haben diese Unterkünfte gebucht
Merken
68 m²
Ferienwohnung
6 Pers.
2 Schlafz.
Sellin
4,7 Ausgezeichnet 5 Bewertungen
Merken
90 m²
Ferienhaus
6 Pers.
3 Schlafz.
Groß Zicker
Merken
48 m²
Ferienwohnung
4 Pers.
1 Schlafz.
Sellin
4,7 Ausgezeichnet 5 Bewertungen
Merken
74 m²
Ferienwohnung
6 Pers.
2 Schlafz.
Sellin