Ferienwohnung

Ferienwohnung Emmi

Wilhelm-Ehrich-Str. 18, Malente, Lübecker Bucht - Tolle Lage - Karte anzeigen
4,9
Ausgezeichnet
basierend auf 7 Bewertungen
Personen 2
Schlafzimmer 1
Badezimmer 1
Wohnfläche 40 m²
Ferienwohnung
Malente
Objekt-Nr.:
Merken
Teilen

  • Internet
  • TV
  • Balkon
  • Mikrowelle
  • Gefriermöglichkeit
  • Haustiere nicht erlaubt
  • Nichtraucher
  • Fahrradabstellraum
  • E-Auto Ladestation

Beschreibung

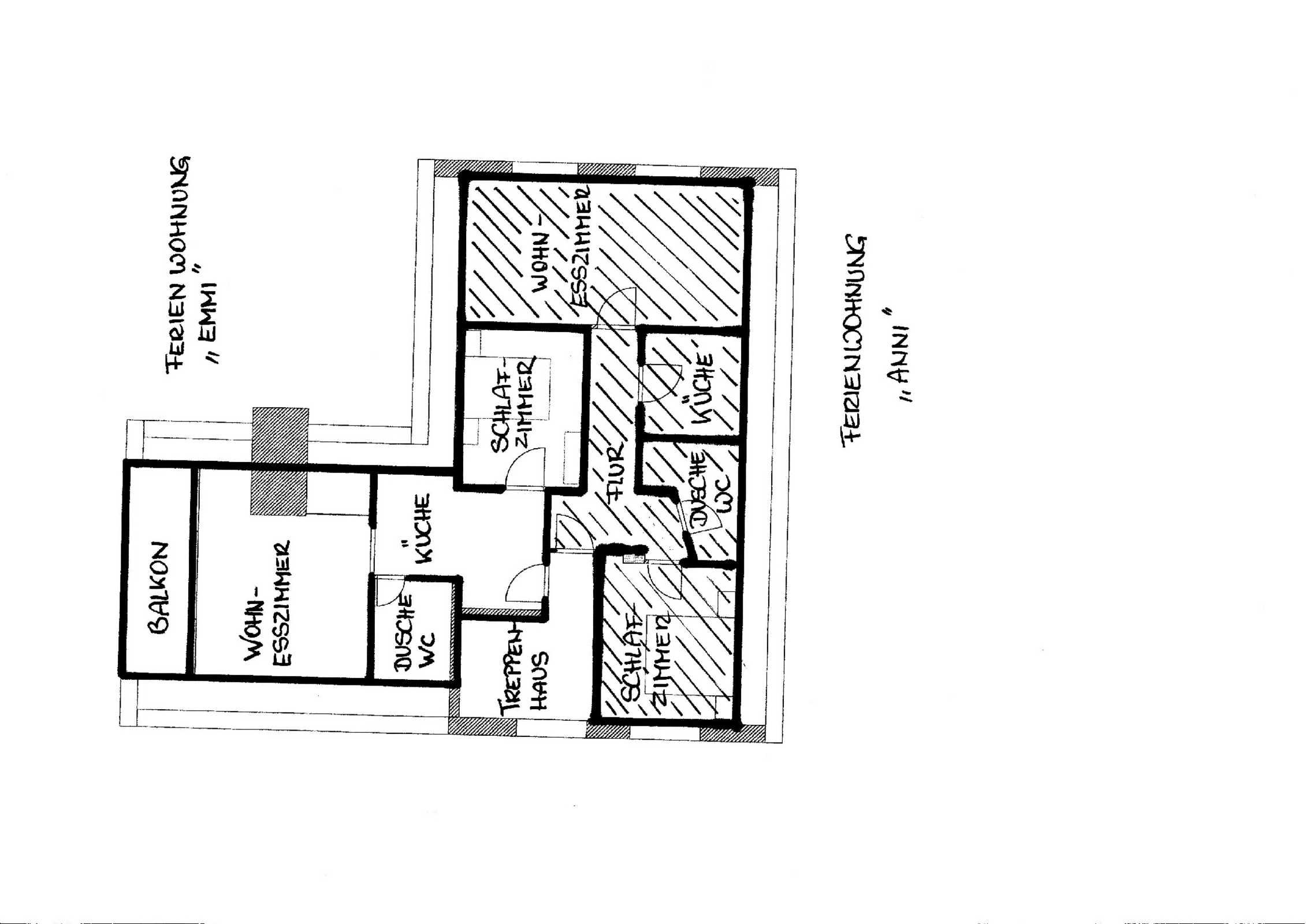
Die renovierte und gemütliche Ferienwohnung „Emmi“ liegt im 1. Stock eines Mehrfamilienhauses in einer ruhigen Wohngegend in Bad Malente-Gremsmühlen.



Sie bietet Platz für bis zu 2 Personen, ist ca. 40 m² groß und verfügt über ein Wohnzimmer mit Essgelegenheit, ein Schlafzimmer mit Doppelbett, ein Badezimmer mit Dusche und WC, eine separate Küche sowie einen überdachten Balkon mit Blick in den Garten.



Im Wohnzimmer und Schlafzimmer wurden neue Teppichböden verlegt. Das Wohnzimmer ist ausgestattet mit einem Sofa und Couchtisch, einer Wohnwand mit Flachbild-TV, einem Esstisch mit 4 Sitzmöglichkeiten, einem kleinen Wandschrank sowie einer Leseecke mit Sessel und Beleuchtung.
Die Küche hat eine neue Küchenzeile mit Backofen, Ceranfeld und Kühlschrank bekommen.



Vor dem Haus steht Ihnen ein PKW-Stellplatz zur Verfügung. Fahrräder und andere Sportgeräte können in der Garage des Hauses abgestellt und eingeschlossen werden. Die nächste Einkaufmöglichkeit liegt ca. 1 Kilometer entfernt.



Bettwäsche und Handtücher sind im Reisepreis inklusive.



Aufladestation für E-Autos (Wallbox) vorhanden, Strom wird nach Verbrauch berechnet.

Die Ferienwohnungin einer ruhigen Sackgasse bietet Platz für bis zu 2 Personen, ist ca. 40 m² groß und verfügt über ein Wohnzimmer mit Essgelegenheit, ein Schlafzimmer mit Doppelbett, ein Badezimmer mit Dusche und WC, eine separate Küche sowie einen überdachten Balkon mit Blick in den Garten.




PKW-Stellplatz und Abstellmöglichkeiten für Fahrräder sind vorhanden.

Gesamte Beschreibungweniger anzeigen

Ausstattung

Allgemein
  • Haustiere nicht erlaubt
  • Nichtraucher
  • Balkon
  • E-Bike Ladestation
  • E-Auto Ladestation
  • Heizung
  • Fahrradabstellraum
  • Teppichboden
Multimedia
  • Kabel/Sat
  • TV
  • Internet
  • TV-Flachbild
Küche
  • Gefriermöglichkeit
  • separate Küche
  • Mikrowelle
  • Kühlschrank
  • Backofen
Bad
  • Haartrockner
  • Dusche/WC
  • Handtücher
Betten
  • Doppelbett
  • Bettwäsche

Verfügbarkeit prüfen

Wählen Sie Ihren Reisezeitraum aus, um den Preis zu sehen!
>vorheriges Objekt
Jahresansicht
Mai 2026
Mo Di Mi Do Fr Sa So
        1 2 3
4 5 6 7 8 9 10
11 12 13 14 15 16 17
18 19 20 21 22 23 24
25 26 27 28 29 30 31
             
Jun 2026
Mo Di Mi Do Fr Sa So
1 2 3 4 5 6 7
8 9 10 11 12 13 14
15 16 17 18 19 20 21
22 23 24 25 26 27 28
29 30          
             
Jul 2026
Mo Di Mi Do Fr Sa So
    1 2 3 4 5
6 7 8 9 10 11 12
13 14 15 16 17 18 19
20 21 22 23 24 25 26
27 28 29 30 31    
             

Lage • Ferienwohnung Emmi

Wilhelm-Ehrich-Str. 18, Malente, Lübecker Bucht
In der Umgebung
  • zum Strand 20,0 km
  • zum Zentrum 1,5 km
  • zum Bahnhof 2,2 km
  • zum Bäcker 1,3 km
  • zum Supermarkt 1,0 km
  • zur Therme 33,0 km
  • zur Badestelle/Gewässer 1,4 km
  • zum (Kur-)Park/Wald 2,0 km
  • zur Tourist-Information 2,2 km
  • zur Autobahn 25,0 km
  • zum Golfplatz 15,0 km
  • zum Wanderweg 400 m
  • zur Bushaltestelle 400 m
  • zum Krankenhaus/Klinik 10,3 km
  • zum Geldautomaten/Bank 1,7 km
  • zum Radweg 400 m
  • zum Schwimm-/Spaßbad 3,0 km
  • zum Arzt 1,6 km
  • zum Freizeitpark 28,0 km
  • Höhe über dem Meeresspiegel 30 m
Reisende, die sich die Unterkunft Ferienwohnung Emmi angesehen haben, haben diese Unterkünfte gebucht
Merken
104 m²
Ferienhaus
6 Pers.
2 Schlafz.
Malente
Merken
65 m²
Ferienwohnung
4 Pers.
2 Schlafz.
Malente
Merken
40 m²
Ferienwohnung
2 Pers.
1 Schlafz.
Malente
4,7 Ausgezeichnet 2 Bewertungen
Merken
38 m²
Ferienwohnung
2 Pers.
1 Schlafz.
Eutin
4,8 Ausgezeichnet 2 Bewertungen